← Cheltenham Borough Council

Status

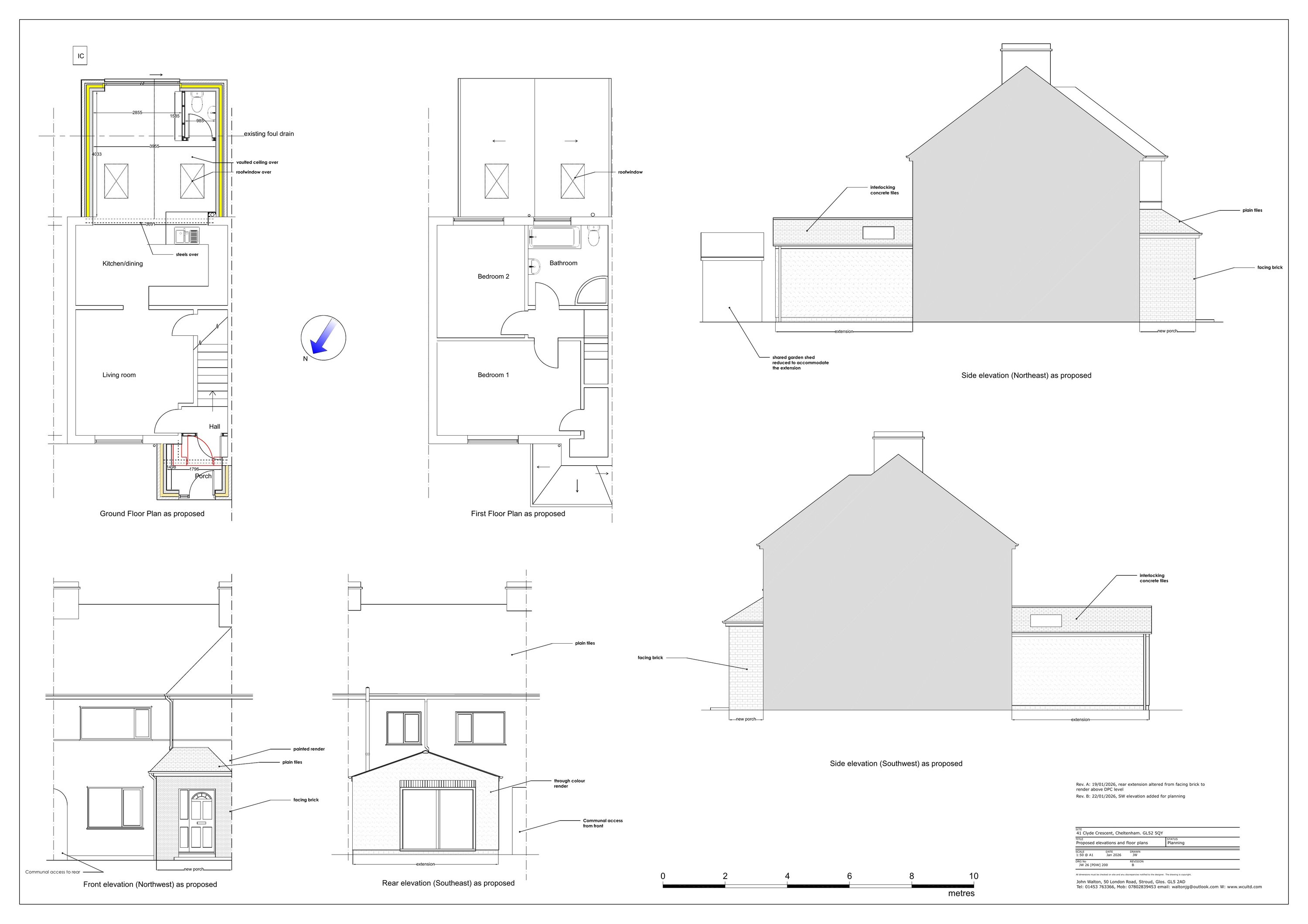
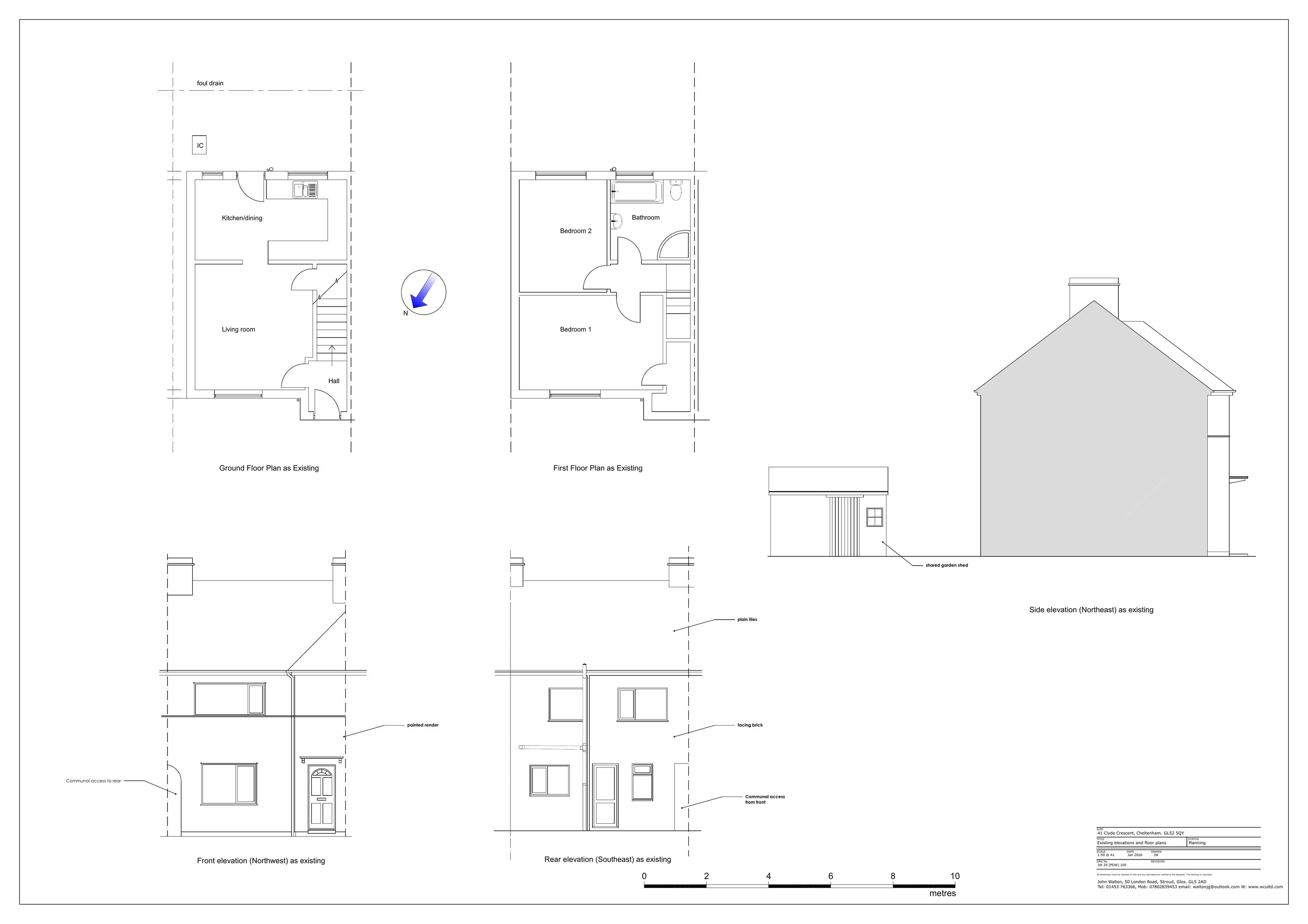
Permit House extension
Received
16 Jan 2026
New homes
0

Full proposal

Single storey rear extension and new porch to front. Partial demolition of shared garden shed at rear.

Documents

Approved Drawing
Archived · Original link
Approved Drawing
Archived · Original link
Approved Drawing
Archived · Original link

Have your say

Your comment matters. Councils must consider every representation that raises material planning considerations.

Write a comment