← Cheltenham Borough Council

Status

Pending Consideration House extension
Received
Last month
New homes
0

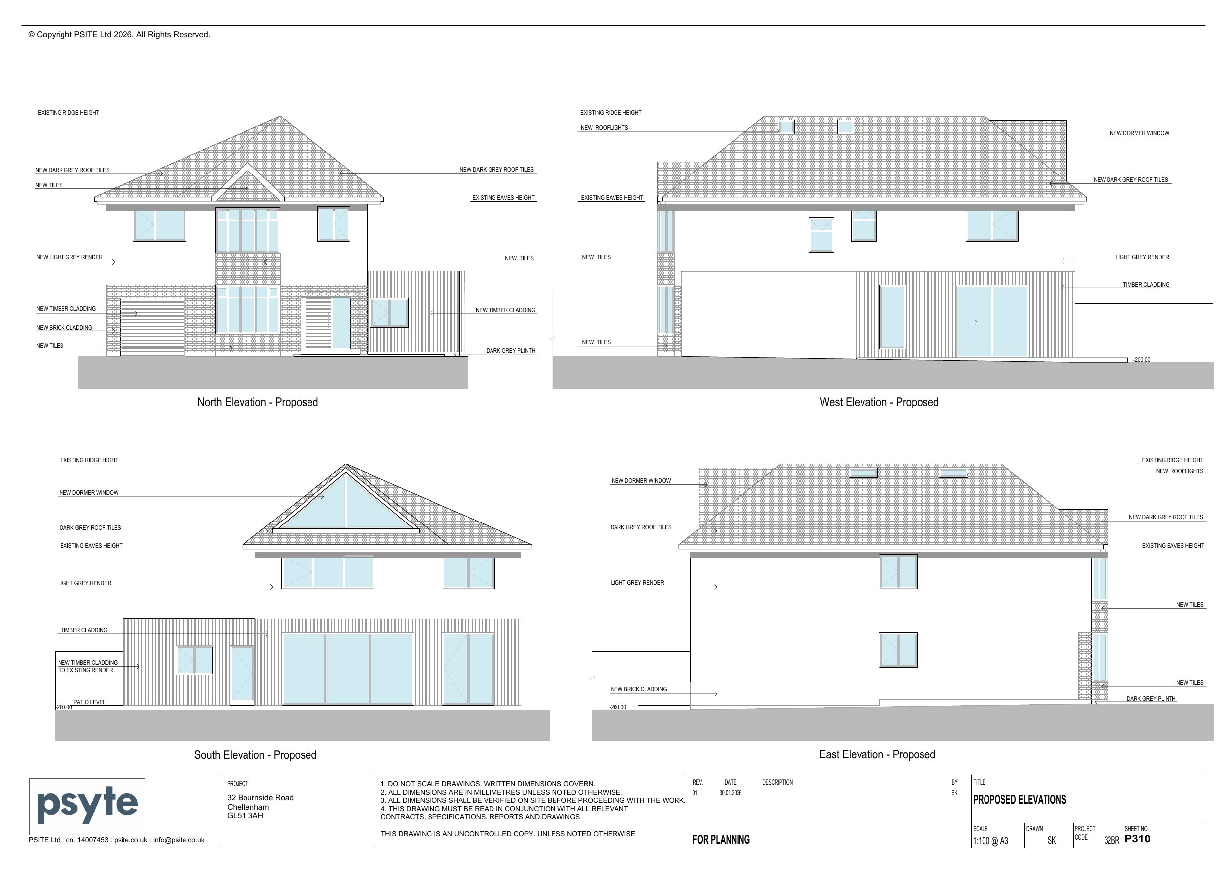
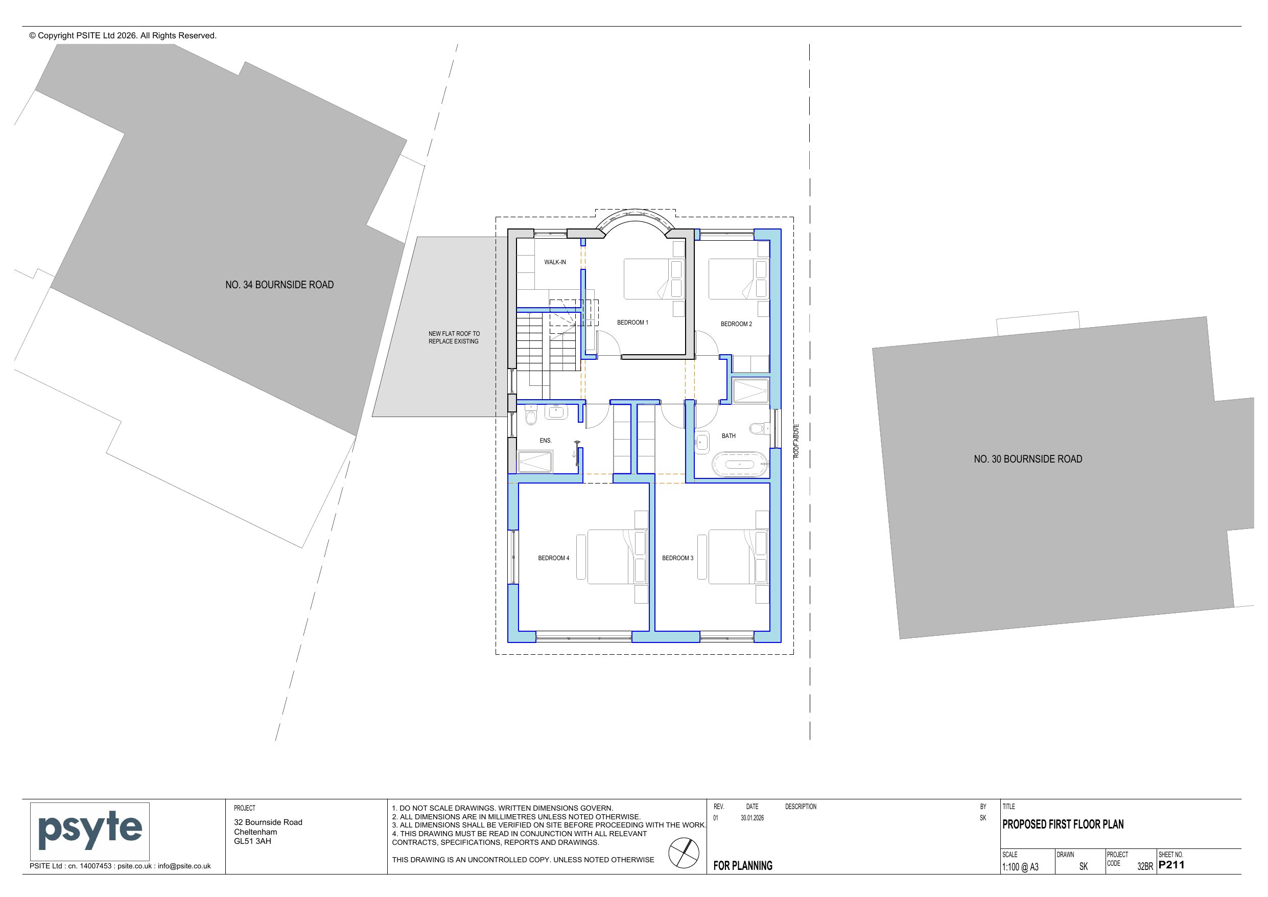
Full proposal

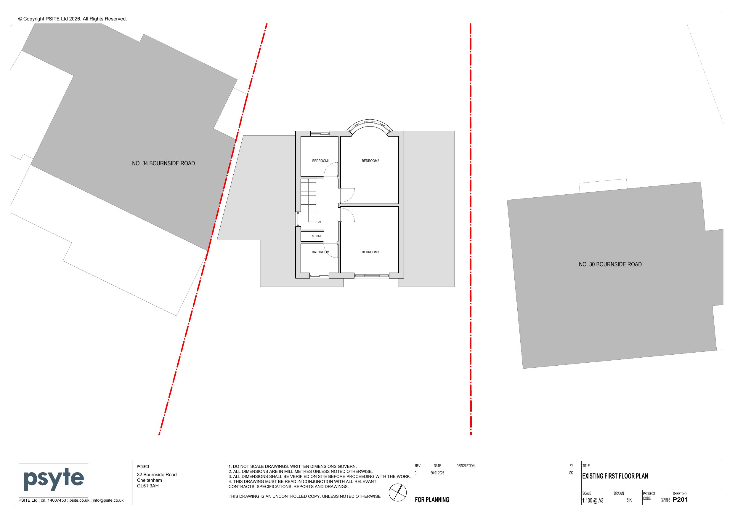
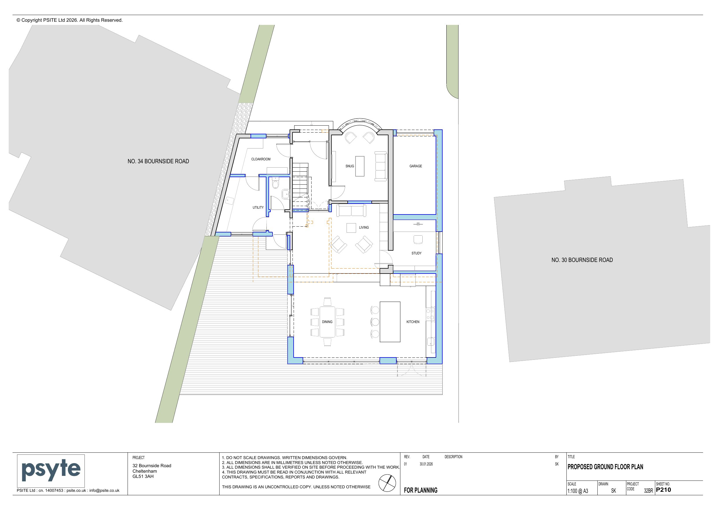
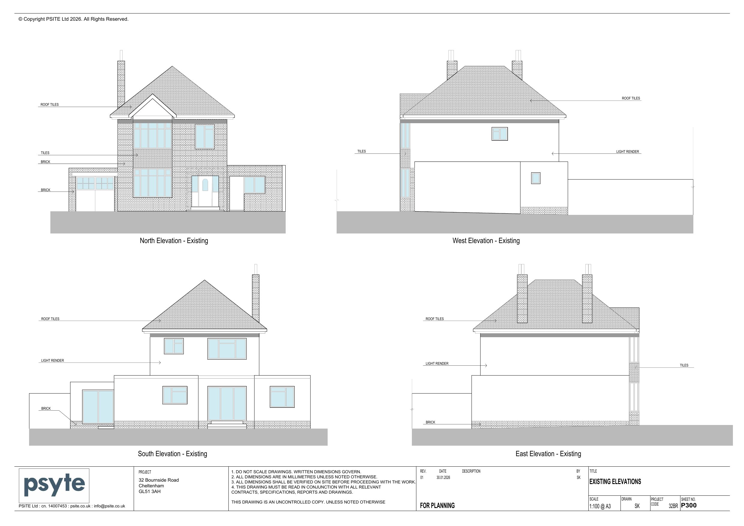
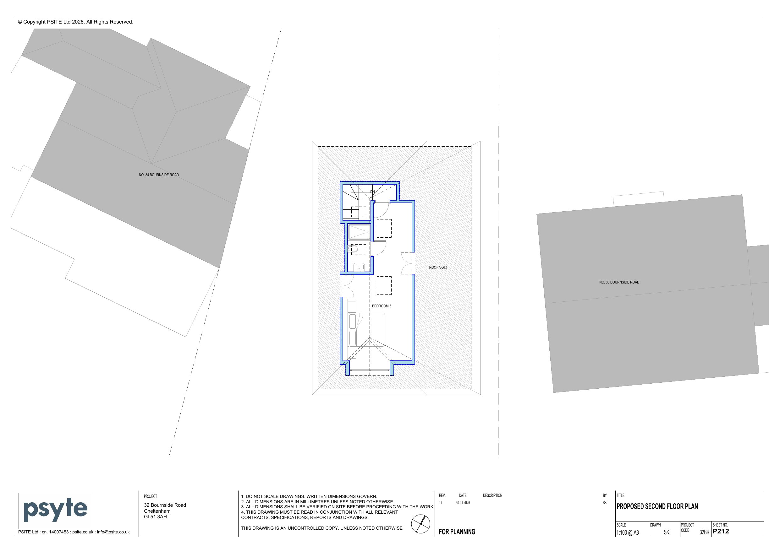
Erection of two storey rear extension, first floor side extension, loft conversion and dormer window to rear, plus external remodelling, including replacement windows, new roof covering, brick and rendering to external walls, and extension of dropped kerb.

Have your say

Your comment matters. Councils must consider every representation that raises material planning considerations.

Write a comment