← Cheltenham Borough Council

Status

Pending Consideration House extension
Received
Last month
New homes
0

Full proposal

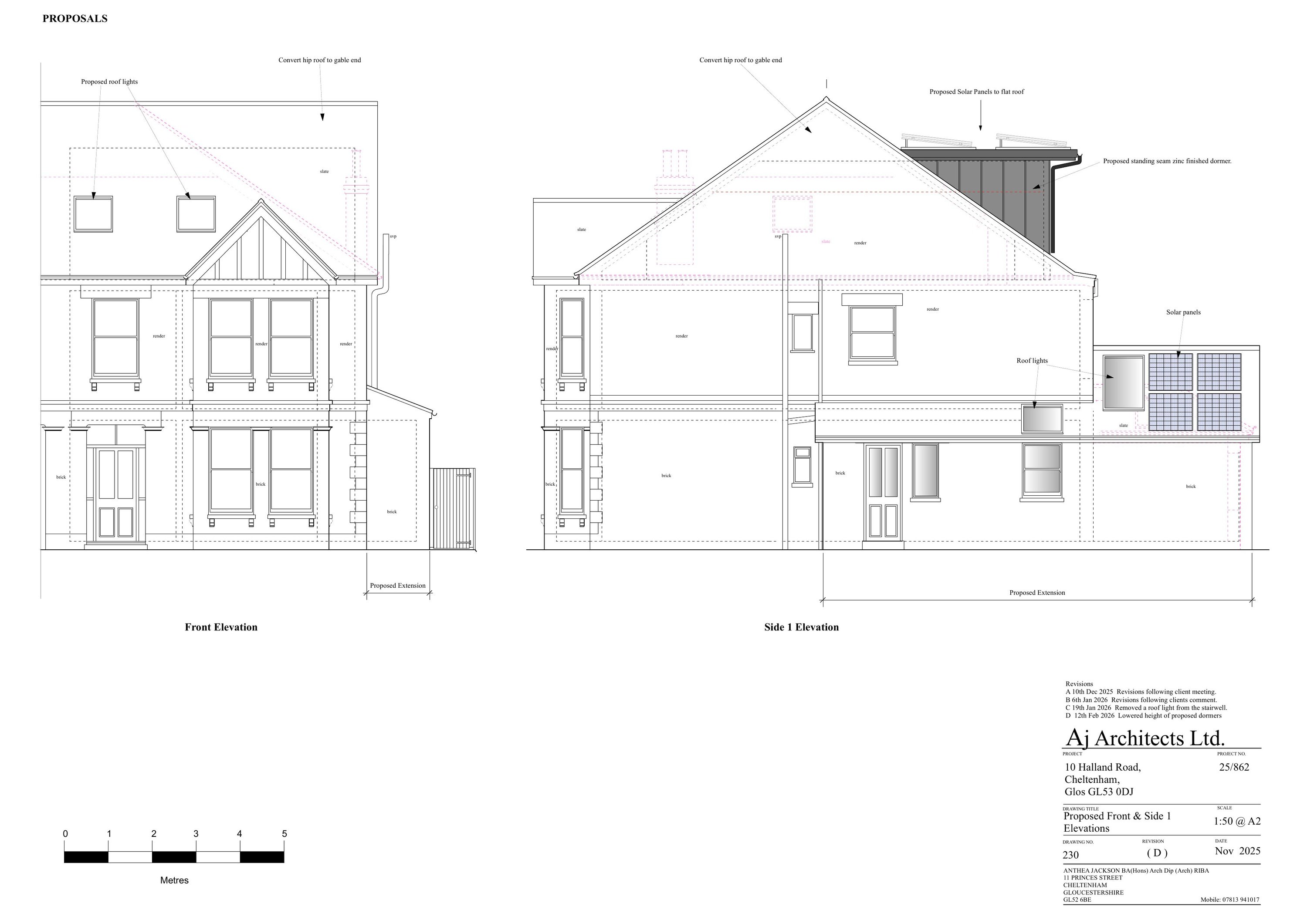
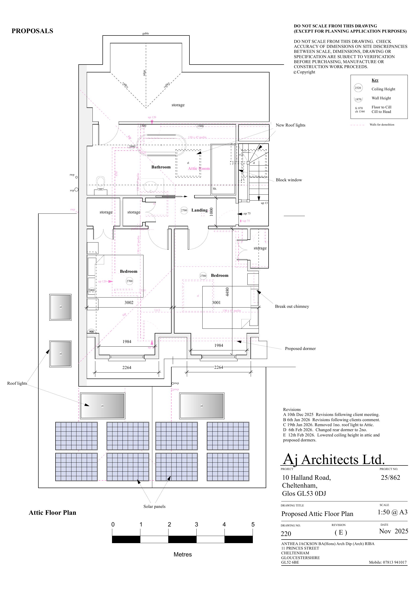
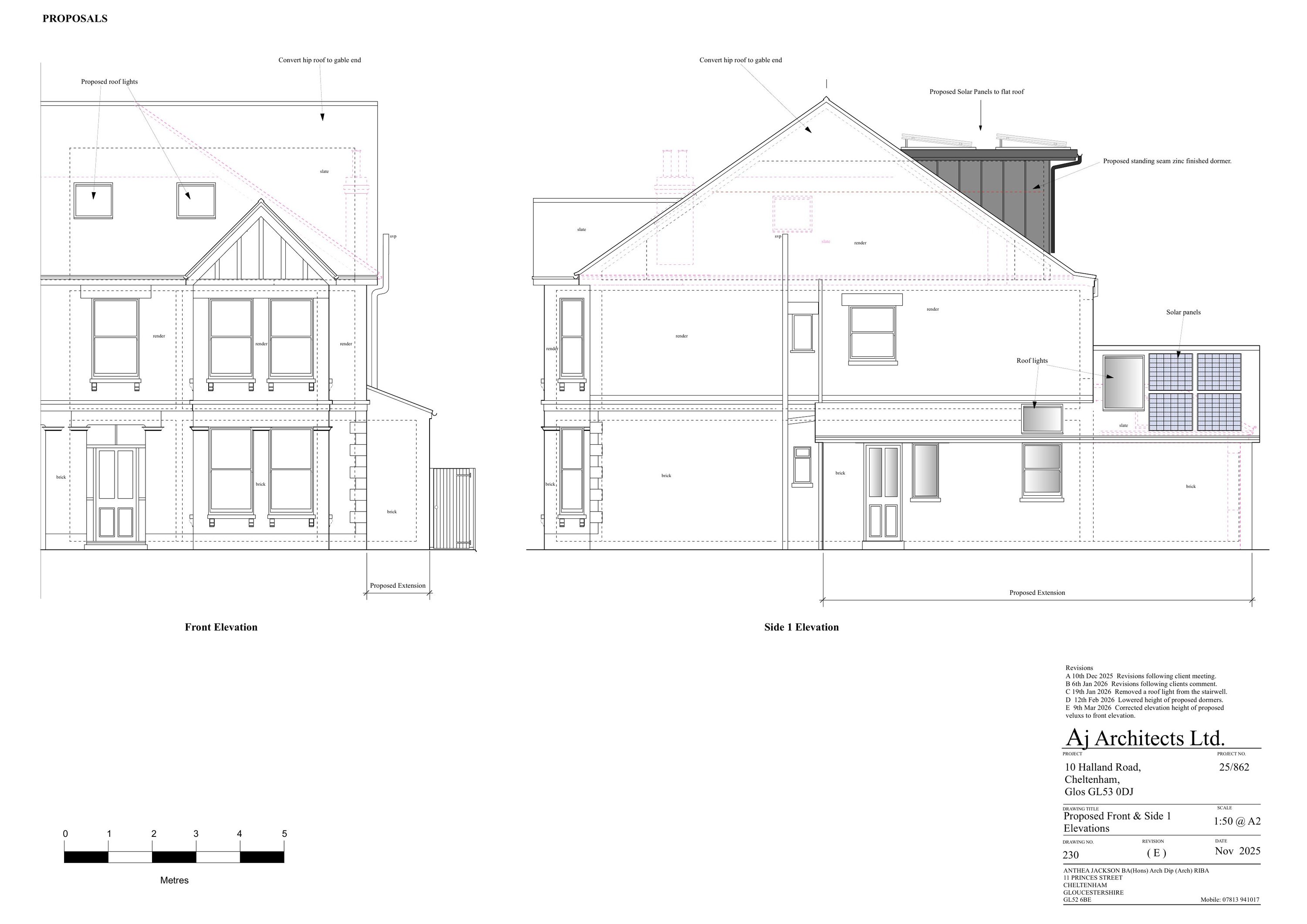
Rear and side single storey extension, new gable end to attic and 2no. dormers.

Have your say

Your comment matters. Councils must consider every representation that raises material planning considerations.

Write a comment