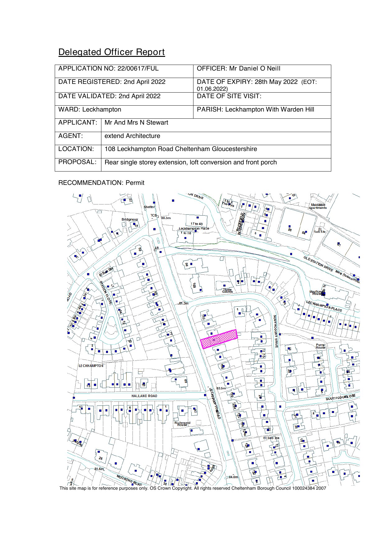
← Cheltenham Borough Council

Status

Pending Consideration House extension
Received
Last month
New homes
0

Full proposal

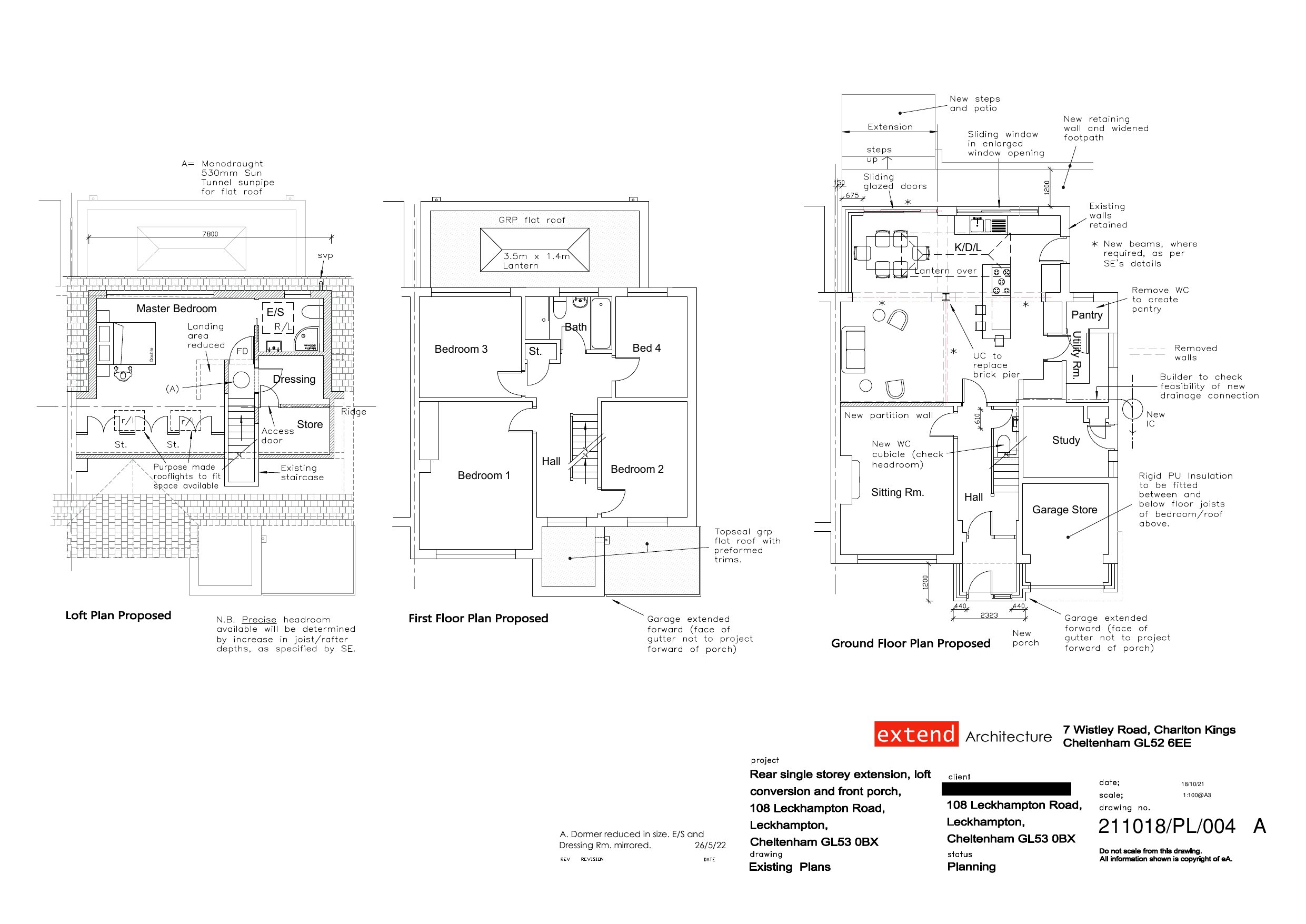
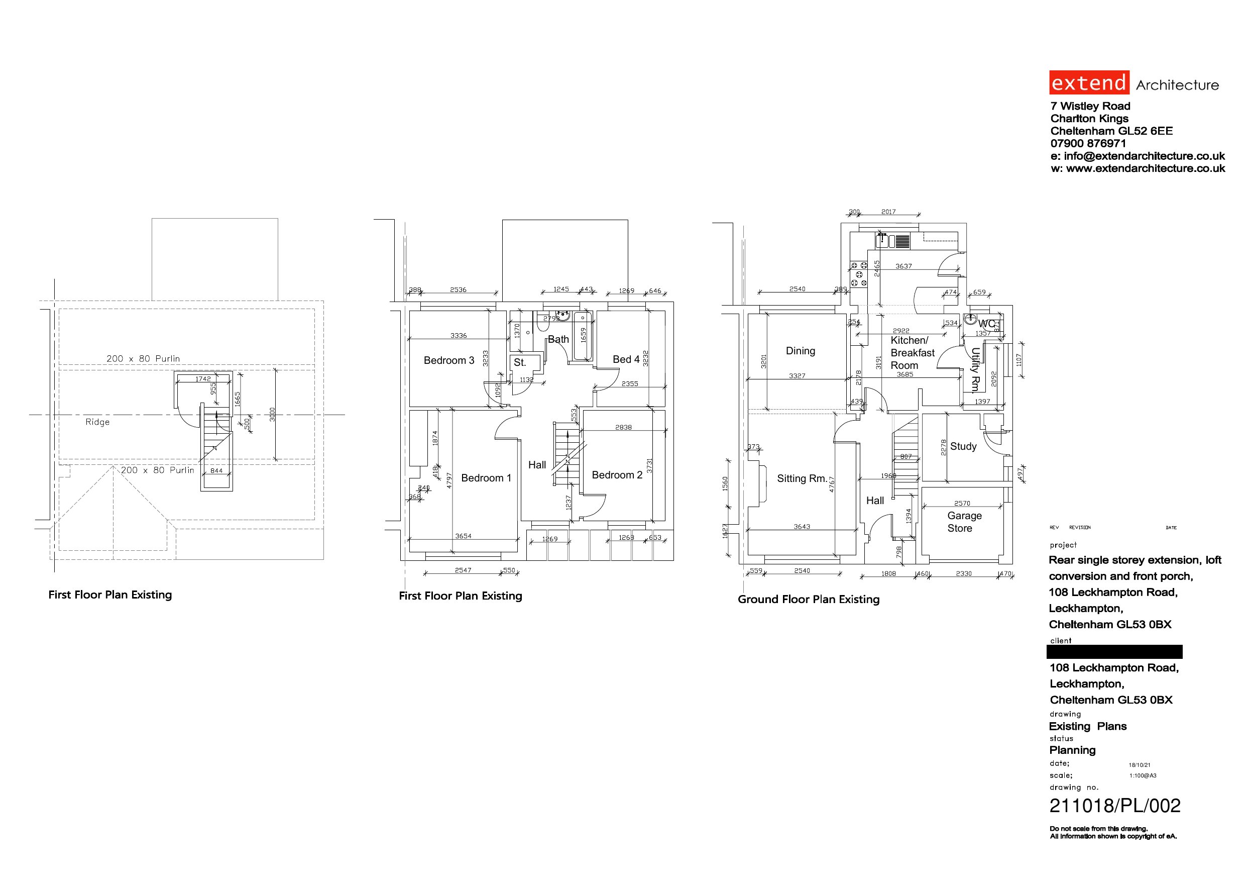
Renewal of lapsed planning permission 22/00617/FUL; single storey rear extension, loft conversion and front porch.

Have your say

Your comment matters. Councils must consider every representation that raises material planning considerations.

Write a comment