← Cheltenham Borough Council

Status

Pending Consideration Commercial
Received
Last month
New homes
0

Full proposal

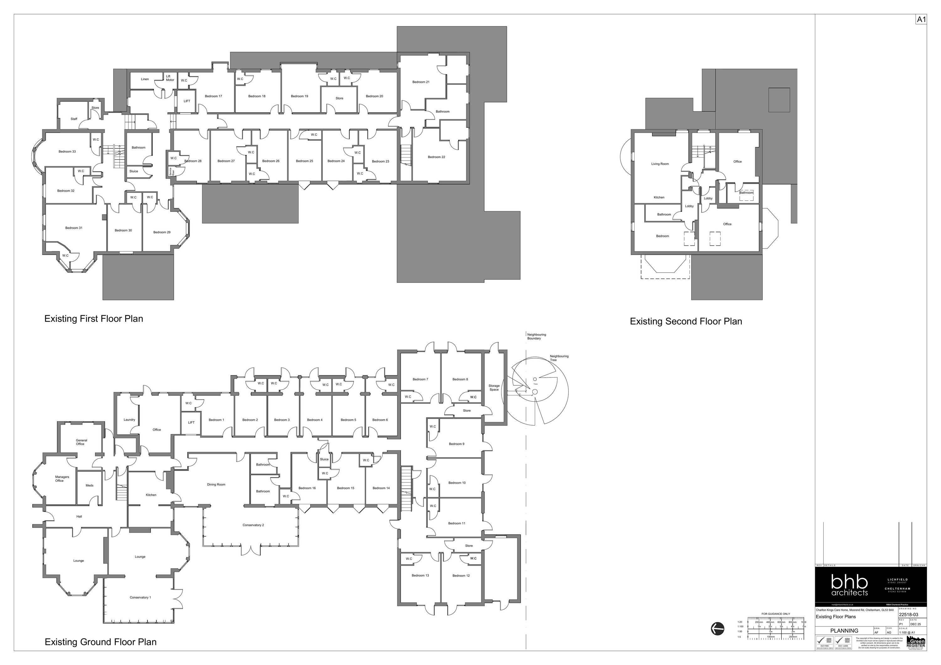
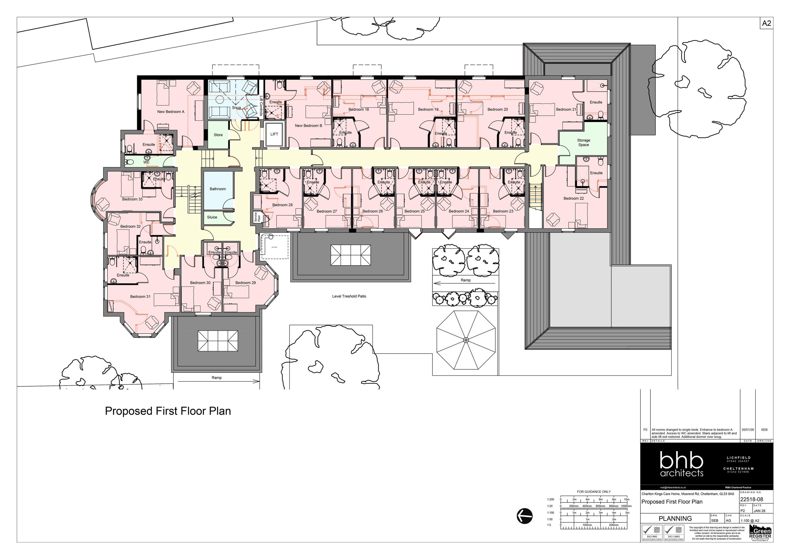
Extension to the current care home, alterations to the internal layout and the replacement of the existing conservatories with sunrooms.

Have your say

Your comment matters. Councils must consider every representation that raises material planning considerations.

Write a comment