← Cheltenham Borough Council

Status

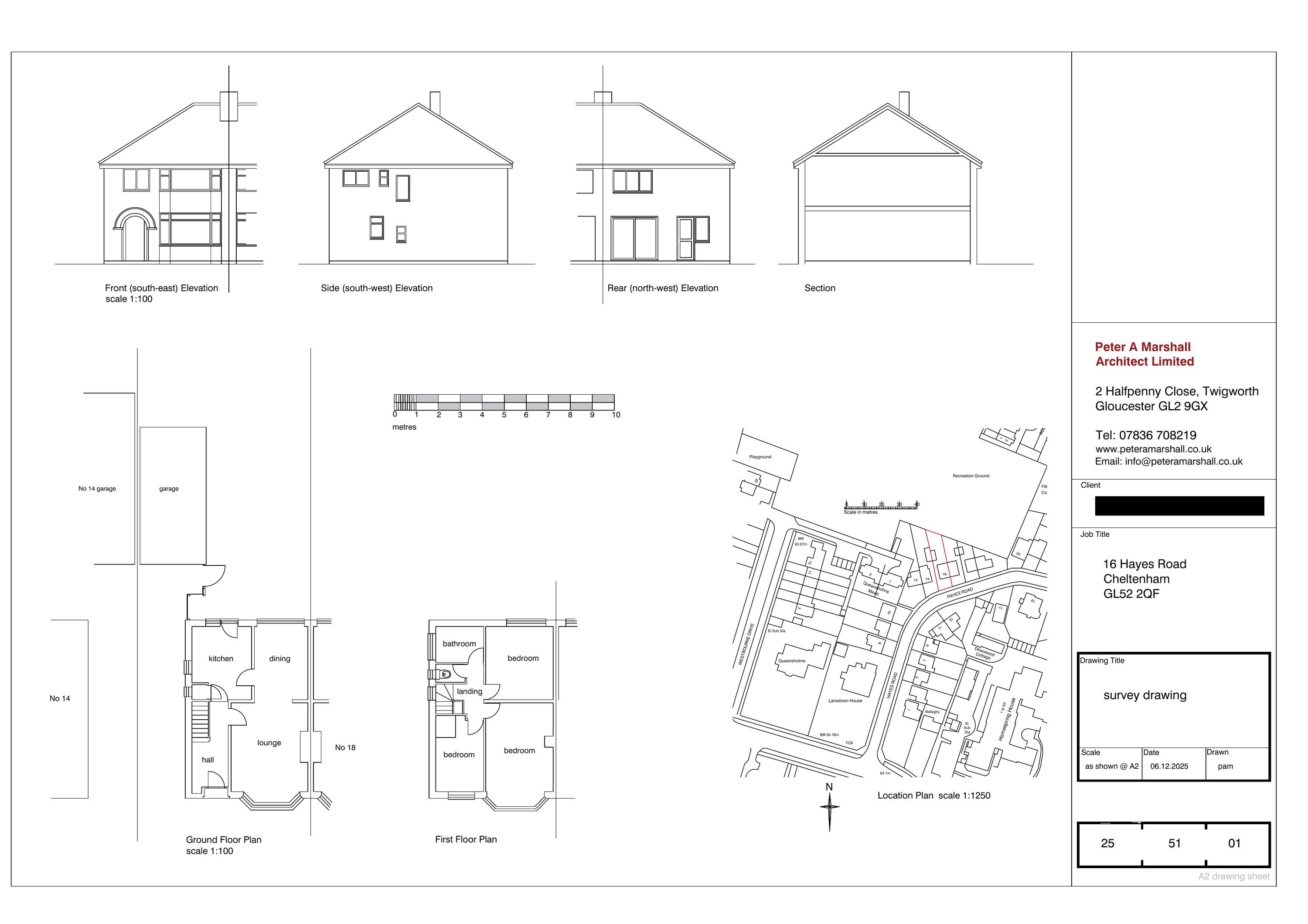
Pending Consideration House extension
Received
Last month
New homes
0

Full proposal

Single storey rear and side extensions to dwelling.

Documents

Application form
Application Form
Not yet archived · Original link
Existing and proposed block plans
Drawing
Not yet archived · Original link

Have your say

Your comment matters. Councils must consider every representation that raises material planning considerations.

Write a comment