← Cheltenham Borough Council

Status

Pending Consideration House extension
Received
Last month
New homes
0

Full proposal

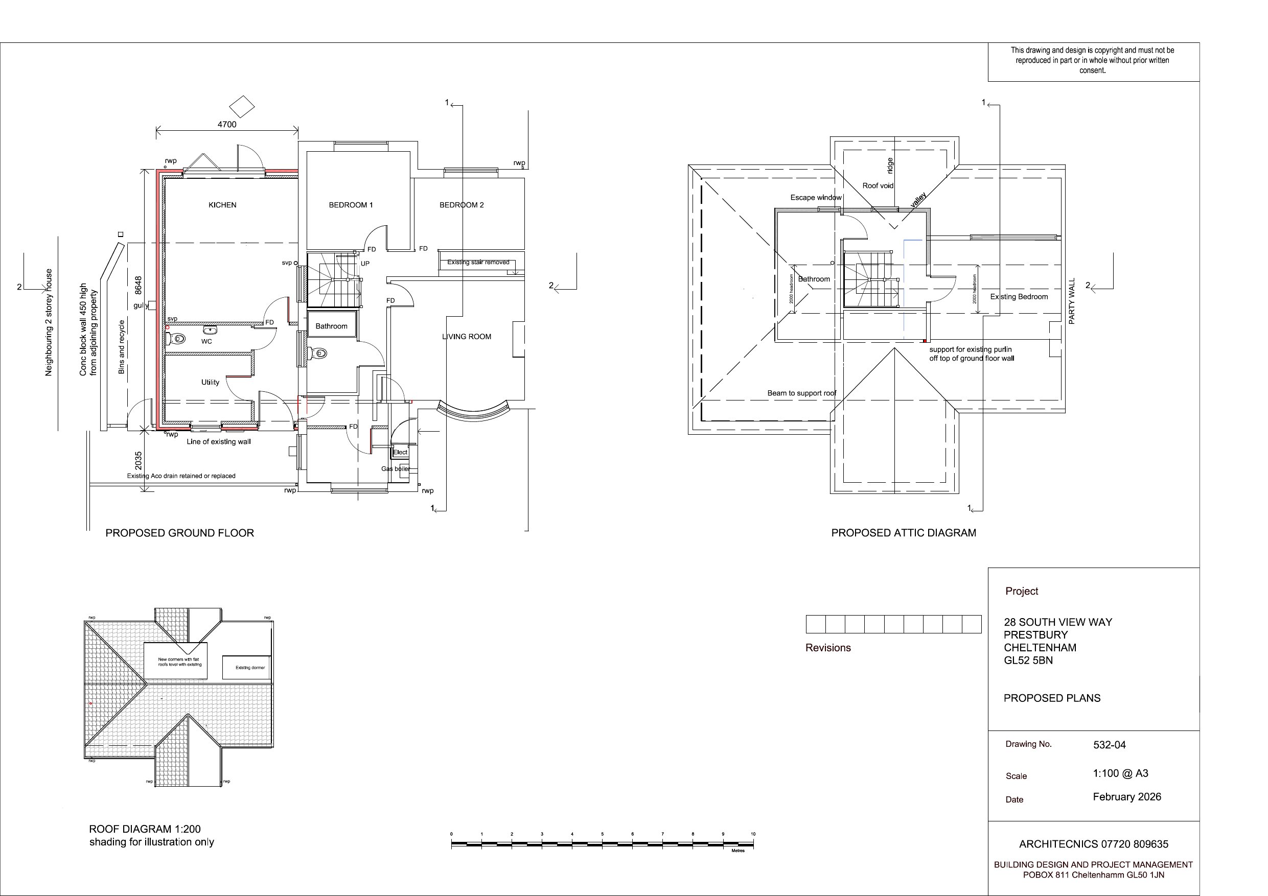
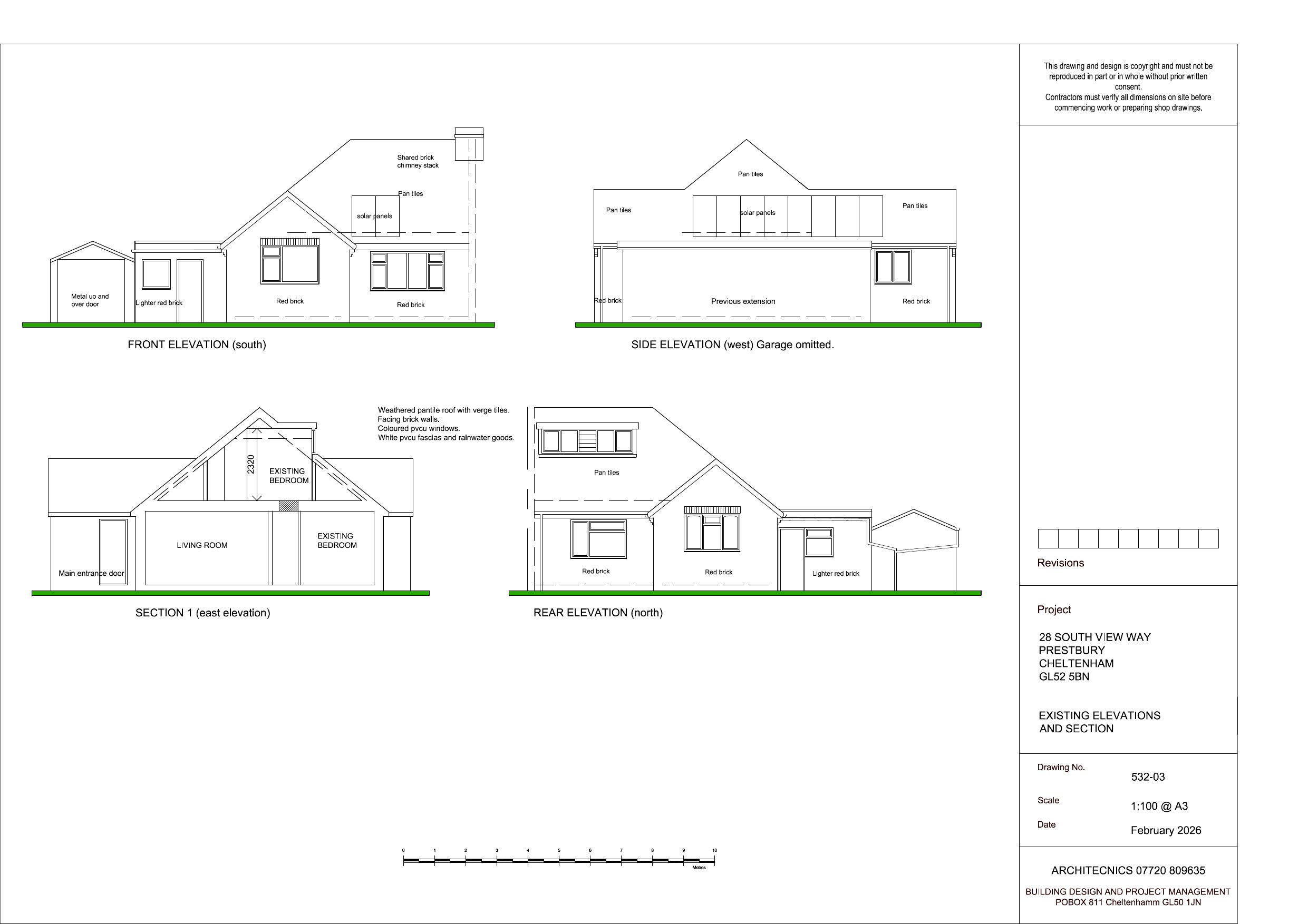
Demolition of existing extensions and erection of a single storey extension with alterations to roof.

Have your say

Your comment matters. Councils must consider every representation that raises material planning considerations.

Write a comment