← Cheltenham Borough Council

Status

Pending Consideration New housing
Received
29 days ago
New homes
1

Full proposal

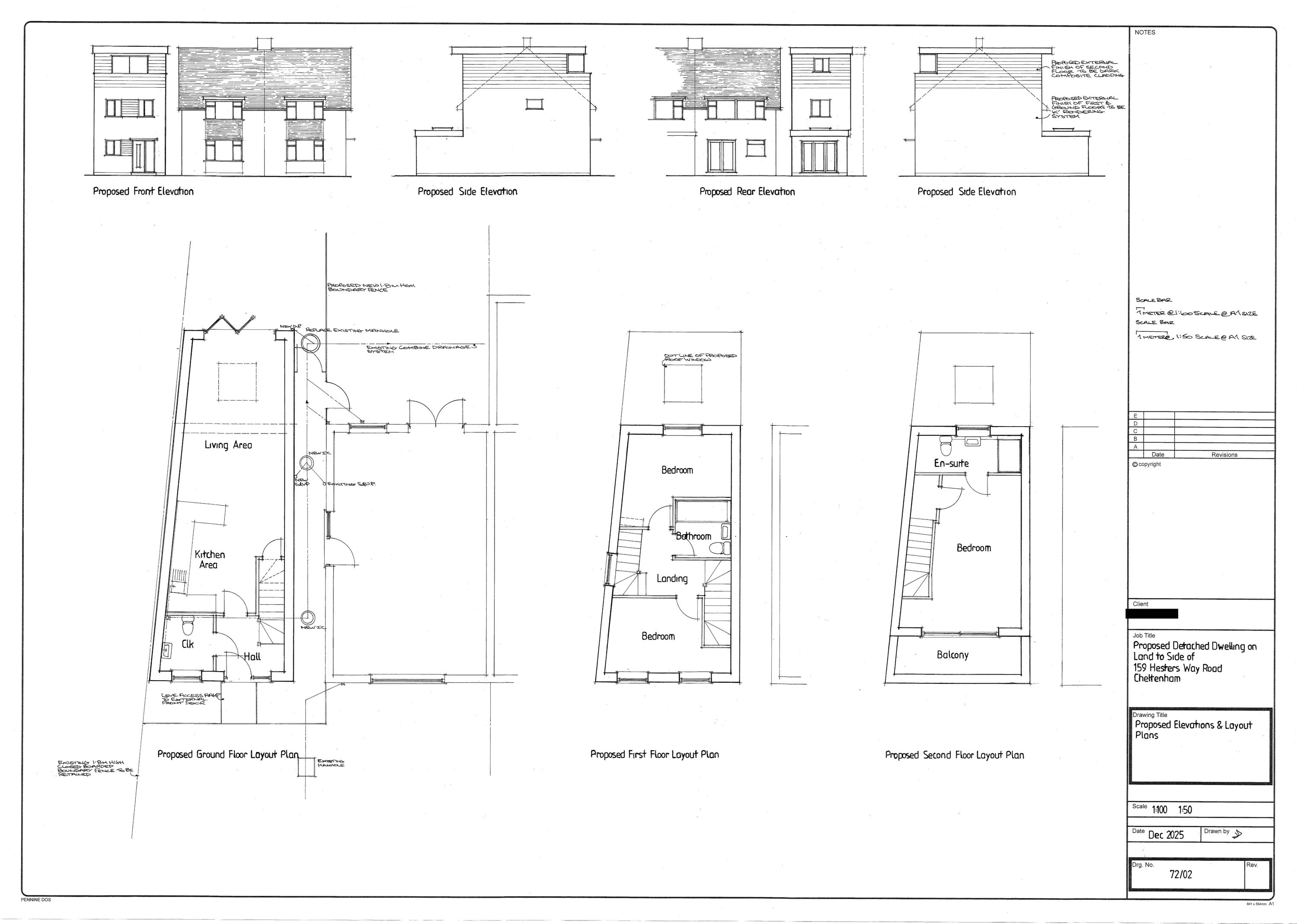
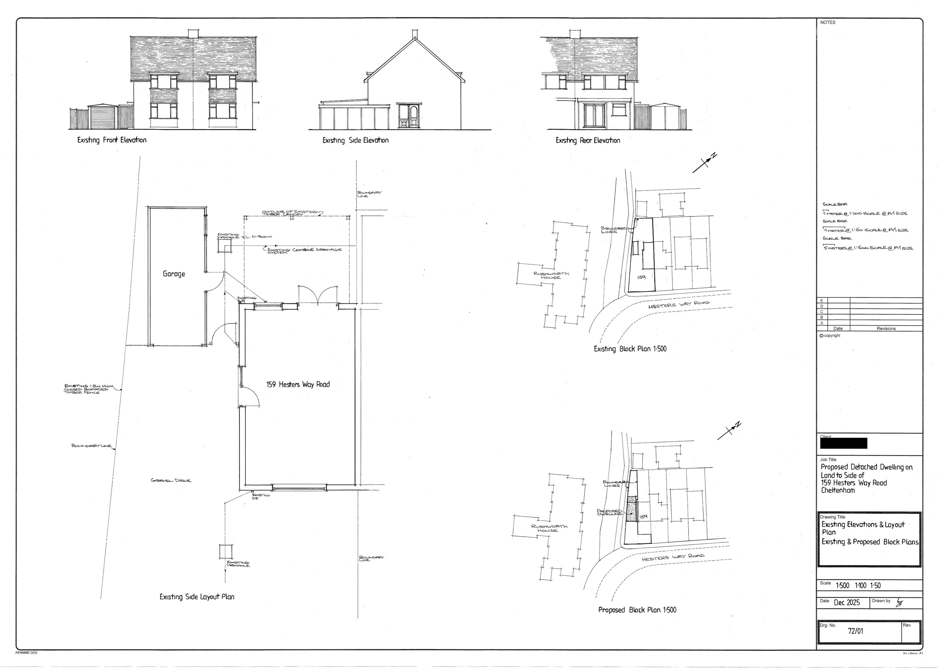
Proposed erection of a self-build detached dwelling on land adjacent to existing dwelling.

Documents

Application Form
Archived · Original link
Design and access statement
BackGround Papers
Not yet archived · Original link
BackGround Papers
Archived · Original link
OS Extract
Archived · Original link
Sustainable construction checklist
BackGround Papers
Not yet archived · Original link

Have your say

Your comment matters. Councils must consider every representation that raises material planning considerations.

Write a comment