← Cheshire West and Chester Council

Status

Awaiting decision New housing
Received
23 Dec 2024
New homes
120

Full proposal

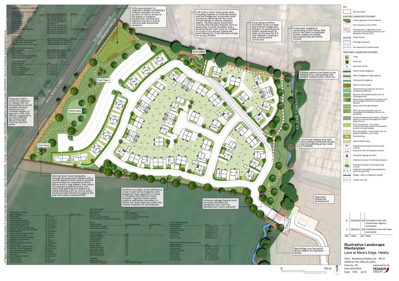
Outline application for up to 120 dwellings (with access for approval; appearance, landscaping, layout and scale reserved for future approval) residential development (Use Class C3) with new vehicular, pedestrian and cycle access, a new bridge and associated landscaping, engineering and demolition works

Documents

Drawing
Archived · Original link
APPENDIX A - REFH2 REPORTS
Document
Not yet archived · Original link
APPENDIX A - REFH2 REPORTS
Document
Not yet archived · Original link
APPENDIX A - REFH2 REPORTS
Document
Not yet archived · Original link
APPENDIX A - REFH2 REPORTS
Document
Not yet archived · Original link
Application Form
Archived · Original link
Document
Archived · Original link
Consultee Comment
Archived · Original link
Consultee Comment
Archived · Original link
Consultee Comment
Archived · Original link
Document
Archived · Original link
Document
Archived · Original link
Consultee Comment
Archived · Original link
Consultee Comment
Archived · Original link
Consultee Comment
Archived · Original link
Consultee Comment
Archived · Original link
Consultee Comment
Archived · Original link
Document
Archived · Original link
Document
Archived · Original link
Drawing
Archived · Original link
Document
Archived · Original link
Consultee Comment
Archived · Original link
Revised Drawing
Archived · Original link
Revised Drawing
Archived · Original link
Drawing
Archived · Original link
Revised Drawing
Archived · Original link
Revised Drawing
Archived · Original link
Consultee Comment
Archived · Original link
Consultee Comment
Archived · Original link
Consultee Comment
Archived · Original link
Consultee Comment
Archived · Original link
Consultee Comment
Archived · Original link
Consultee Comment
Archived · Original link
Document
Archived · Original link
Consultee Comment
Archived · Original link
Document
Archived · Original link
Document
Archived · Original link
Drawing
Archived · Original link
Document
Archived · Original link
Public Comment
Archived · Original link
Public Comment
Archived · Original link
Drawing
Archived · Original link
Site Notice
Archived · Original link
Consultee Comment
Archived · Original link
Drawing
Archived · Original link
Document
Archived · Original link
Document
Archived · Original link
Consultee Comment
Archived · Original link
Consultee Comment
Archived · Original link
Document
Archived · Original link
Consultee Comment
Archived · Original link

Have your say

Your comment matters. Councils must consider every representation that raises material planning considerations.

Write a comment