← Back to Cheshire West and Chester Council

Status

Awaiting decision New housing
Received 11 Apr 2025
New dwellings 27

What you can do

Take Action

Make your voice heard. Authorities need to hear from people who support new homes.

Summary

Outline for up to 27 dwellings with access, landscaping, drainage and retention of public right of way.

Full Proposal

Erection of up to 27 no. dwellings (C3) and associated infrastructure works including access, landscape, drainage and retention of an existing public right of way

Detail pages

Documents

AMENDED PRELIMINARY ECOLOGICAL APPRAISAL
Document
Not downloaded · Council link
AMENDED STATUTORY_BIODIVERSITY_METRIC_
Document
Not downloaded · Council link
APPLICATION FORM - WITHOUT PERSONAL DATA
Application Form
Not downloaded · Council link
ARBORICULTURAL IMPACT STATEMENT
Document
Not downloaded · Council link
CHESHIRE POLICE
Consultee Comment
Not downloaded · Council link
COVERING LETTER
Document
Not downloaded · Council link
DESIGN AND ACCESS STATEMENT
Document
Not downloaded · Council link
ECOLOGY TEAM
Consultee Comment
Not downloaded · Council link
EDUCATION TEAM
Consultee Comment
Not downloaded · Council link
ENVIRONMENTAL PROTECTION (CONTAMINATED LAND) TEAM
Consultee Comment
Not downloaded · Council link
ENVIRONMENTAL PROTECTION UNIT
Consultee Comment
Not downloaded · Council link
EXISTING SITE PLAN
Revised Drawing
Archived copy · Council link
EXISTING SITE PLAN
Drawing
Archived copy · Council link
FLOOD RISK ASSESSMENT AND DRAINAGE STRATEGY
Document
Not downloaded · Council link
HEALTH IMPACT STATEMENT
Document
Not downloaded · Council link
HIGHWAY COMMENTS
Consultee Comment
Not downloaded · Council link
ILLUSTRATIVE LAYOUT
Revised Drawing
Not downloaded · Council link
ILLUSTRATIVE LAYOUT
Revised Drawing
Not downloaded · Council link
ILLUSTRATIVE PLAN
Drawing
Not downloaded · Council link
LANDSCAPE AND VISUAL APPRAISAL
Document
Not downloaded · Council link
LANDSCAPE MASTERPLAN
Drawing
Not downloaded · Council link
LLFA
Consultee Comment
Not downloaded · Council link
LOCATION PLAN
Revised Drawing
Not downloaded · Council link
MR MARK LEAH - ARCHAEOLOGY
Consultee Comment
Not downloaded · Council link
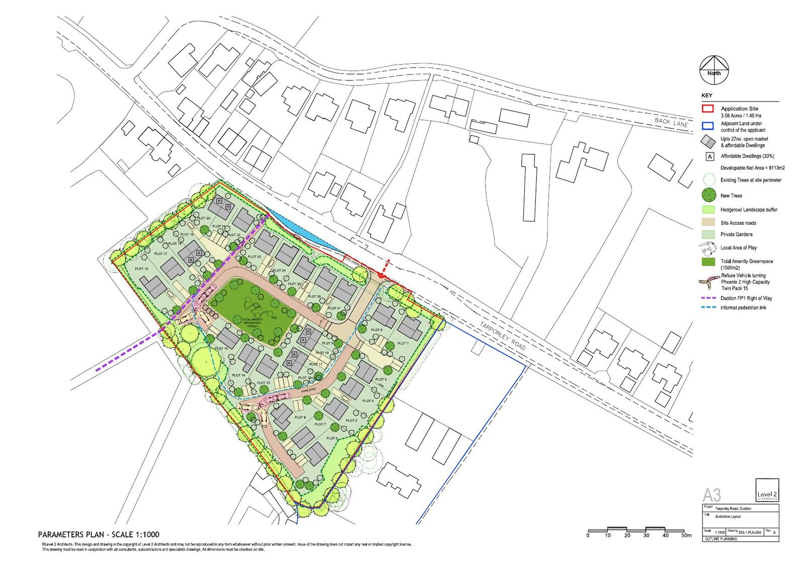
PARAMETERS PLAN
Drawing
Not downloaded · Council link
PARAMETERS PLAN
Revised Drawing
Not downloaded · Council link
PARAMETERS PLAN
Revised Drawing
Not downloaded · Council link
PHASE 1 GEO-ENVIRONMENTAL ASSESSMENT
Document
Not downloaded · Council link
PLANNING AND AFFORDABLE HOUSING STATEMENT
Document
Not downloaded · Council link
PLANNING AND AFFORDABLE HOUSING STATEMENT (MAY 2025)
Document
Not downloaded · Council link
PLAY AND OPEN SPACE TEAM COMMENTS
Consultee Comment
Not downloaded · Council link
PRELIMINARY ECOLOGICAL APPRAISAL AND BIODIVERSITY NET GAIN REPORT
Document
Not downloaded · Council link
PUBLIC HEALTH COMMENTS
Consultee Comment
Not downloaded · Council link
PUBLIC RIGHTS OF WAY TEAM
Consultee Comment
Not downloaded · Council link
Site Notice
Site Notice
Not downloaded · Council link
Site Notice
Site Notice
Not downloaded · Council link
Site Notice
Site Notice
Not downloaded · Council link
STATUTORY BIODIVERSITY METRIC
Document
Not downloaded · Council link
SUSTAINABLE CONSTRUCTION CHECKLIST
Document
Not downloaded · Council link
THE LOCATION PLAN
Drawing
Not downloaded · Council link
TOPOGRAPHICAL SURVEY 1
Drawing
Not downloaded · Council link
TOPOGRAPHICAL SURVEY 2
Drawing
Not downloaded · Council link
TOPOGRAPHICAL SURVEY 3
Drawing
Not downloaded · Council link
TRANSPORT STATEMENT
Document
Not downloaded · Council link
UNITED UTILITIES
Consultee Comment
Not downloaded · Council link
UPDATED DESIGN STATEMENT
Document
Not downloaded · Council link
URBAN DESIGN COMMENTS
Consultee Comment
Not downloaded · Council link
URBAN DESIGN OFFICER COMMENTS ON REVISED PLAN
Consultee Comment
Not downloaded · Council link
WELSH WATER
Consultee Comment
Not downloaded · Council link