← Back to Cheshire West and Chester Council
Application
25/01355/FUL
Cheshire West and Chester Council · IDOX
Status
Awaiting decision
New housing
Received
29 Apr 2025
New dwellings
1
What you can do
Take Action
Make your voice heard. Authorities need to hear from people who support new homes.
Summary
Demolish existing house and build replacement dwelling with new access and driveway.
Full Proposal
Demolition of existing dwellinghouse and erection of new replacement dwelling with new access and driveway
Detail pages
- View live detail on council site
- No archived detail page available.
Documents
APPLICATION FORM - WITHOUT PERSONAL DATA
Application Form
Not downloaded
· Council link
ARBORICULTURAL IMPACT ASSESSMENT PLAN
Drawing
Not downloaded
· Council link
ARBORICULTURAL METHOD STATEMENT PLAN
Drawing
Not downloaded
· Council link
ARBORICULTURAL REPORT
Document
Not downloaded
· Council link
DESIGN AND ACCESS STATEMENT
Document
Not downloaded
· Council link
EXISTING AND PROPOSED STREET SCENE
Drawing
Not downloaded
· Council link
EXISTING ELEVATIONS
Drawing
Not downloaded
· Council link
EXISTING ELEVATIONS - SIDE
Drawing
Not downloaded
· Council link
EXISTING FLOOR PLANS
Drawing
Not downloaded
· Council link
EXISTING LOCATION PLAN
Drawing
Not downloaded
· Council link
EXISTING SITE PLAN
Drawing
Archived copy
· Council link
EXISTING TREE SITE PLAN
Drawing
Archived copy
· Council link
LANDSCAPING DETAILS
Drawing
Not downloaded
· Council link
PRELIMINARY ECOLOGICAL APPRAISAL
Document
Not downloaded
· Council link
PROPOSED ELEVATIONS
Drawing
Not downloaded
· Council link
PROPOSED FLOOR PLAN - FIRST
Drawing
Not downloaded
· Council link
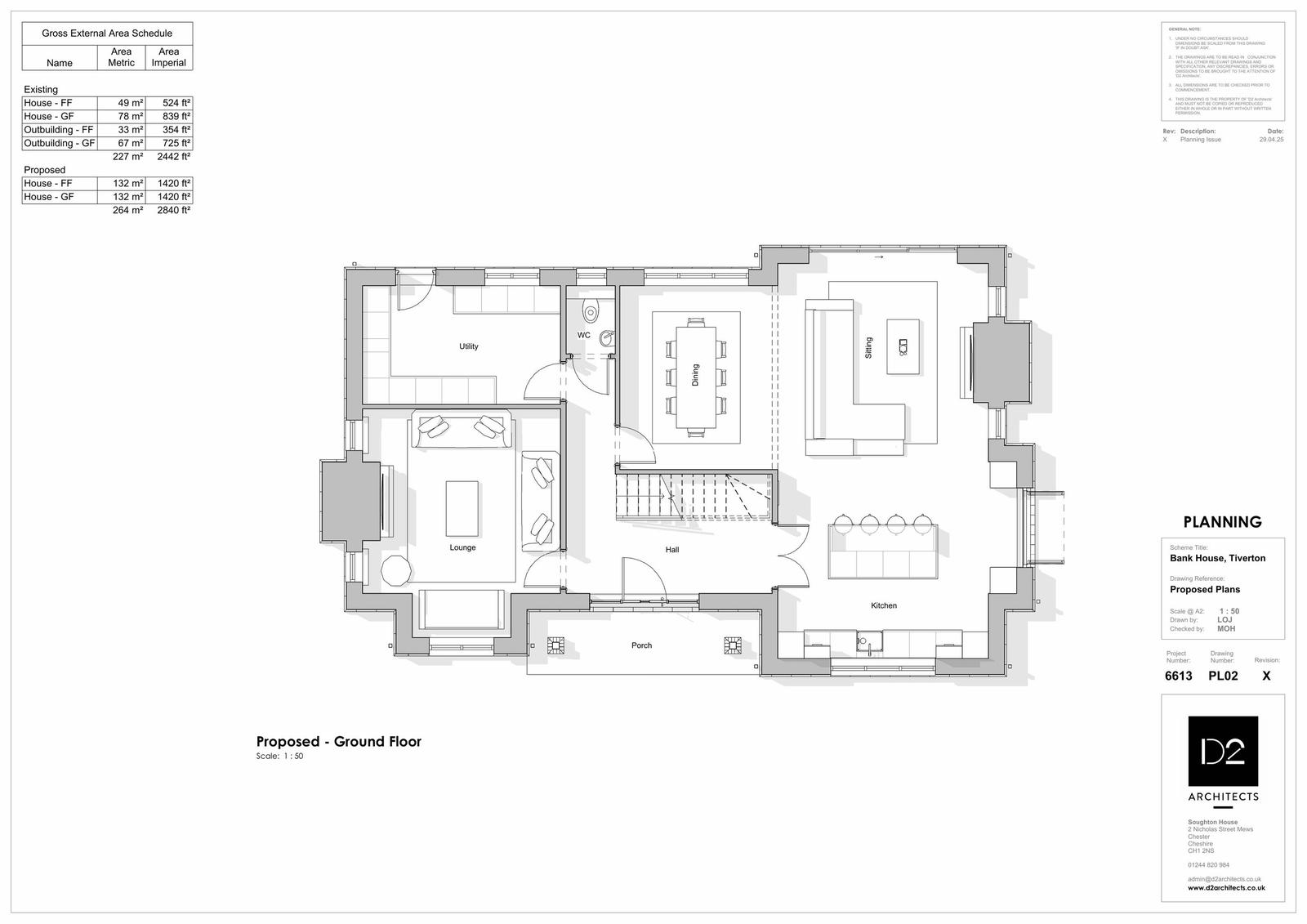
PROPOSED FLOOR PLAN - GROUND
Drawing
Not downloaded
· Council link
PROPOSED SITE PLAN
Drawing
Archived copy
· Council link
RESIDENTS COMMENTS
Public Comment
Not downloaded
· Council link
Site Notice
Site Notice
Not downloaded
· Council link
Site Notice
Site Notice
Not downloaded
· Council link
TREE CONSTRAINTS PLAN
Drawing
Not downloaded
· Council link
TREE SCHEDULE
Document
Not downloaded
· Council link