← Cheshire West and Chester Council

Status

Awaiting decision Change of use
Received
26 May 2025
New homes
0

Full proposal

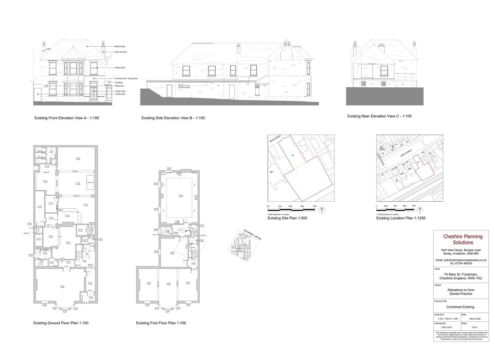
Change of use of ground floor to a dental practice and related construction works to include refurbishment of the building, raising the roof of the single storey extension, roof repairs and new doors and windows

Documents

Application Form
Archived · Original link
Consultee Comment
Archived · Original link
Document
Archived · Original link
Consultee Comment
Archived · Original link
Document
Archived · Original link
Drawing
Archived · Original link
Site Notice
Archived · Original link
Site Notice
Archived · Original link
Document
Archived · Original link
Document
Archived · Original link

Have your say

Your comment matters. Councils must consider every representation that raises material planning considerations.

Write a comment