← Cheshire West and Chester Council

Status

Awaiting decision Change of use
Received
22 Jan 2026
New homes
0

Full proposal

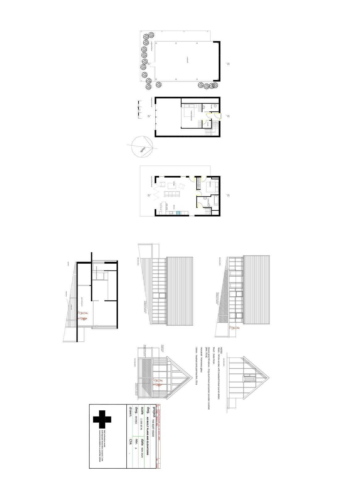
Conversion of existing boathouse to dwelling (retrospective)

Documents

Application Form
Archived · Original link
APPLICATION FORM
Application Form
Not yet archived · Original link
Drawing
Archived · Original link
Drawing
Archived · Original link
Consultee Comment
Archived · Original link
Document
Archived · Original link
Consultee Comment
Archived · Original link
Document
Archived · Original link
Drawing
Archived · Original link
Consultee Comment
Archived · Original link
Document
Archived · Original link
Document
Archived · Original link
Drawing
Archived · Original link

Have your say

Your comment matters. Councils must consider every representation that raises material planning considerations.

Write a comment