← Cheshire West and Chester Council

Status

Awaiting decision New housing
Received
22 Jan 2026
New homes
2

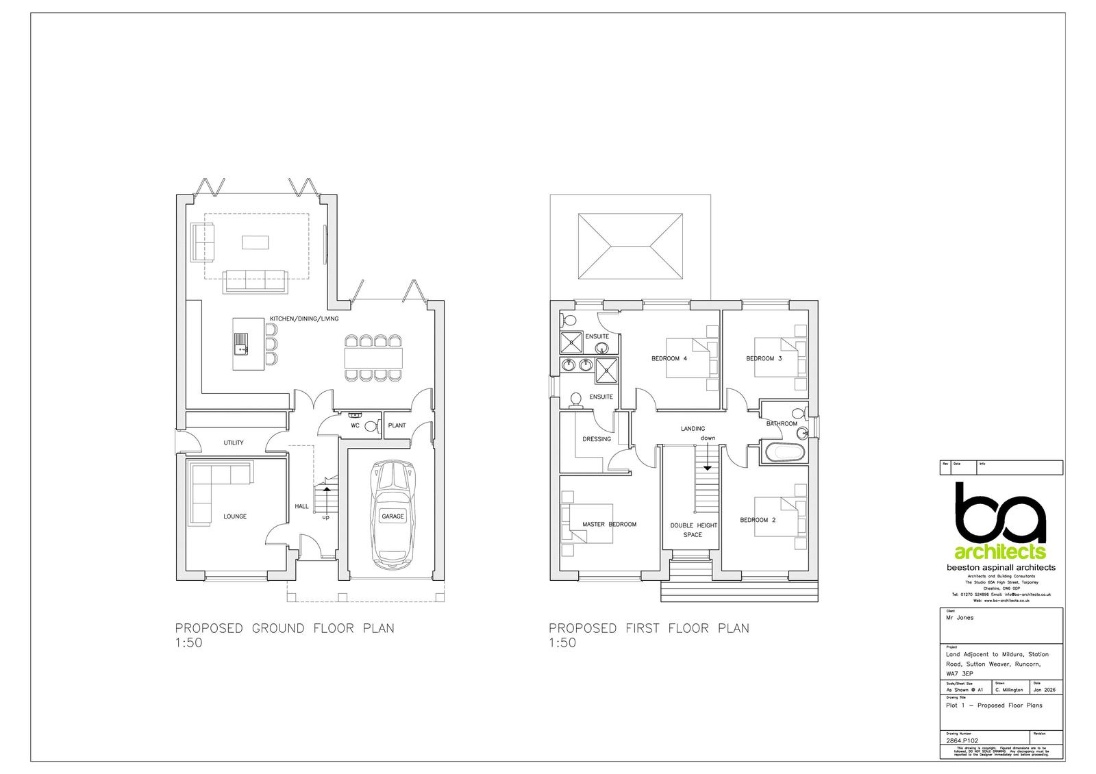
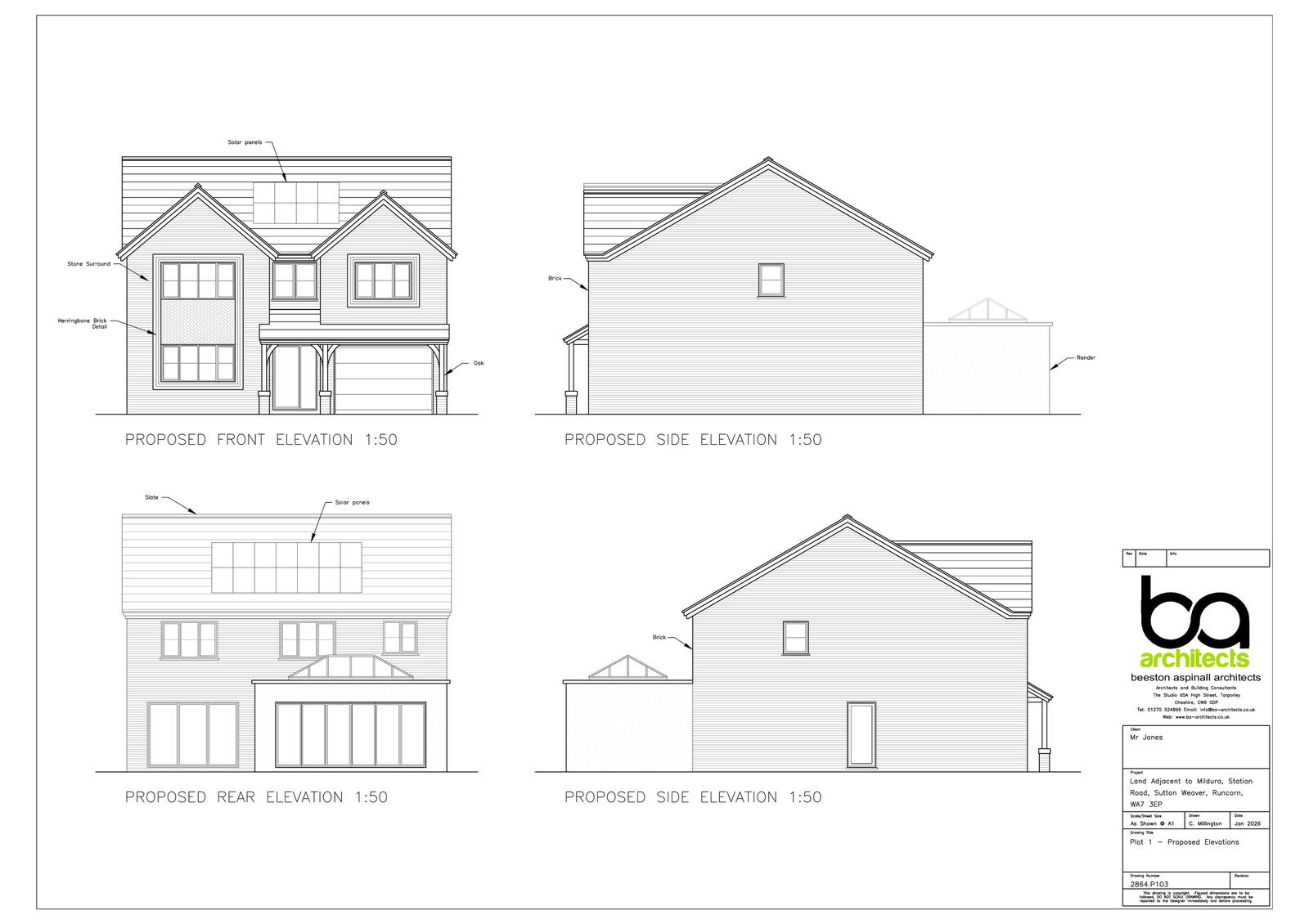
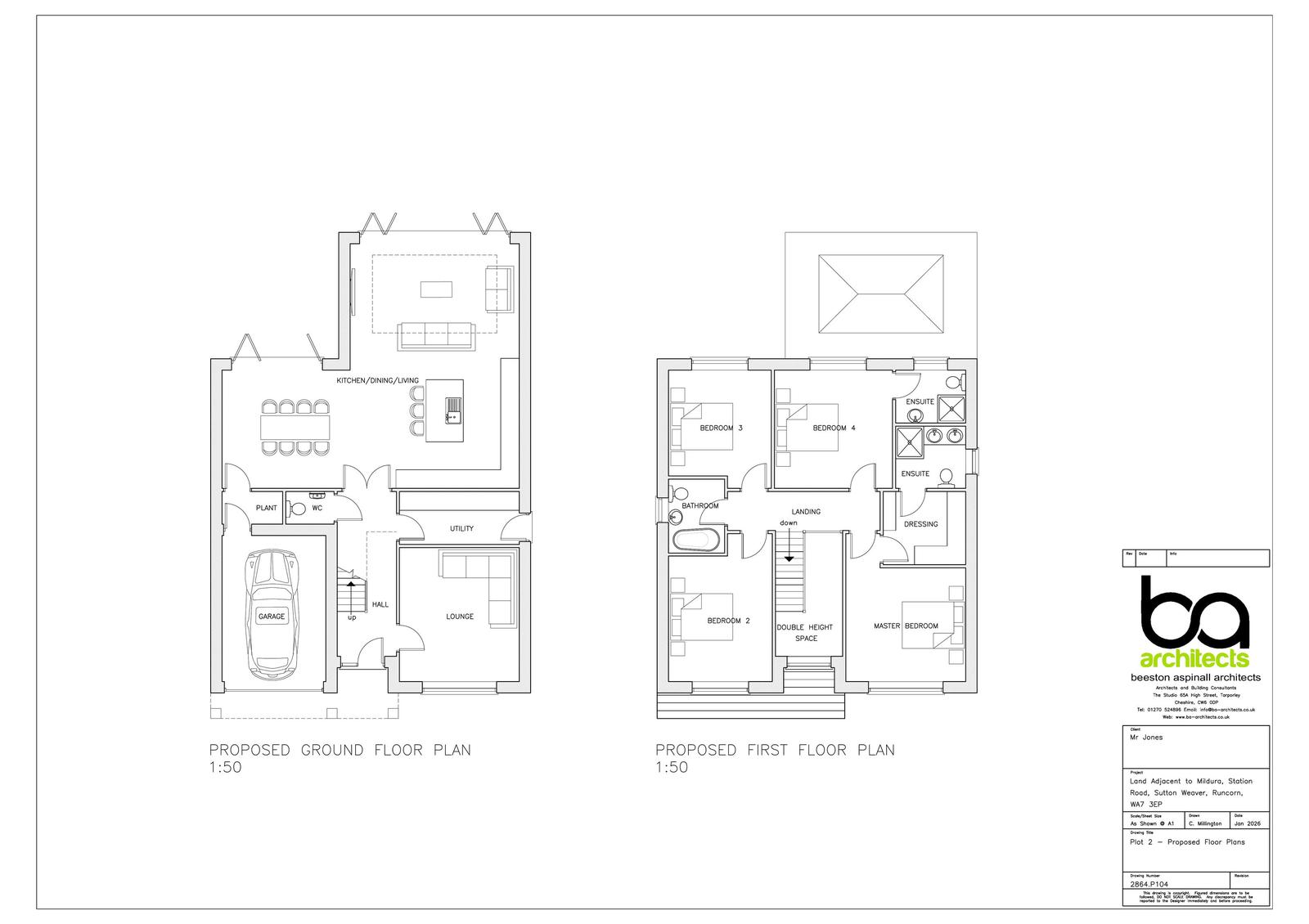
Full proposal

Erection of two dwellings

Documents

Application Form
Archived · Original link
APPLICATION FORM - WITHOUT PERSONAL DATA
Application Form
Not yet archived · Original link
Document
Archived · Original link
Document
Archived · Original link
METRIC
Document
Not yet archived · Original link
Document
Archived · Original link
Drawing
Archived · Original link
Drawing
Archived · Original link

Have your say

Your comment matters. Councils must consider every representation that raises material planning considerations.

Write a comment