← Cheshire West and Chester Council

Status

Awaiting decision New housing
Received
04 Feb 2026
New homes
16

Full proposal

Erection of up to 16 no. dwellings (C3) and all associated infrastructure works

Documents

BNG METRIC CALCULATION
Document
Not yet archived · Original link
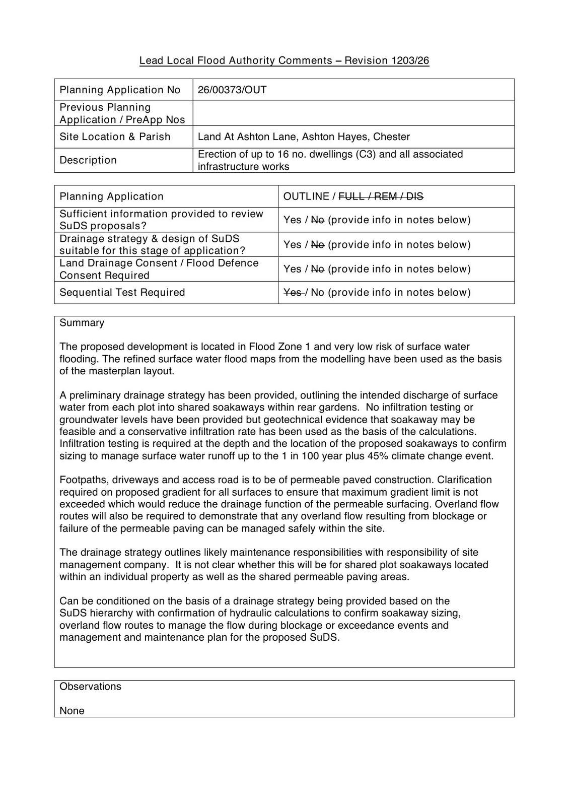
Consultee Comment
Archived · Original link
Document
Archived · Original link
Drawing
Archived · Original link
Document
Archived · Original link
Drawing
Archived · Original link
Document
Archived · Original link
Consultee Comment
Archived · Original link
Consultee Comment
Archived · Original link
Drawing
Archived · Original link
Consultee Comment
Archived · Original link
Document
Archived · Original link
Drawing
Archived · Original link
Drawing
Archived · Original link
Drawing
Archived · Original link
Document
Archived · Original link

Have your say

Your comment matters. Councils must consider every representation that raises material planning considerations.

Write a comment