← Cheshire West and Chester Council
26/00376/FUL
Cheshire West and Chester Council
Status
Awaiting decision
Change of use
Received
04 Feb 2026
New homes
1
Full proposal
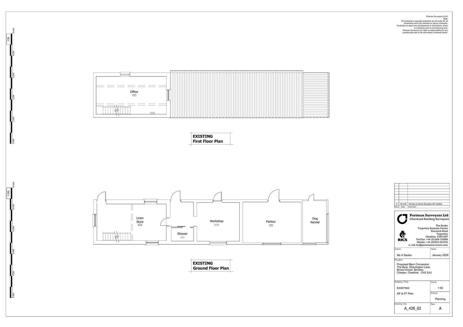
Conversion of existing Shippon with replacement extension to one dwelling
Documents
Have your say
Your comment matters. Councils must consider every representation that raises material planning considerations.