← Cheshire West and Chester Council
26/00394/FUL
Cheshire West and Chester Council
Status
Awaiting decision
New housing
Received
Last month
New homes
1
Full proposal
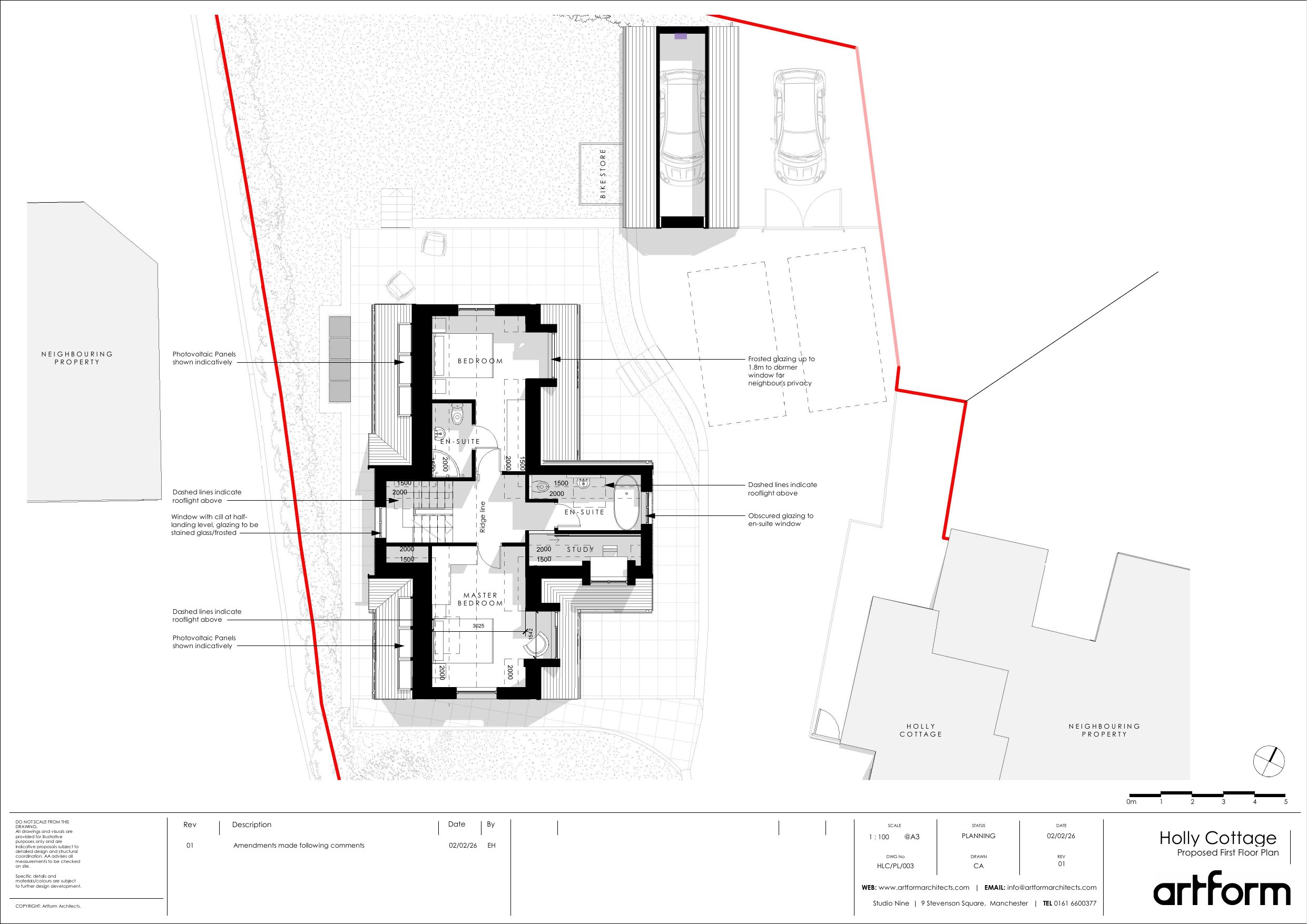
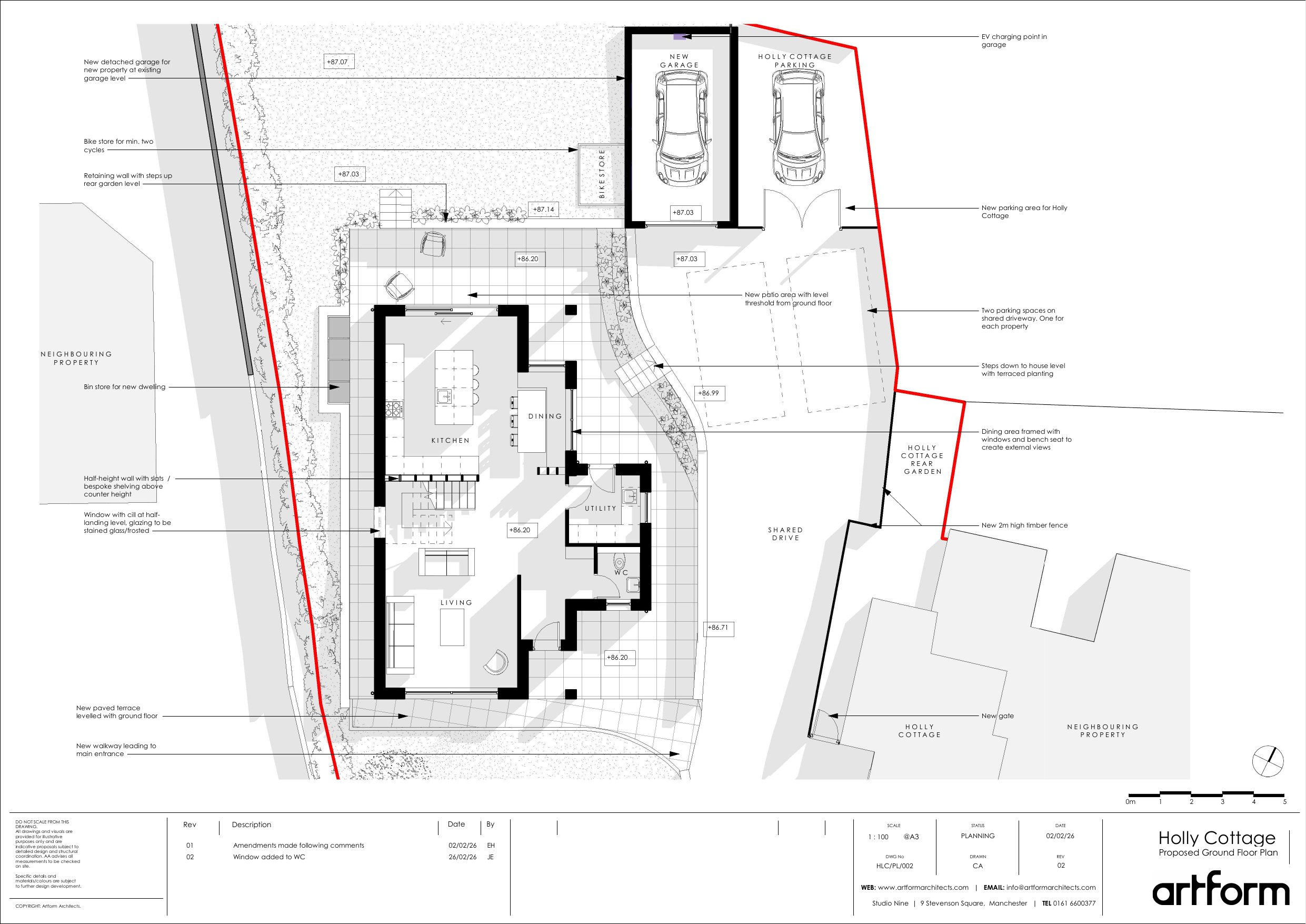
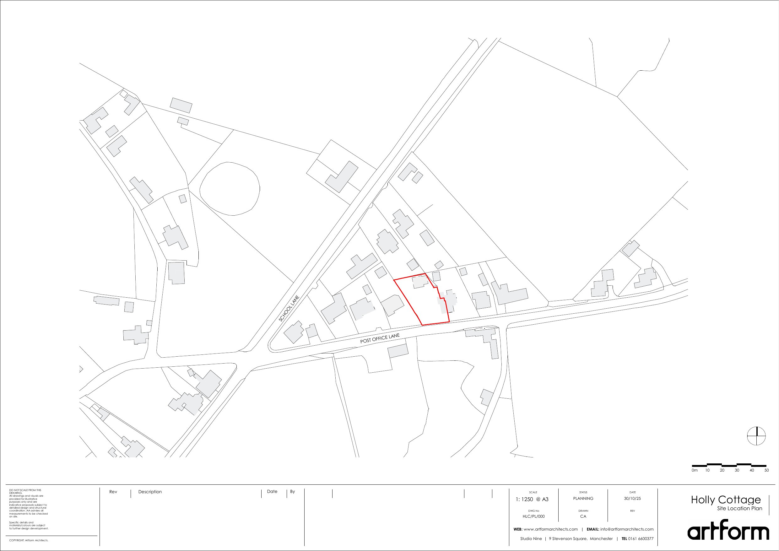
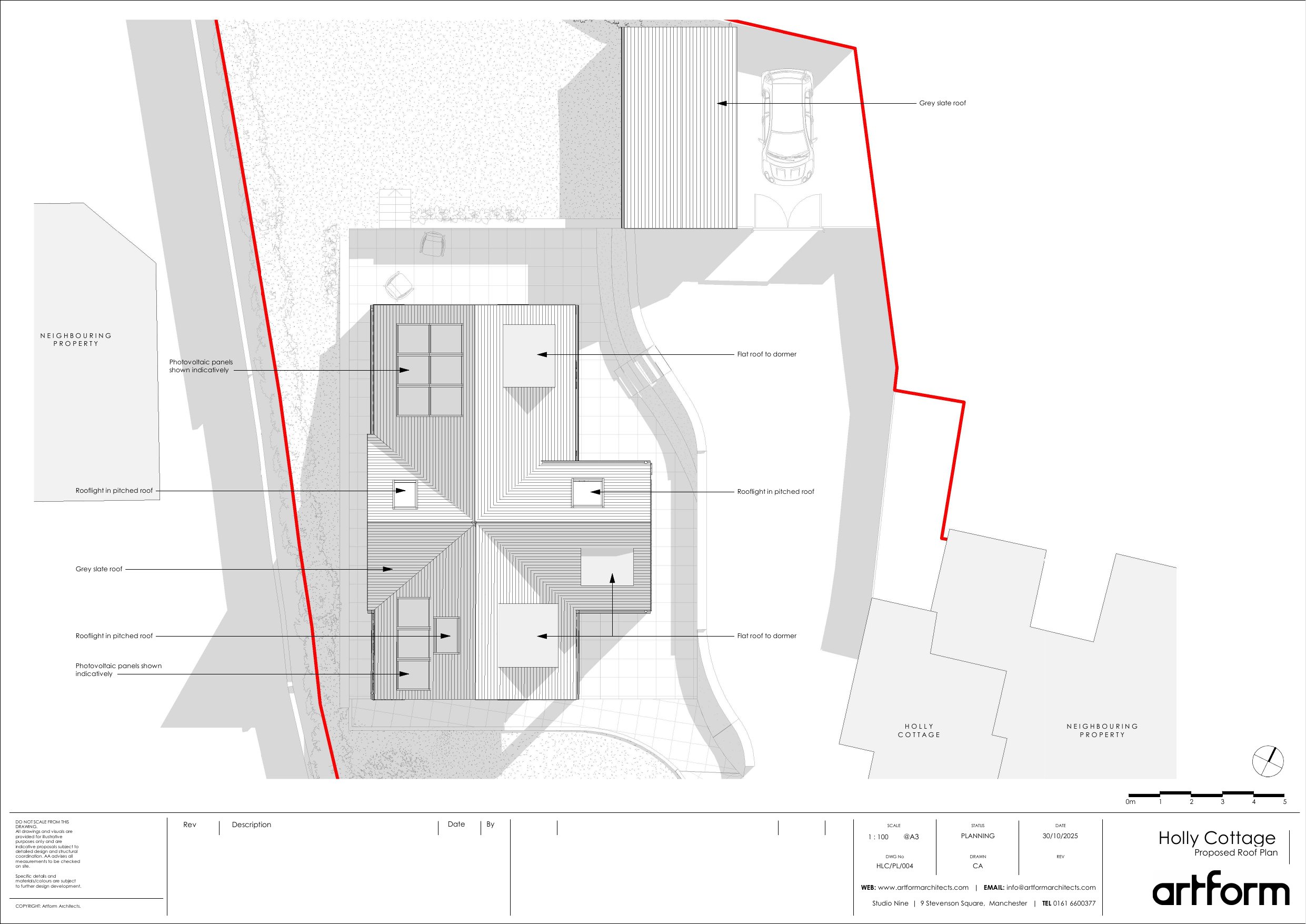
Demolition of the existing garage and workshop and the erection of a new dwelling with associated parking
Documents
Have your say
Your comment matters. Councils must consider every representation that raises material planning considerations.