← Cheshire West and Chester Council
26/00425/FUL
Cheshire West and Chester Council
Status
Awaiting decision
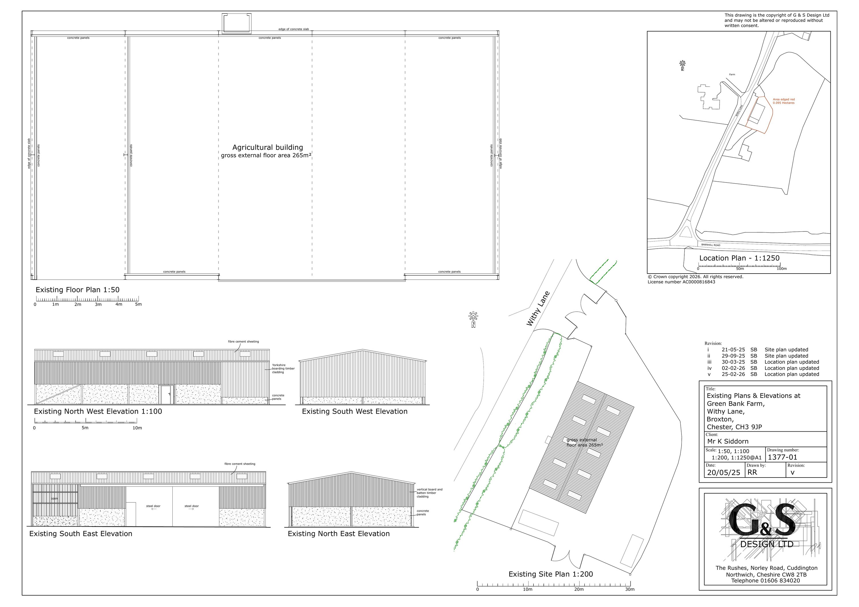
Change of use
Received
Last month
New homes
2
Full proposal
Conversion of the existing barn into two dwellings
Documents
Have your say
Your comment matters. Councils must consider every representation that raises material planning considerations.