← Cheshire West and Chester Council

Status

Awaiting decision House extension
Received
Last month
New homes
0

Full proposal

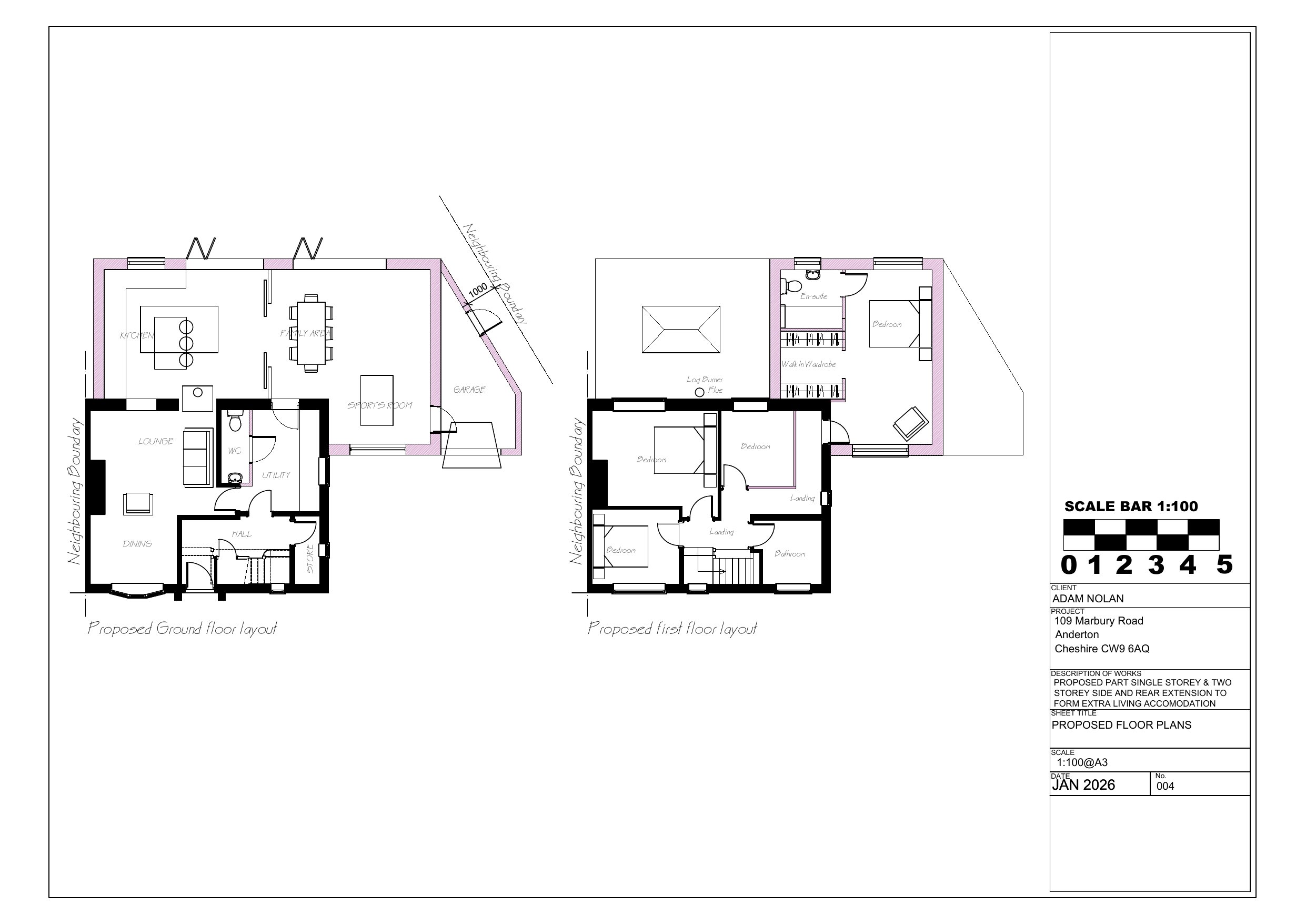
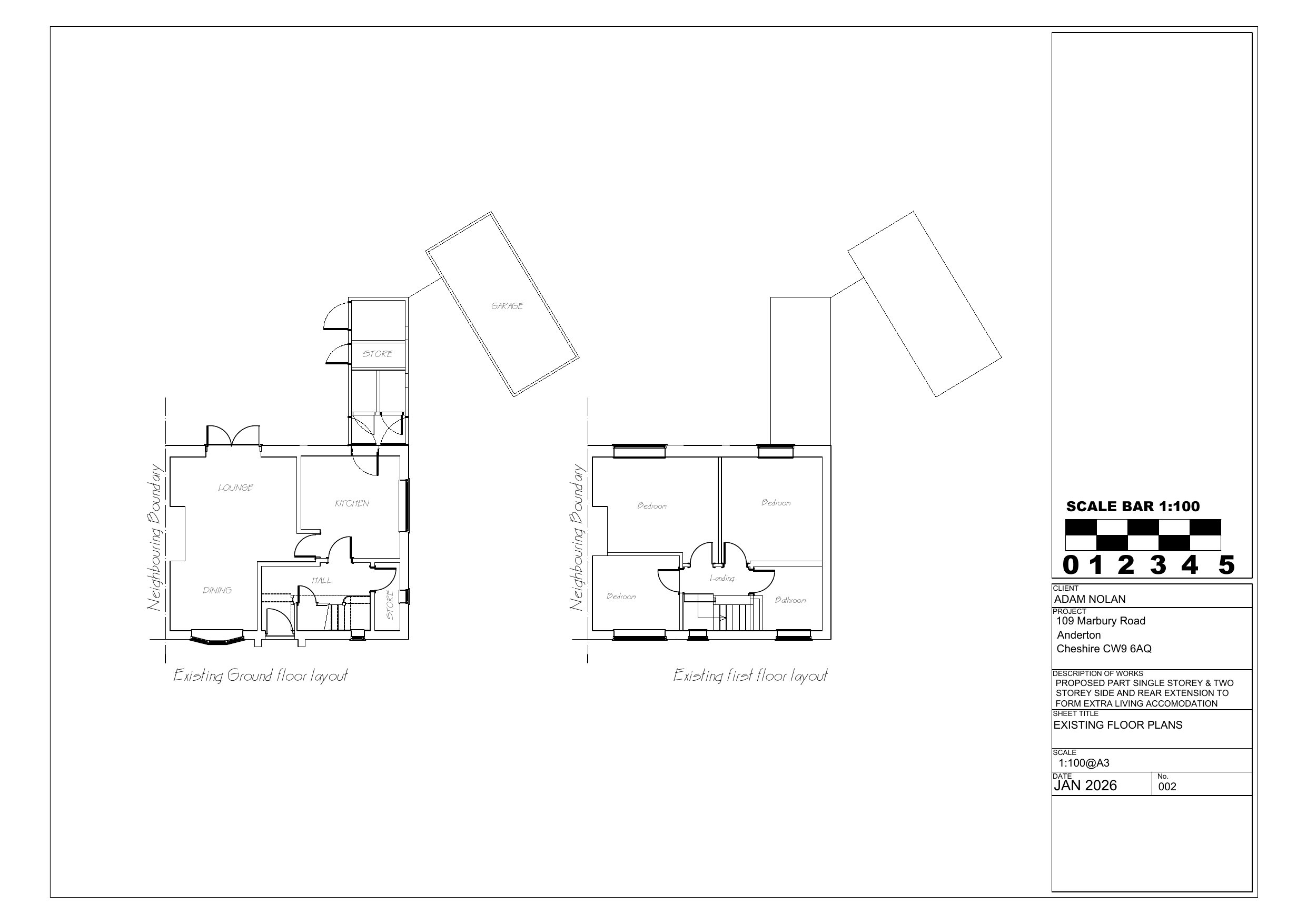
Demolition of existing detached garage, and rear extension. Erection part two storey side and rear extension and single storey side extension, and single storey rear extension

Documents

Drawing
Archived · Original link
Drawing
Archived · Original link
Drawing
Archived · Original link
Drawing
Archived · Original link
Drawing
Archived · Original link
Drawing
Archived · Original link

Have your say

Your comment matters. Councils must consider every representation that raises material planning considerations.

Write a comment