← Cheshire West and Chester Council
26/00458/FUL
Cheshire West and Chester Council
Status
Awaiting decision
House extension
Received
Last month
New homes
0
Full proposal
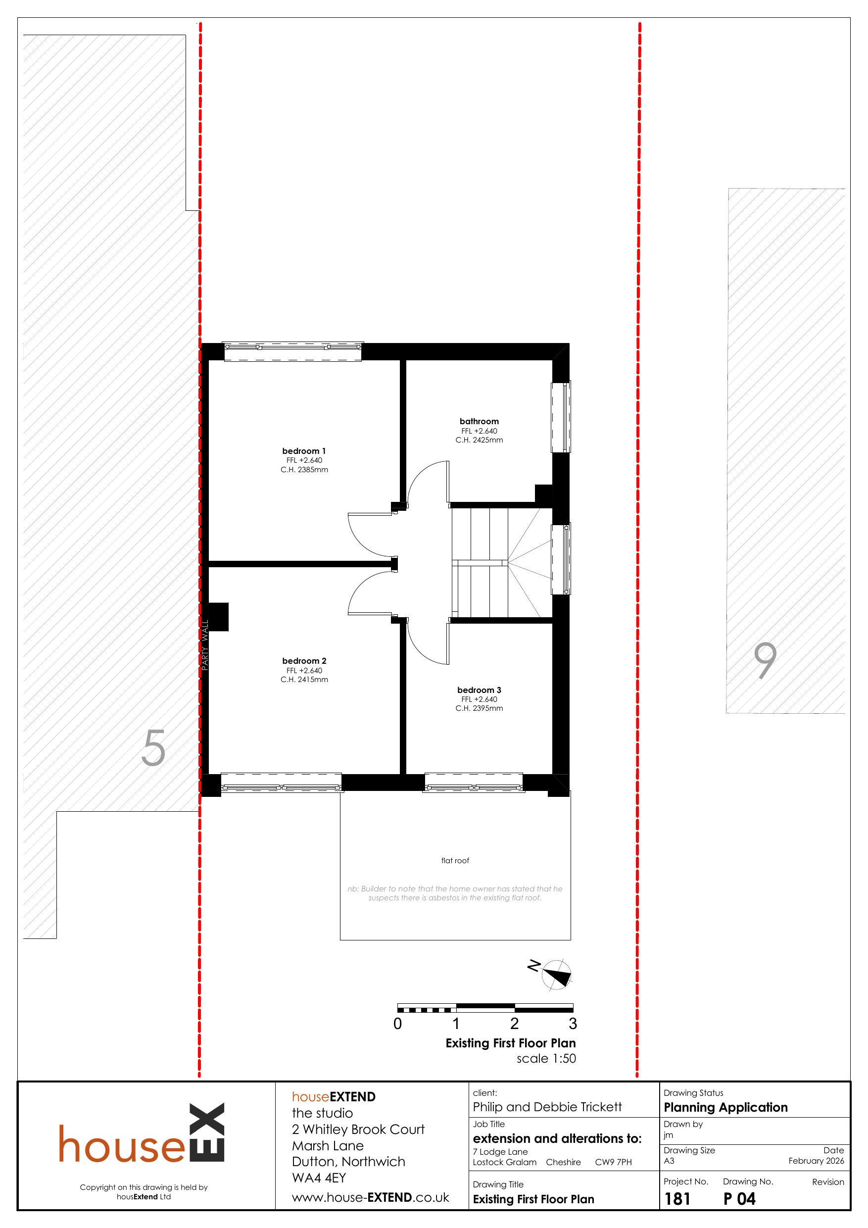
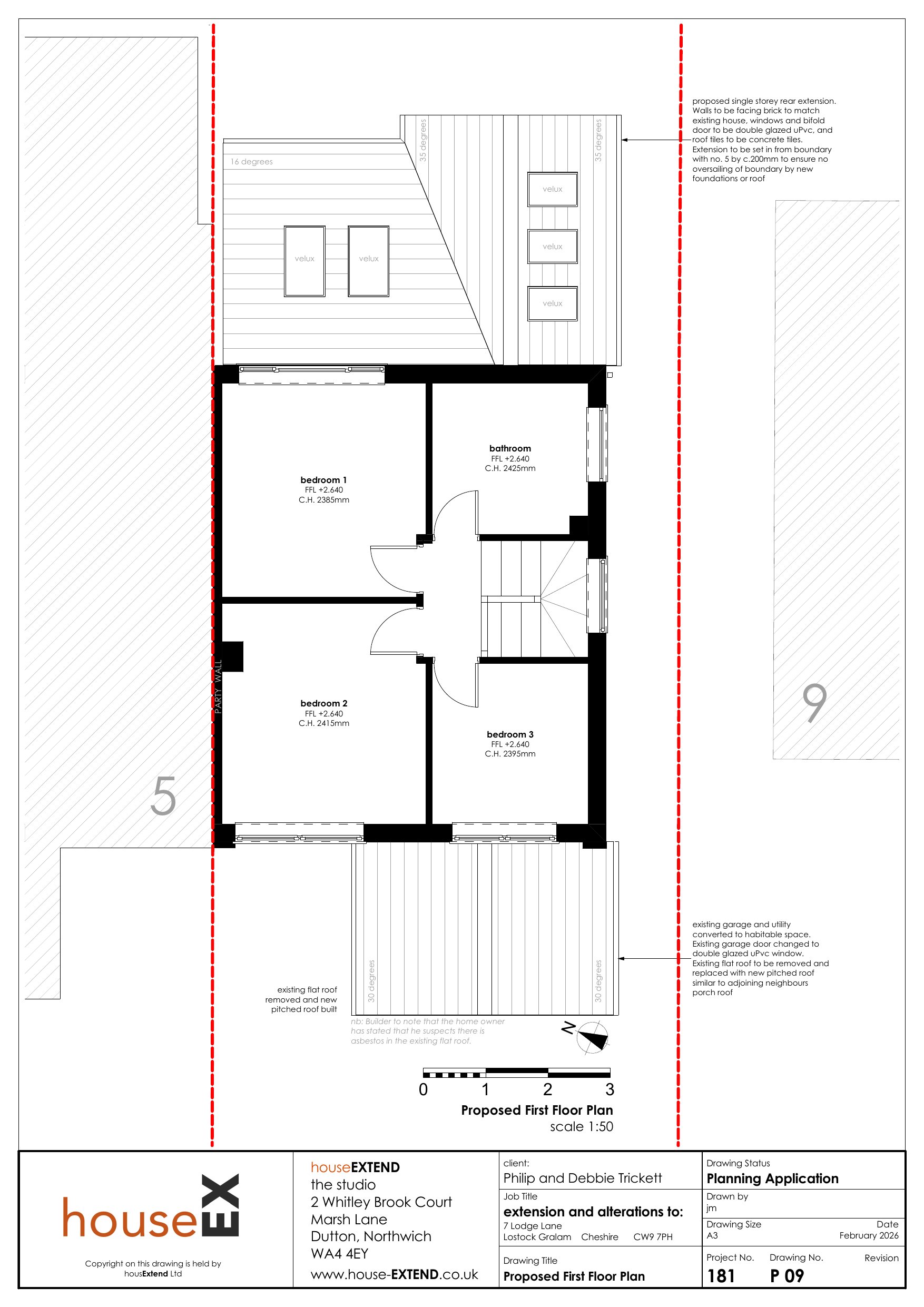
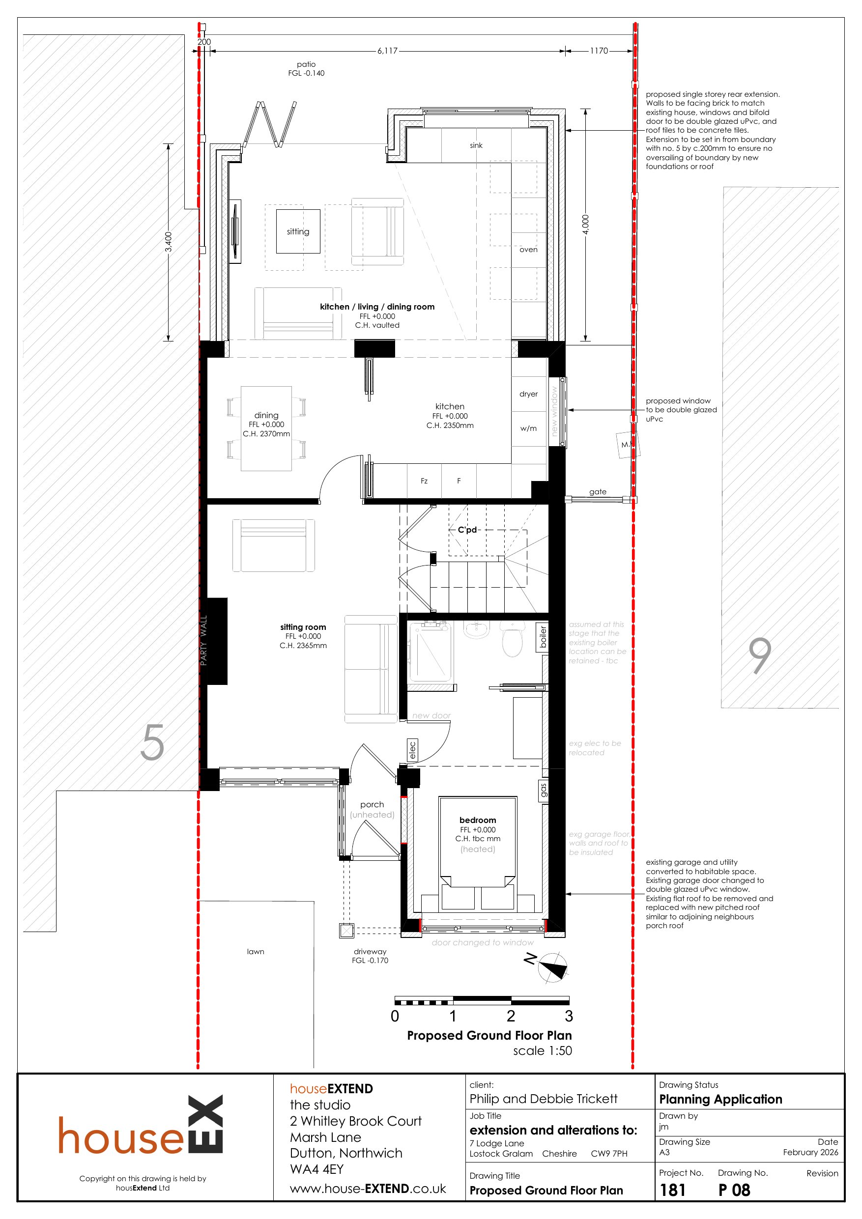
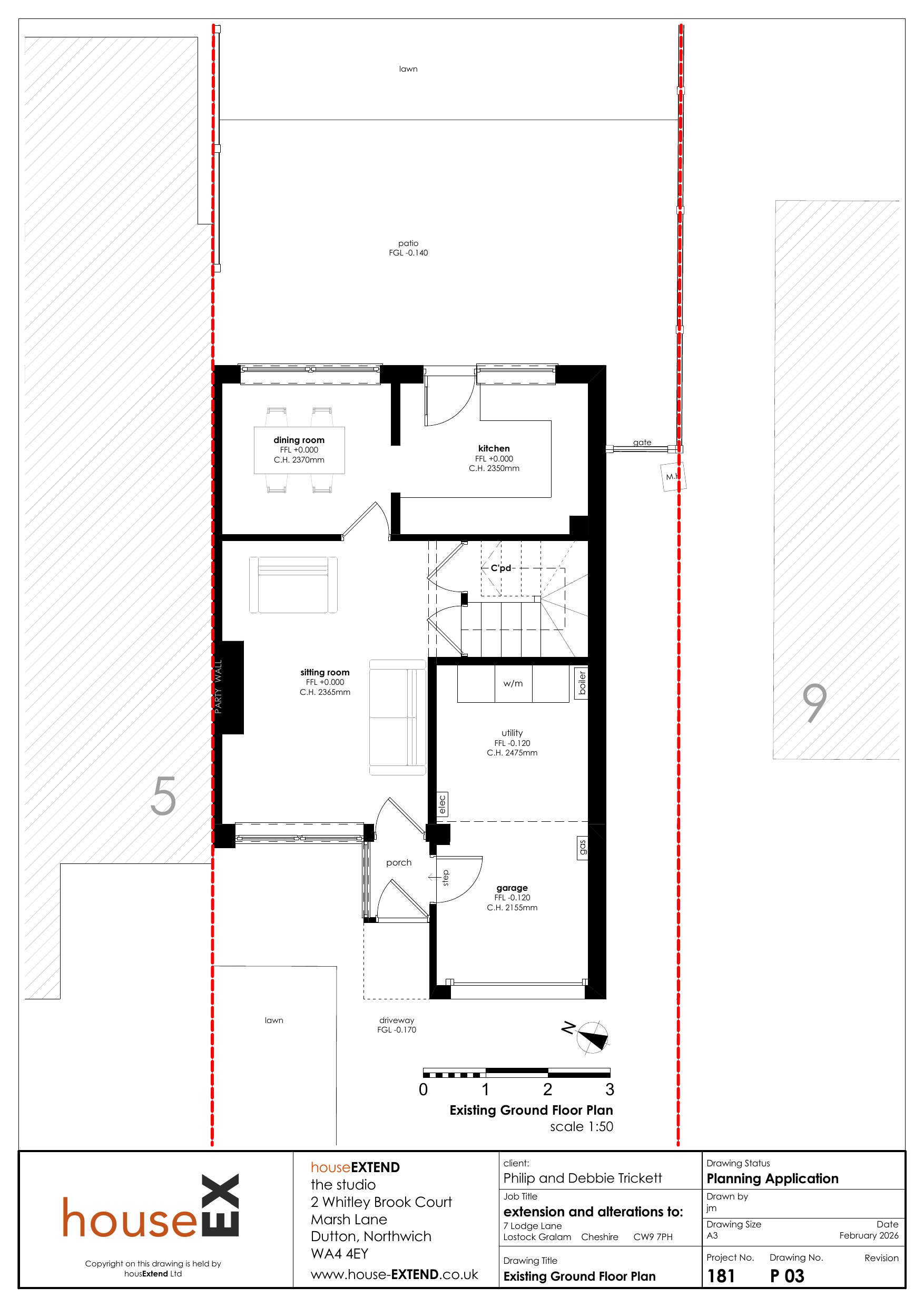
Single storey rear extension, replace existing garage flat roof with pitched roof and new window to existing side elevation.
Documents
Have your say
Your comment matters. Councils must consider every representation that raises material planning considerations.