← Cheshire West and Chester Council

Status

Awaiting decision House extension
Received
Last month
New homes
0

Full proposal

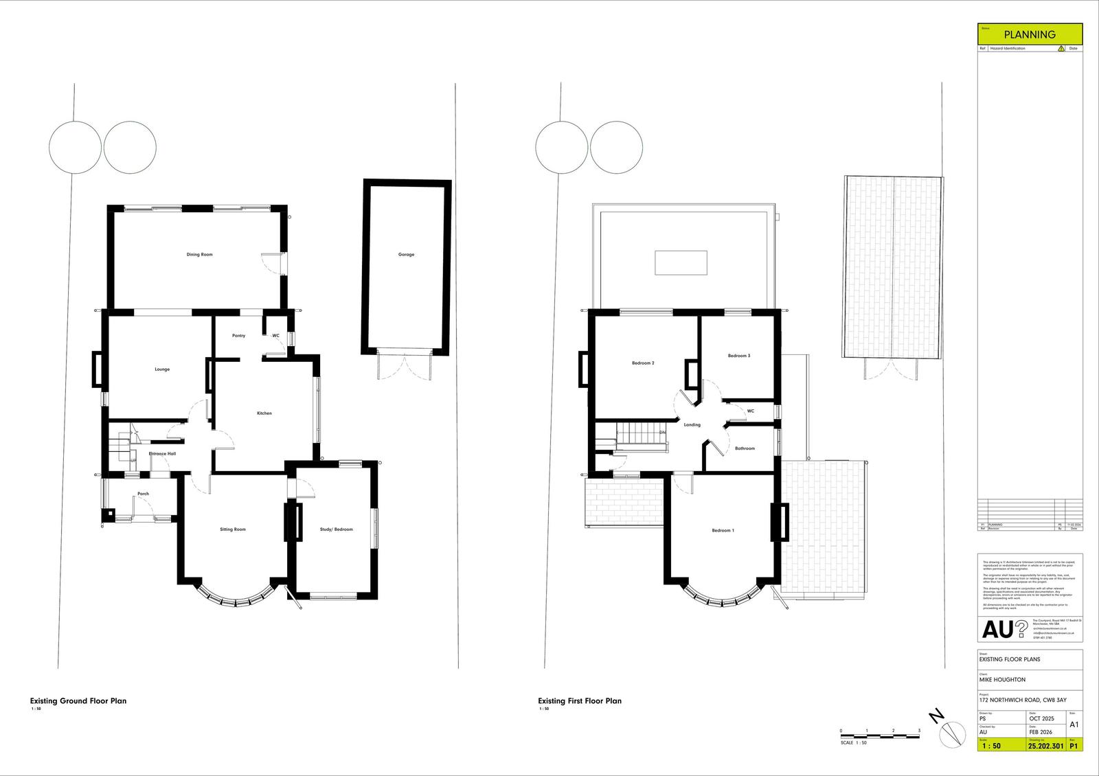
Erection of part two-storey and part single-storey front and side extensions with new front porch. Replacement of all windows and external render to all elevations with partial render to side (east) elevation. Conversion of the existing garage into secondary ancillary space for a home gym, office, and bathroom, with render finish.

Documents

Application Form
Archived · Original link
Drawing
Archived · Original link
Drawing
Archived · Original link
Revised Drawing
Archived · Original link
Drawing
Archived · Original link
Drawing
Archived · Original link
Drawing
Archived · Original link
Drawing
Archived · Original link

Have your say

Your comment matters. Councils must consider every representation that raises material planning considerations.

Write a comment