← Cheshire West and Chester Council

Status

Awaiting decision Change of use
Received
Last month
New homes
1

Full proposal

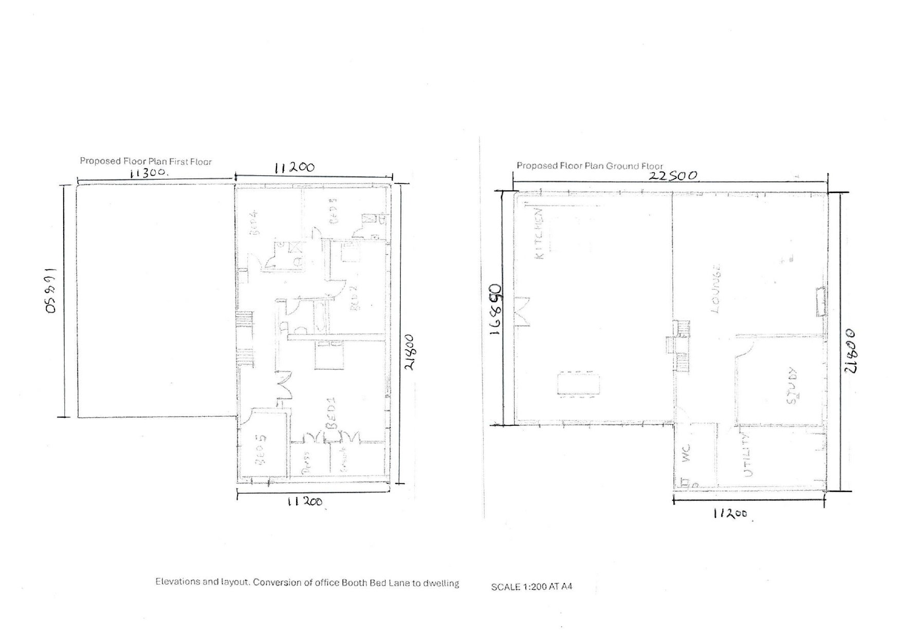
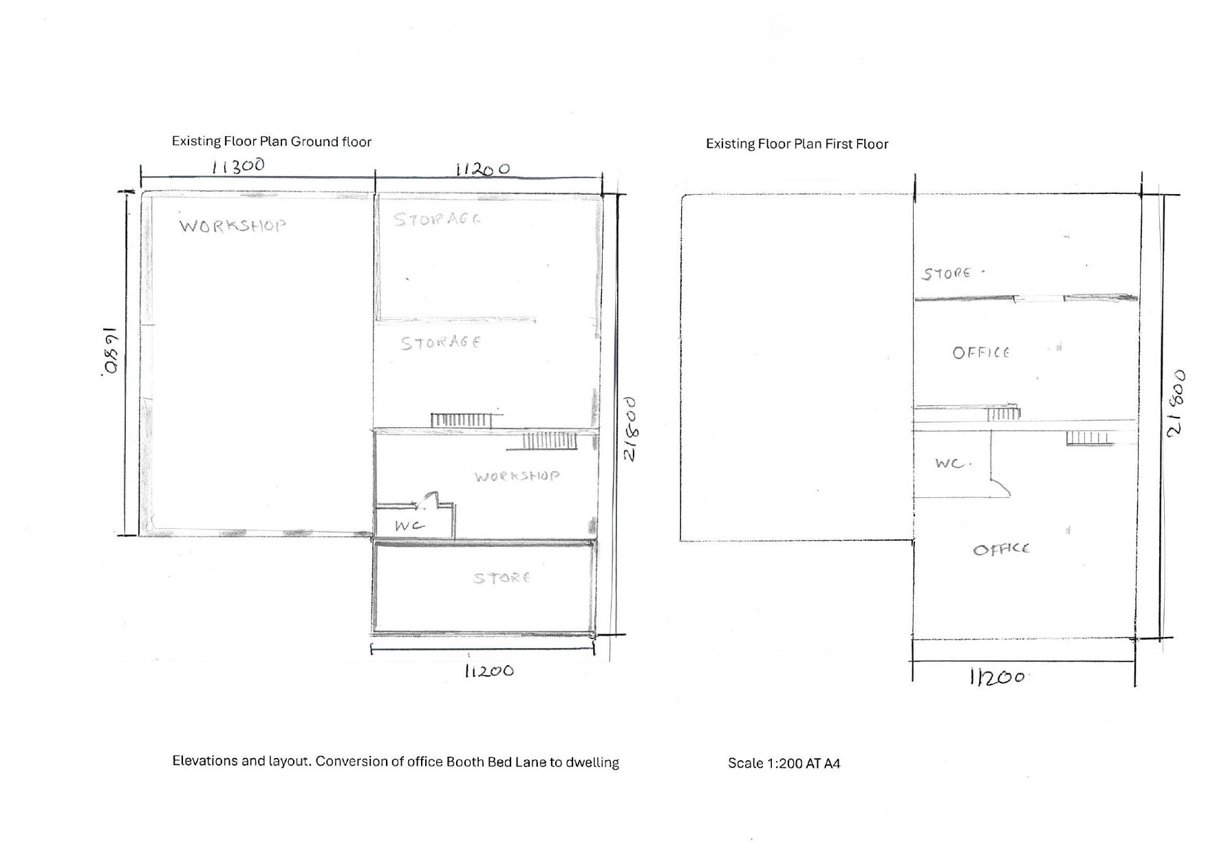
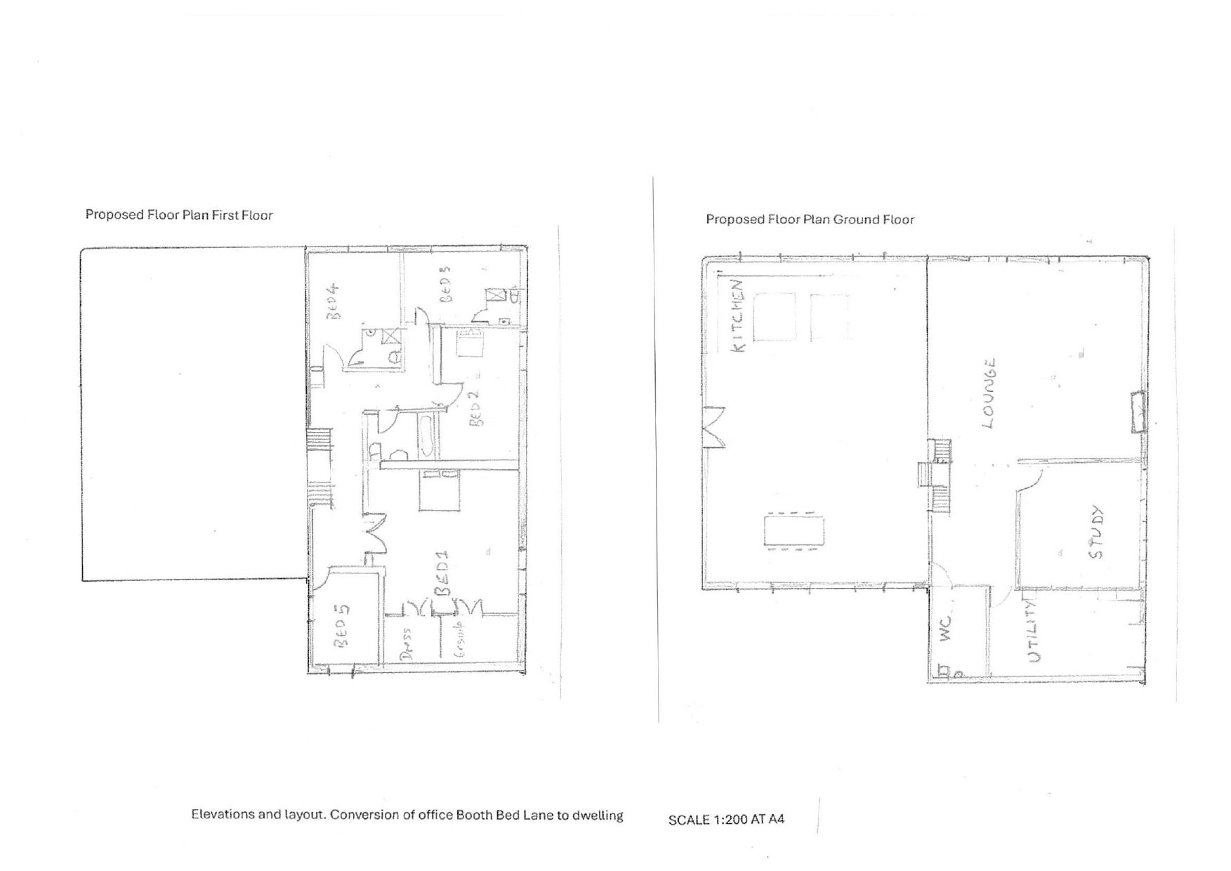
Conversion of existing office store workshop commercial B1 building into single two storey dwelling

Documents

Application Form
Archived · Original link
Drawing
Archived · Original link
Drawing
Archived · Original link
Drawing
Archived · Original link
Drawing
Archived · Original link
Drawing
Archived · Original link
Drawing
Archived · Original link
Drawing
Archived · Original link
Drawing
Archived · Original link
Drawing
Archived · Original link
Drawing
Archived · Original link

Have your say

Your comment matters. Councils must consider every representation that raises material planning considerations.

Write a comment