← Cheshire West and Chester Council
26/00479/FUL
Cheshire West and Chester Council
Status
Awaiting decision
House extension
Received
Last month
New homes
0
Full proposal
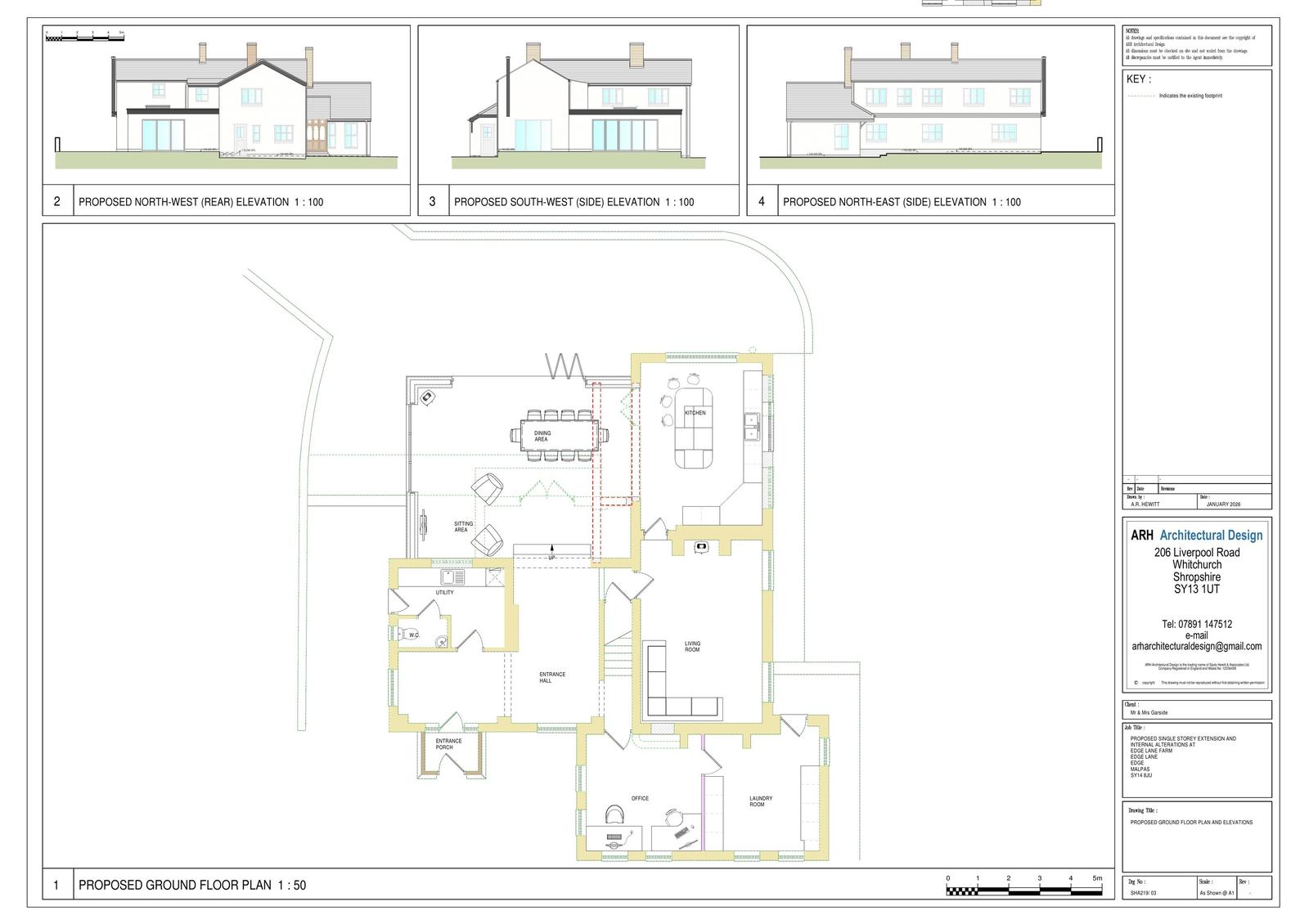
Removal of existing single-storey rear extension and erection of a replacement single-storey rear extension to provide a kitchen and dining area.
Documents
Have your say
Your comment matters. Councils must consider every representation that raises material planning considerations.