← Cheshire West and Chester Council
26/00514/FUL
Cheshire West and Chester Council
Status
Awaiting decision
Change of use
Received
Last month
New homes
1
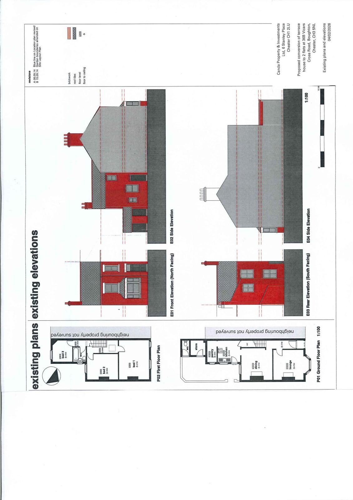
Full proposal
Conversion of an existing dwelling into two 2-bedroom flats, including the replacement of a rear ground-floor window with a door.
Documents
Have your say
Your comment matters. Councils must consider every representation that raises material planning considerations.