← Cheshire West and Chester Council
26/00557/PDQ
Cheshire West and Chester Council
Status
Awaiting decision
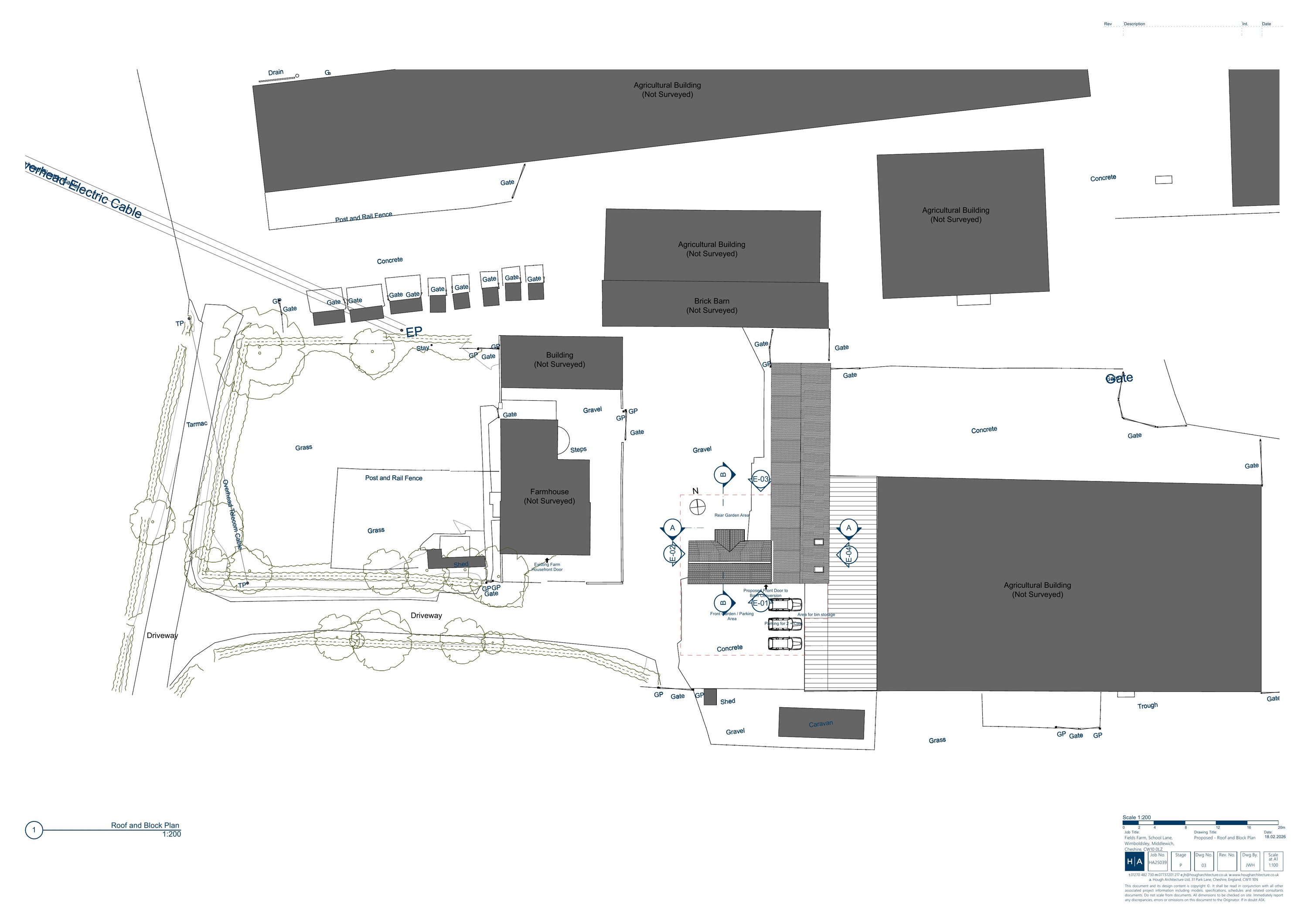
Change of use
Received
Last month
New homes
1
Full proposal
Conversion of part of existing brick barn into 1 dwelling with alteration to existing opening, new window opening and new rear porch
Documents
Have your say
Your comment matters. Councils must consider every representation that raises material planning considerations.