← Cheshire West and Chester Council
26/00567/FUL
Cheshire West and Chester Council
Status
Awaiting decision
House extension
Received
Last month
New homes
0
Full proposal
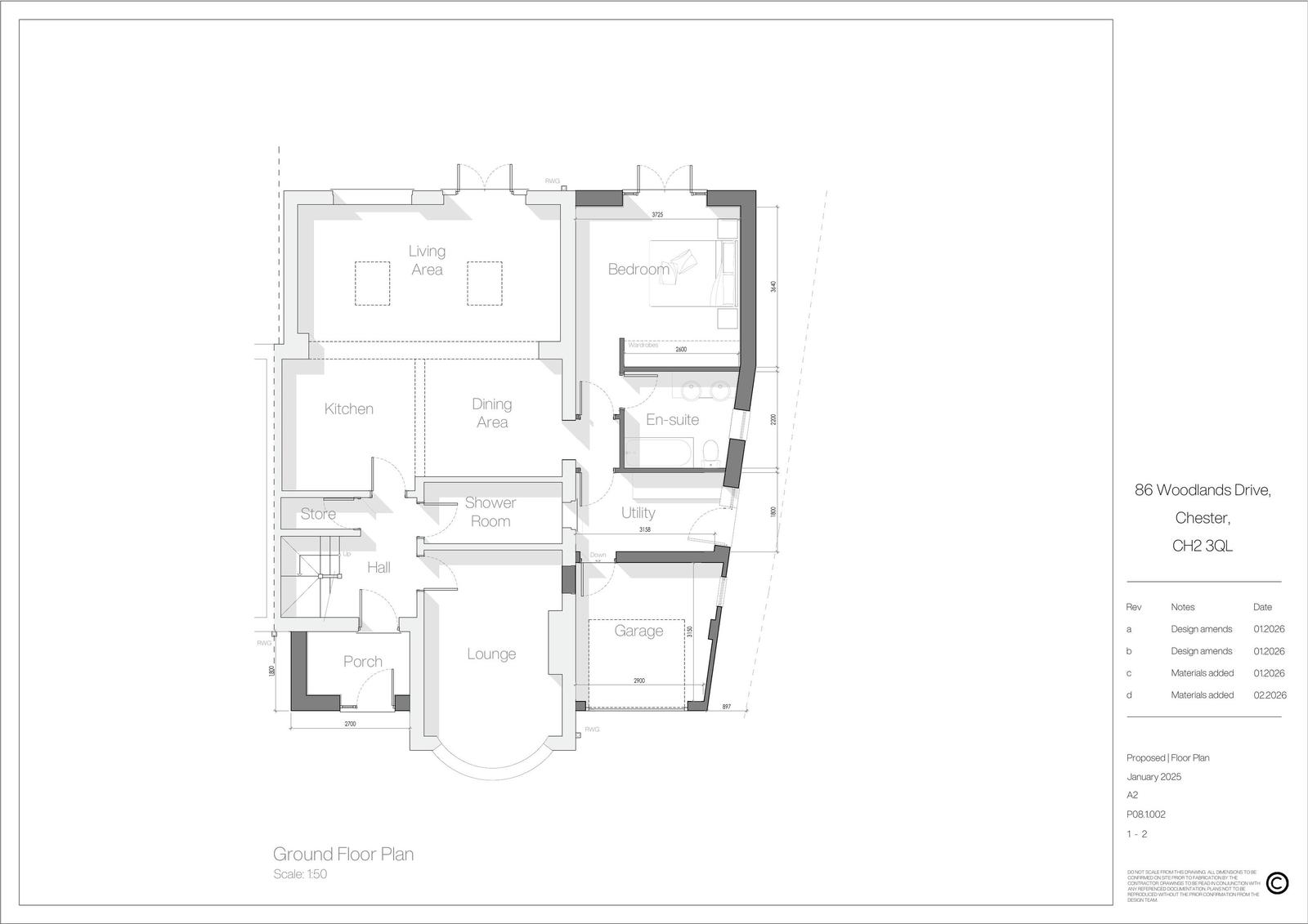
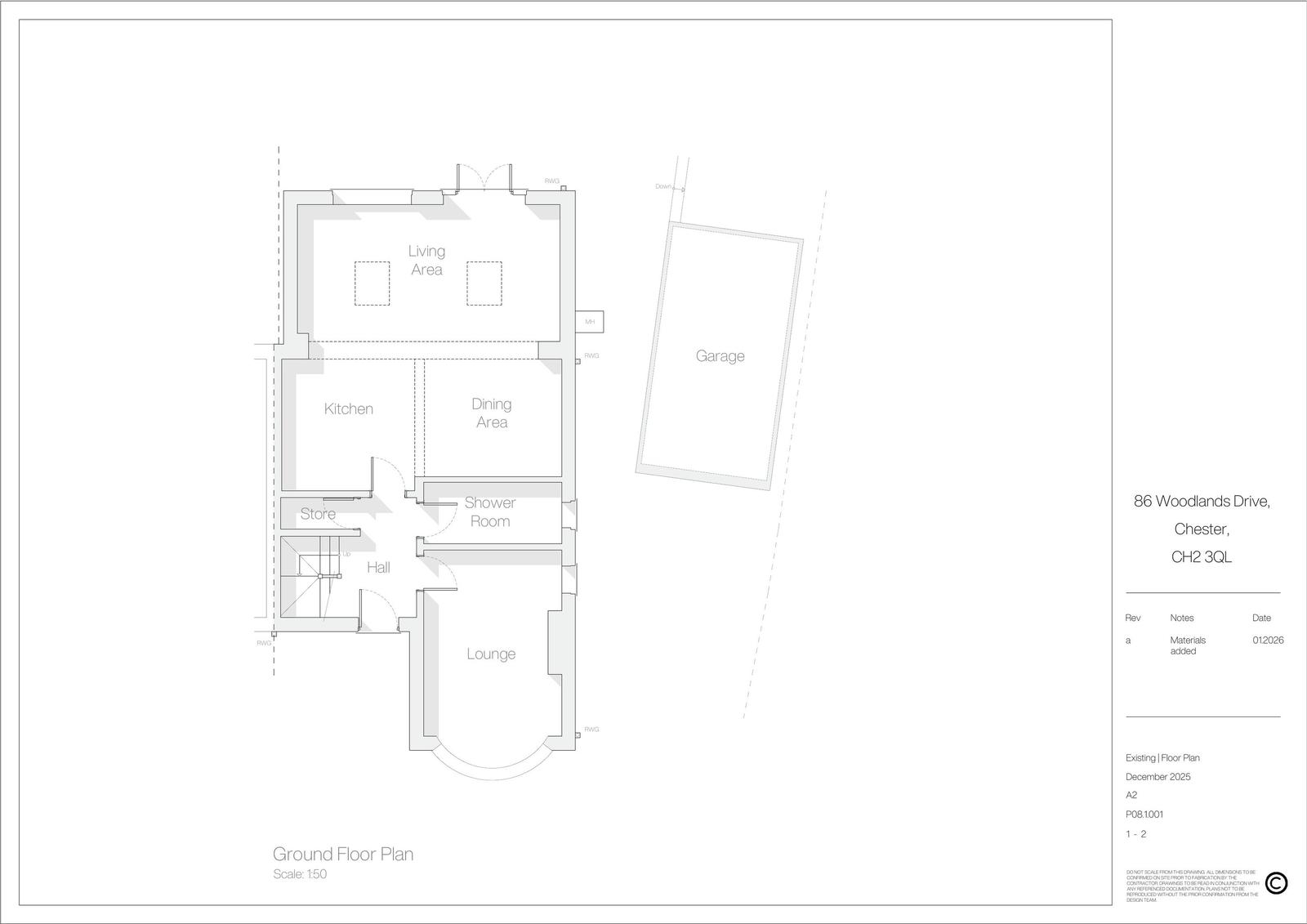
Demolition of existing garage and construction of a single-storey side extension incorporating a new garage and erection of new front porch.
Documents
Have your say
Your comment matters. Councils must consider every representation that raises material planning considerations.