← Cheshire West and Chester Council
26/00575/LDC
Cheshire West and Chester Council
Status
Awaiting decision
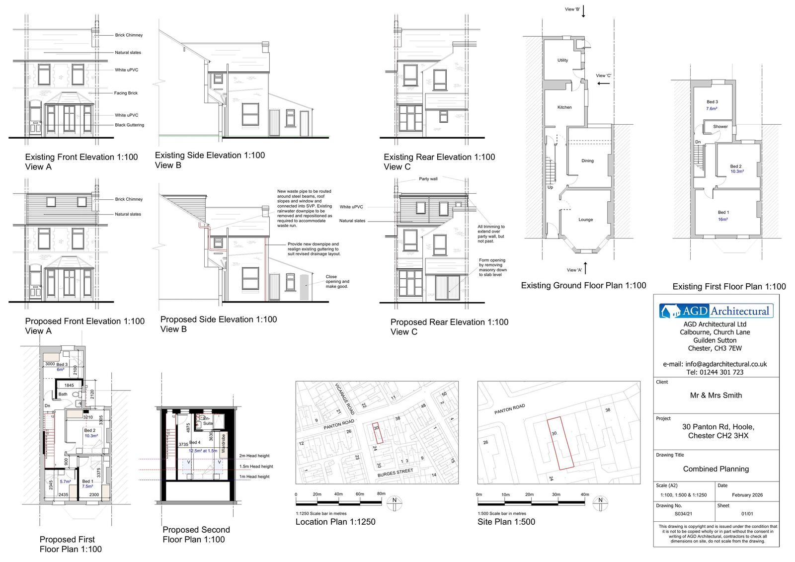
House extension
Received
Last month
New homes
0
Full proposal
Proposed loft conversion incorporating a rear dormer and front rooflights, along with the creation of a new door opening at the rear ground floor level.
Documents
Have your say
Your comment matters. Councils must consider every representation that raises material planning considerations.