← Cheshire West and Chester Council
26/00582/FUL
Cheshire West and Chester Council
Status
Awaiting decision
House extension
Received
Last month
New homes
0
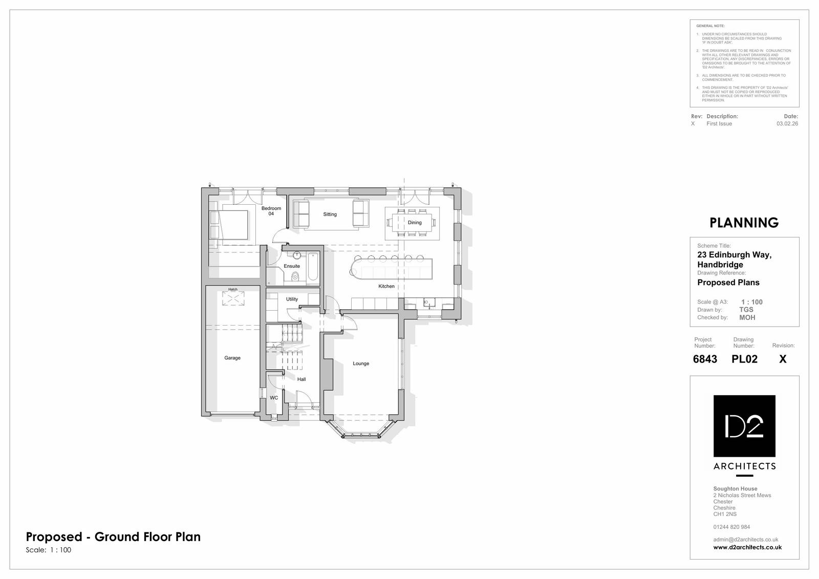
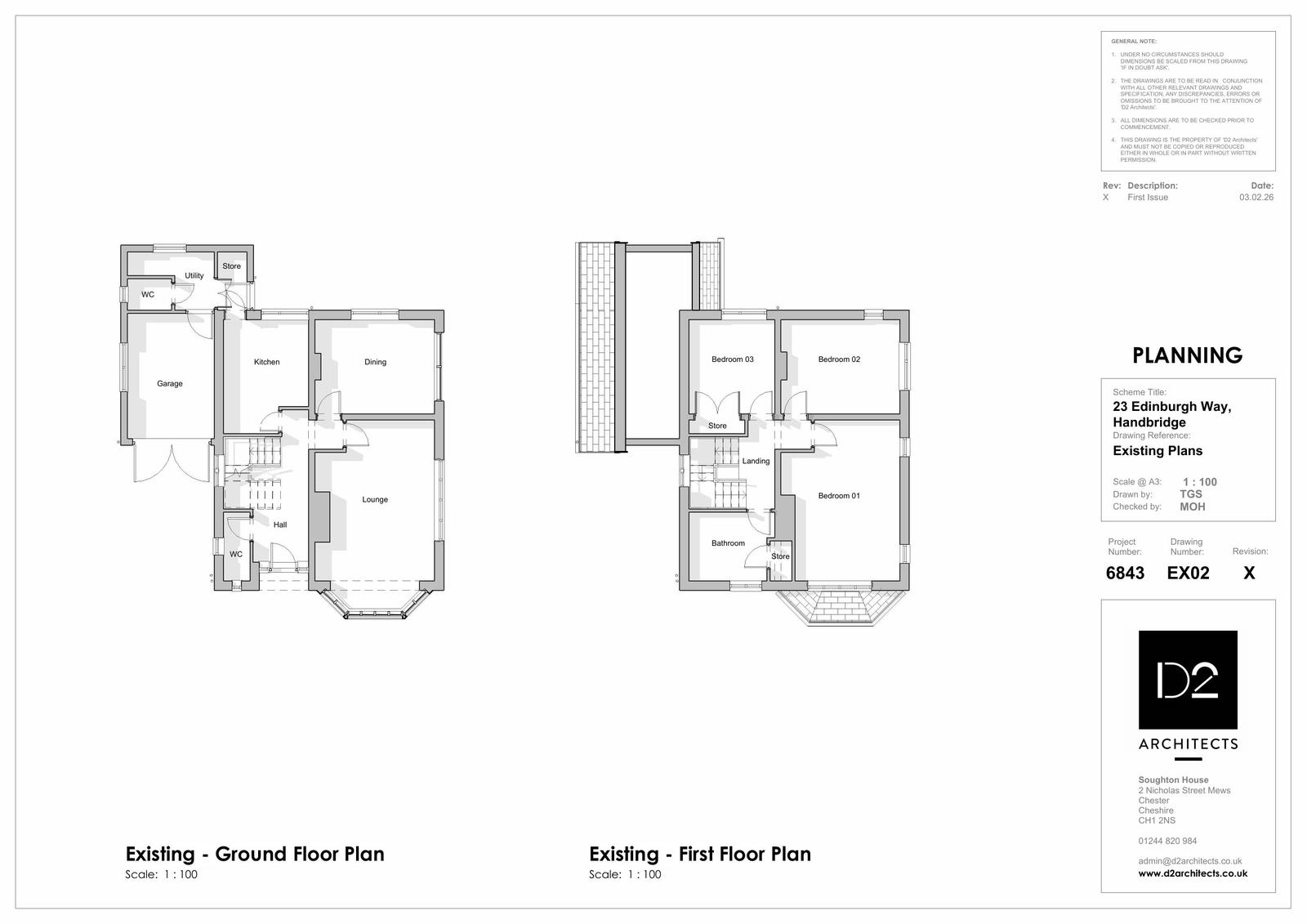
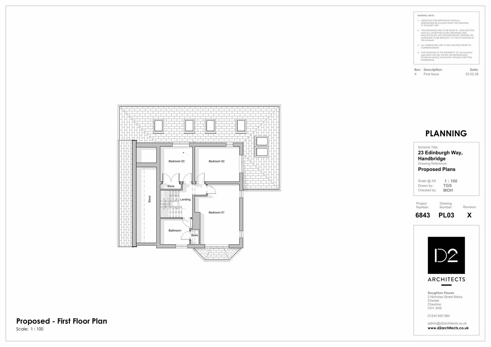
Full proposal
Demolition of rear structure and construction of single-storey rear and side extension, front/side extension to increase garage footprint. Elevation alterations, solar panels and full re-roof.
Documents
Have your say
Your comment matters. Councils must consider every representation that raises material planning considerations.