← Cheshire West and Chester Council

Status

Awaiting decision House extension
Received
Last month
New homes
0

Full proposal

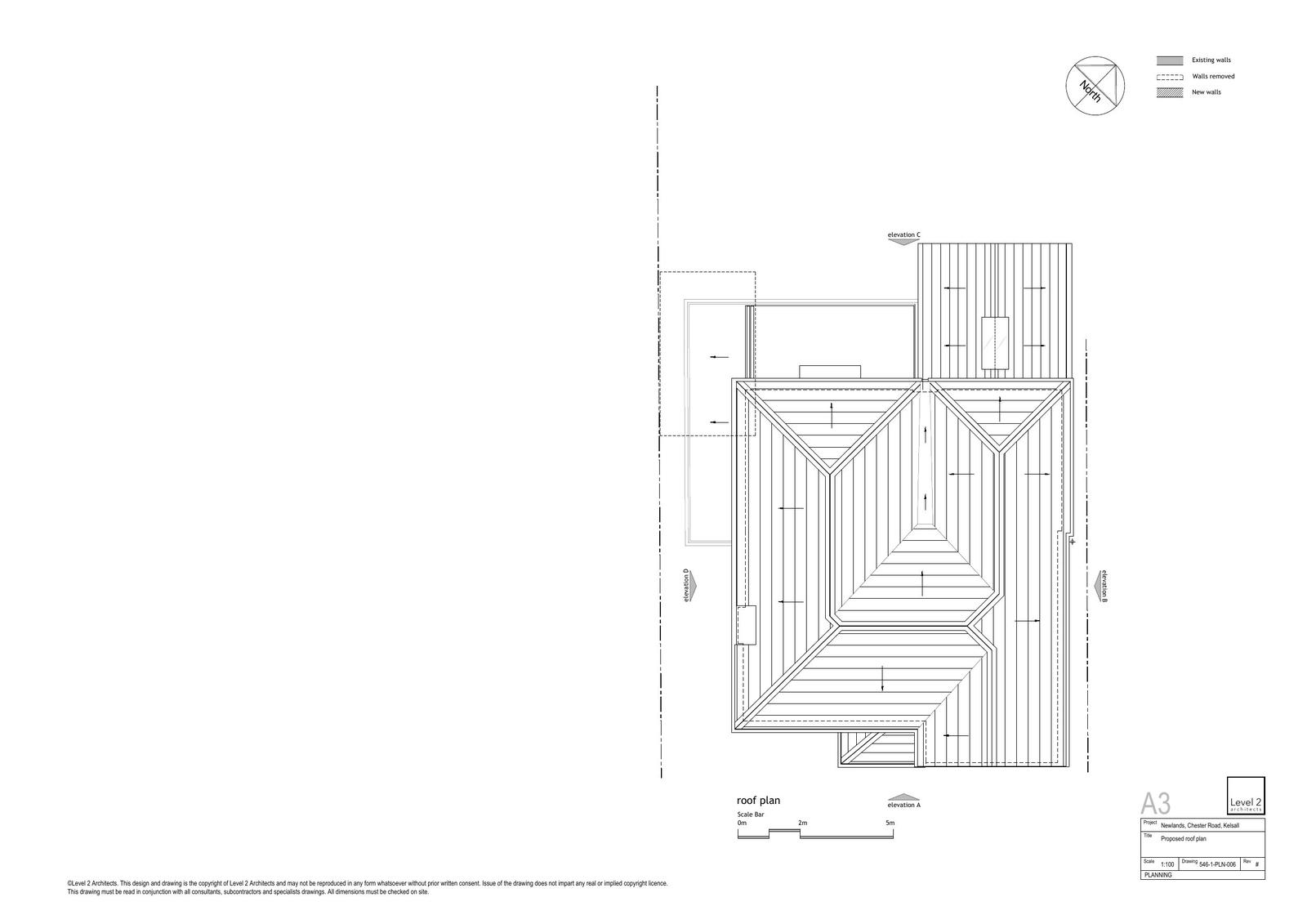
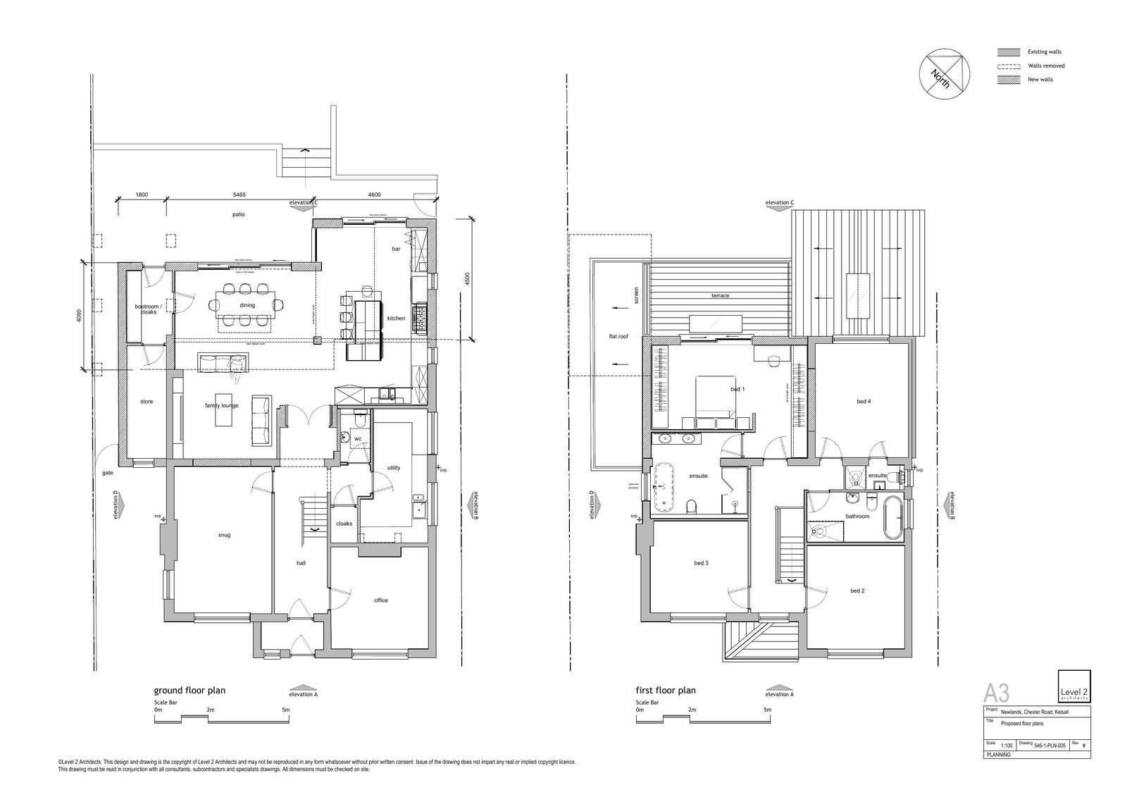
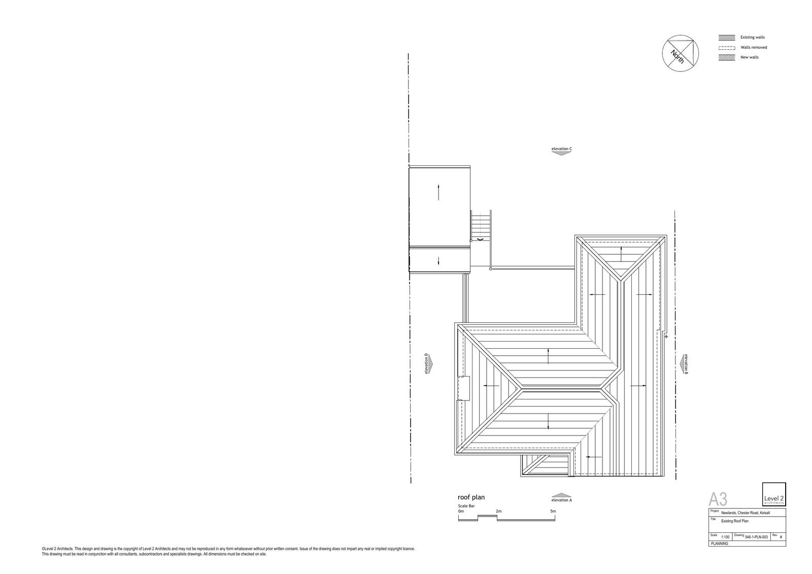
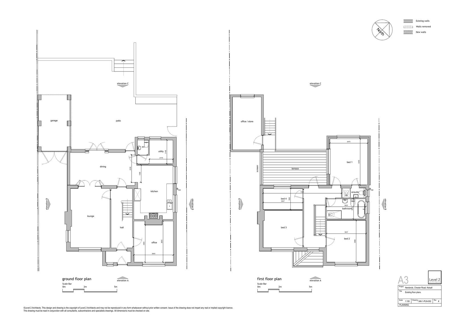
Demolition of existing two storey office/ garage, erection of a single storey side and rear extension and rear first floor extension with balcony.

Documents

Application Form
Archived · Original link
Drawing
Archived · Original link
Drawing
Archived · Original link
Drawing
Archived · Original link
Drawing
Archived · Original link
Drawing
Archived · Original link
Drawing
Archived · Original link
Drawing
Archived · Original link
Drawing
Archived · Original link
Drawing
Archived · Original link

Have your say

Your comment matters. Councils must consider every representation that raises material planning considerations.

Write a comment