← Cheshire West and Chester Council

Status

Awaiting decision House extension
Received
Last month
New homes
0

Full proposal

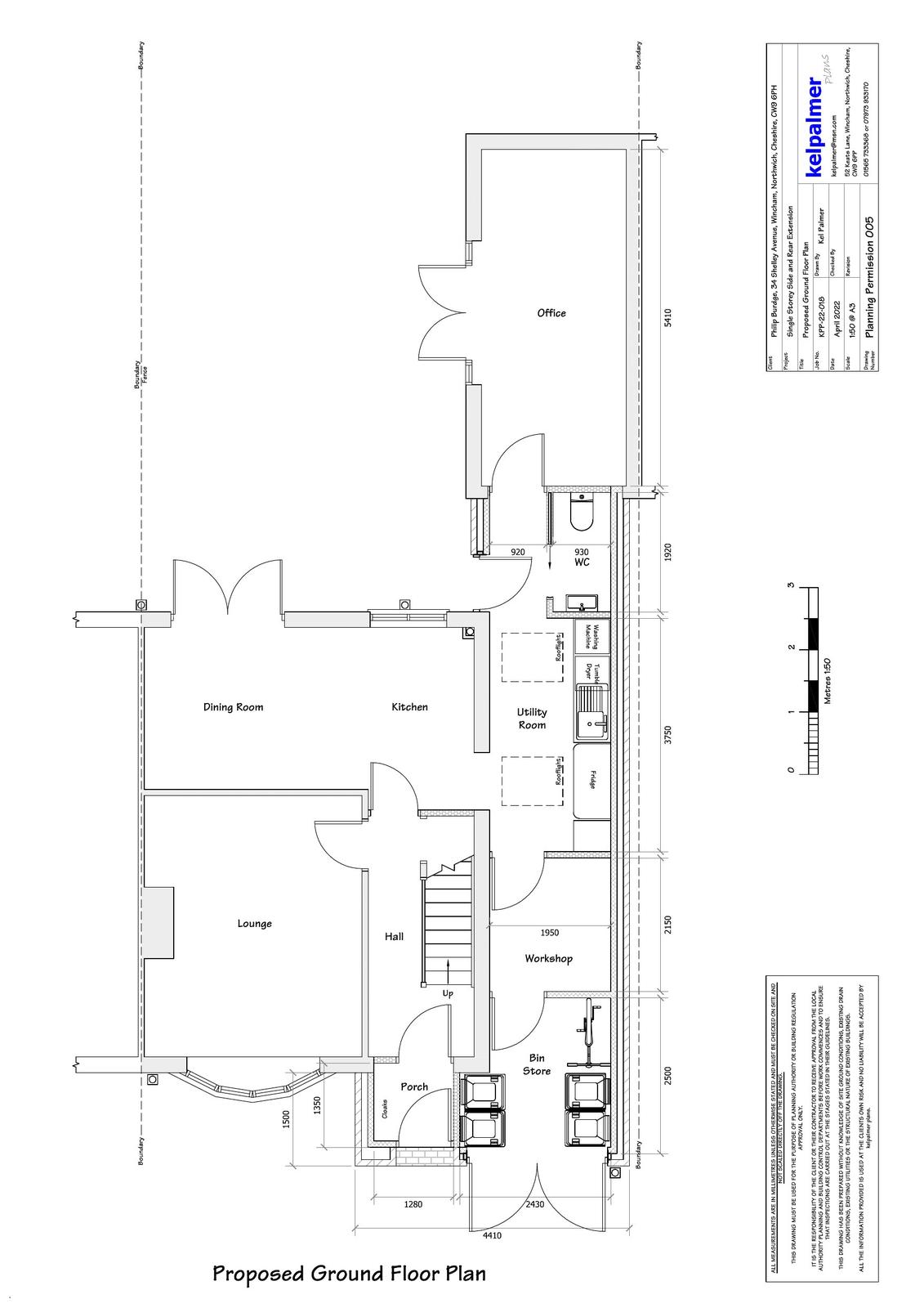
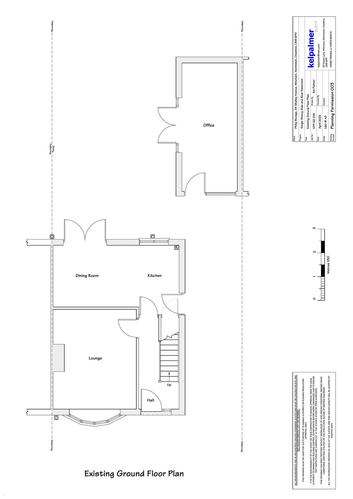
Erection of a single storey front and side extension

Documents

Application Form
Archived · Original link
Document
Archived · Original link
Drawing
Archived · Original link
Document
Archived · Original link
Drawing
Archived · Original link

Have your say

Your comment matters. Councils must consider every representation that raises material planning considerations.

Write a comment