← Chesterfield Borough Council
CHE/24/00728/FUL
Chesterfield Borough Council
Status
Awaiting decision
Commercial
Received
21 Nov 2024
New homes
0
Full proposal
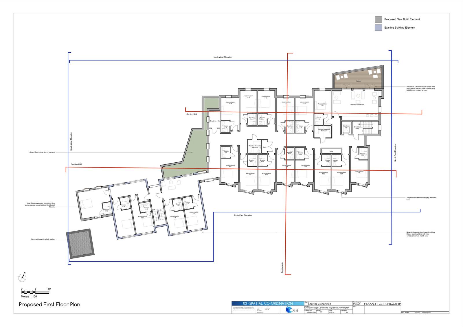
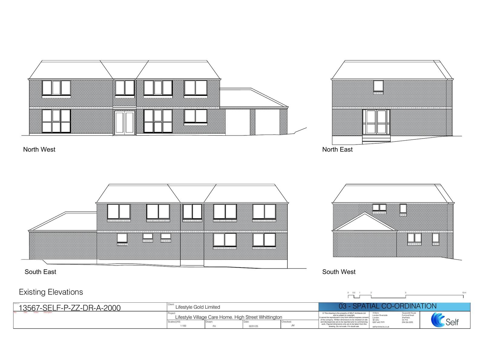
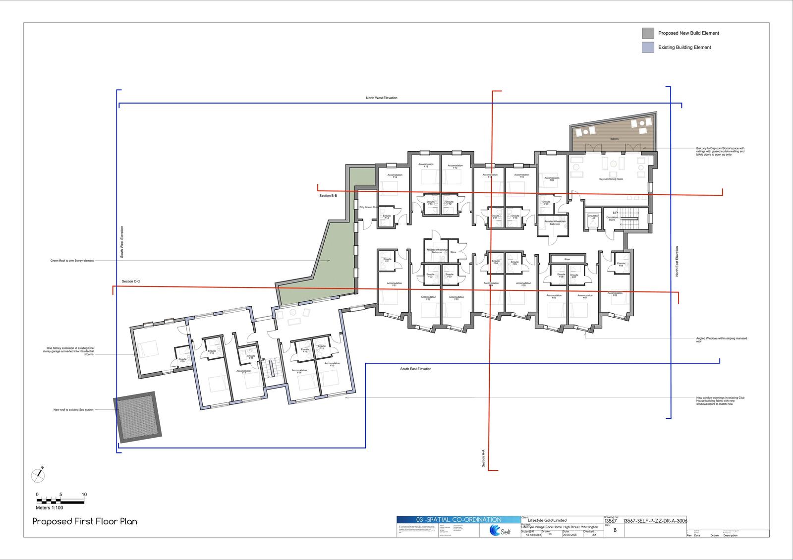
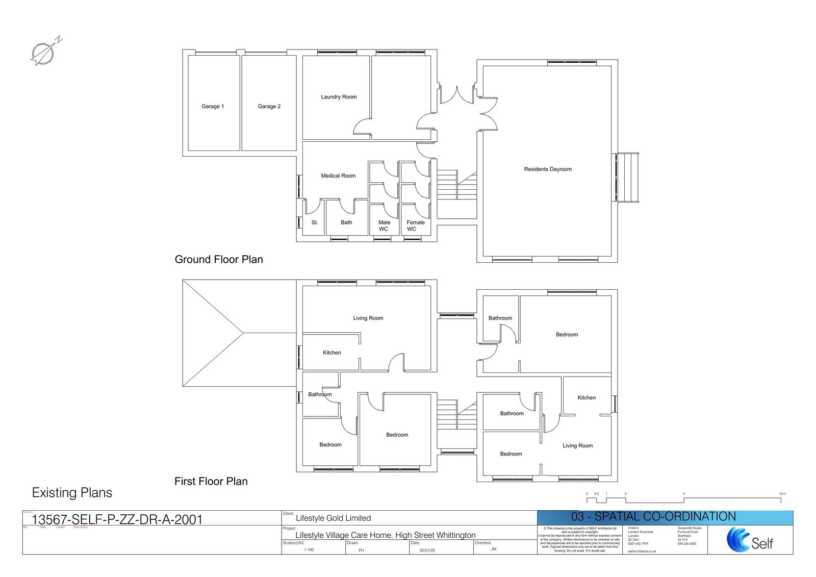
Conversion of existing clubhouse, demolition of existing supported living accommodation and construction of new building to create a new 40-bed care home, with associated parking and landscaping
Documents
Have your say
Your comment matters. Councils must consider every representation that raises material planning considerations.