← Chesterfield Borough Council

Status

Awaiting decision New housing
Received
14 Apr 2025
New homes
11

Full proposal

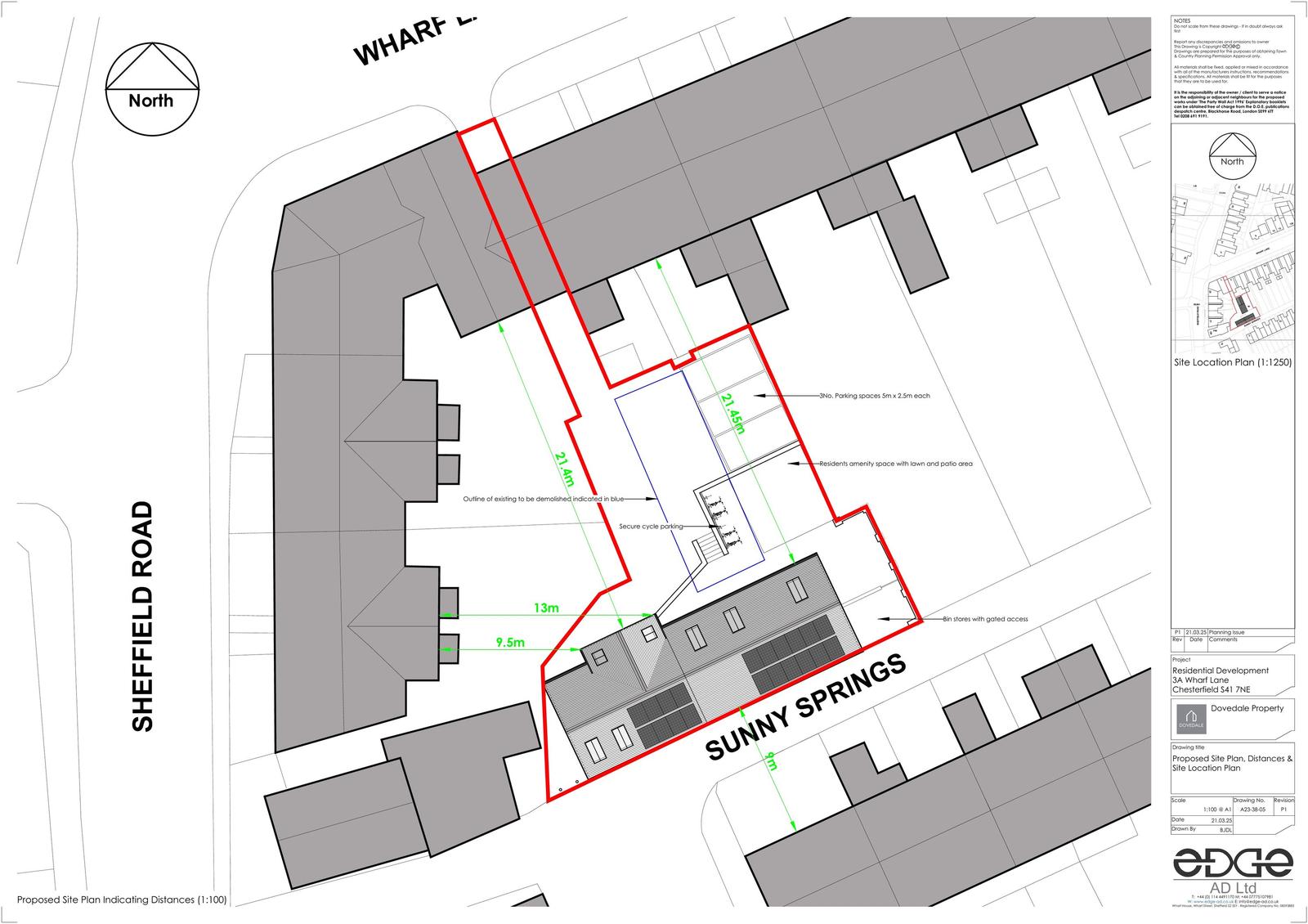
Demolition of existing buildings and erection of a three-storey building (top floor in roof-space) containing 11 bedrooms to be occupied as a house in multiple occupation, with associated parking and amenity space - revised scheme of CHE/24/00023/FUL

Documents

APPLICATIONFORMREDACTED
Application Form
Not yet archived · Original link
BIODIVERSITY ACCOUNTING ASSESSMENT REPORT
Background Documents
Not yet archived · Original link
BIODIVERSITY METRIC CONDITION ASSESSMENTS
Background Documents
Not yet archived · Original link
BROWNFIELD RUNOFF DISCHARGE RATE
Drawing
Not yet archived · Original link
CATCHMENT AREAS
Drawing
Not yet archived · Original link
COAL AUTHORITY COMMENT
Consultee Comment
Not yet archived · Original link
COAL MINING RISK ASSESSMENT
Background Documents
Not yet archived · Original link
DCC HIGHWAYS COMMENT
Consultee Comment
Not yet archived · Original link
DERBYSHIRE WILDLIFE TRUST COMMENTS
Consultee Comment
Not yet archived · Original link
DERBYSHIRE WILDLIFE TRUST COMMENTS
Consultee Comment
Not yet archived · Original link
DESIGN AND ACCESS STATEMENT
Background Documents
Not yet archived · Original link
DESIGN SERVICES DRAINAGE
Consultee Comment
Not yet archived · Original link
DESIGN SERVICES DRAINAGE
Consultee Comment
Not yet archived · Original link
DESIGN SERVICES FLOOD RISK & SURFACE WATER MANAGEMENT GUIDANCE
Consultee Comment
Not yet archived · Original link
DRAINAGE STRATEGY
Drawing
Not yet archived · Original link
DRAINAGE STRATEGY REPORT
Background Documents
Not yet archived · Original link
LOCATION PLAN
Drawing
Not yet archived · Original link
PLANNING STATEMENT
Background Documents
Not yet archived · Original link
PRELIMINARY BAT ROOST ASSESSMENT
Background Documents
Not yet archived · Original link
PROPOSED SITE SECTIONS
Drawing
Not yet archived · Original link
PROPOSED VISUALS
Drawing
Not yet archived · Original link
PUBLIC COMMENT
Public Comment
Not yet archived · Original link
RESIDENT COMMENT
Public Comment
Not yet archived · Original link
RESIDENT COMMENT
Public Comment
Not yet archived · Original link
STATUTORY METRIC
Background Documents
Not yet archived · Original link
STATUTORY METRIC TOOL
Background Documents
Not yet archived · Original link
STRATEGIC PLANNING COMMENTS
Consultee Comment
Not yet archived · Original link
STRUCTURAL INSPECTION REPORT
Background Documents
Not yet archived · Original link
UPDATED BAT SURVEY
Background Documents
Not yet archived · Original link
YORKSHIRE WATER COMMENT
Consultee Comment
Not yet archived · Original link
YORKSHIRE WATER COMMENT
Consultee Comment
Not yet archived · Original link

Have your say

Your comment matters. Councils must consider every representation that raises material planning considerations.

Write a comment