← Chesterfield Borough Council
CHE/26/00098/FUL
Chesterfield Borough Council
Status
Awaiting decision
Change of use
Received
Last month
New homes
0
Full proposal
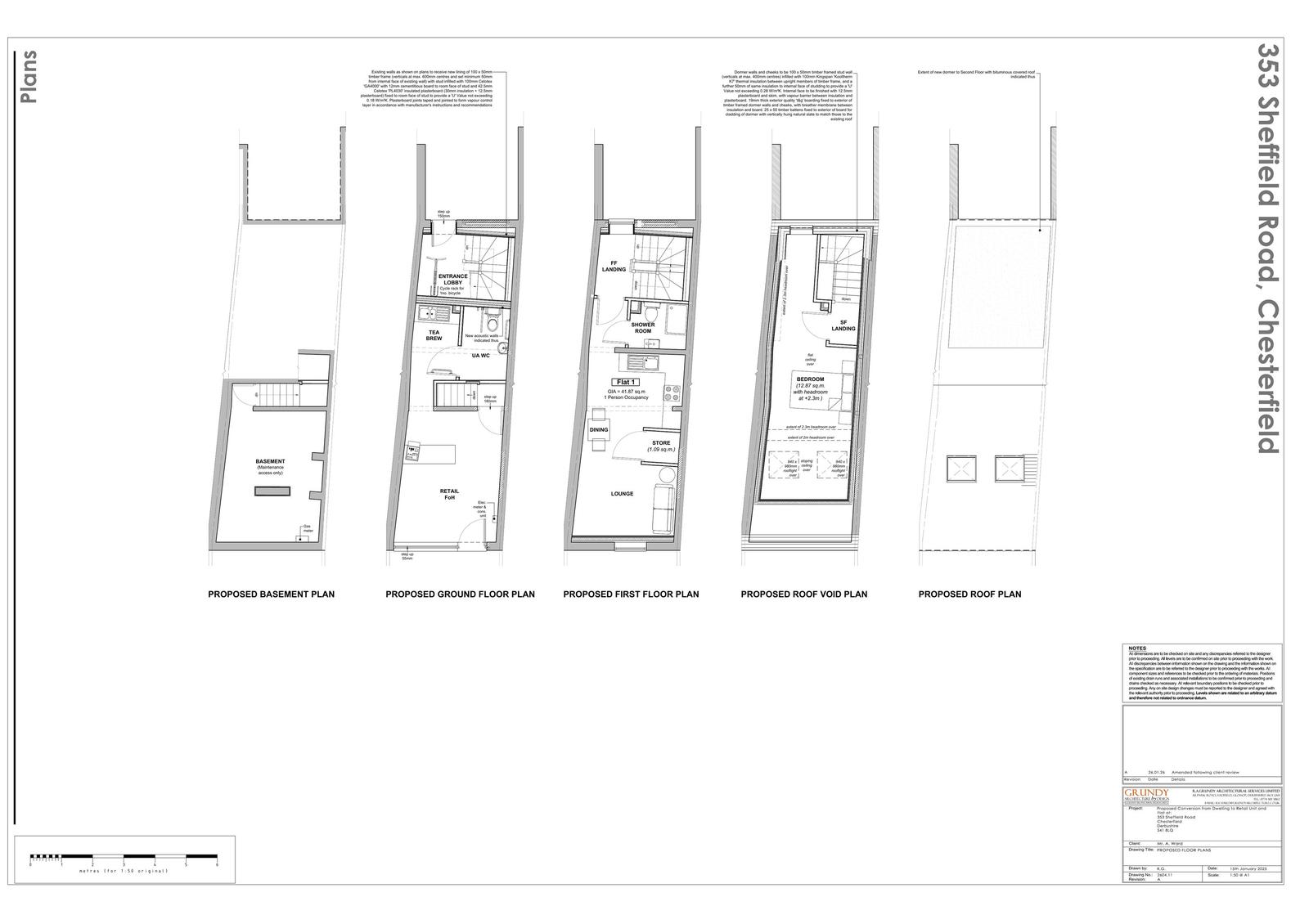
Change of use of dwelling to form a commercial unit (Use Class E) and a flat, with rear dormer and external alterations
Documents
Have your say
Your comment matters. Councils must consider every representation that raises material planning considerations.