← Chichester District Council

Status

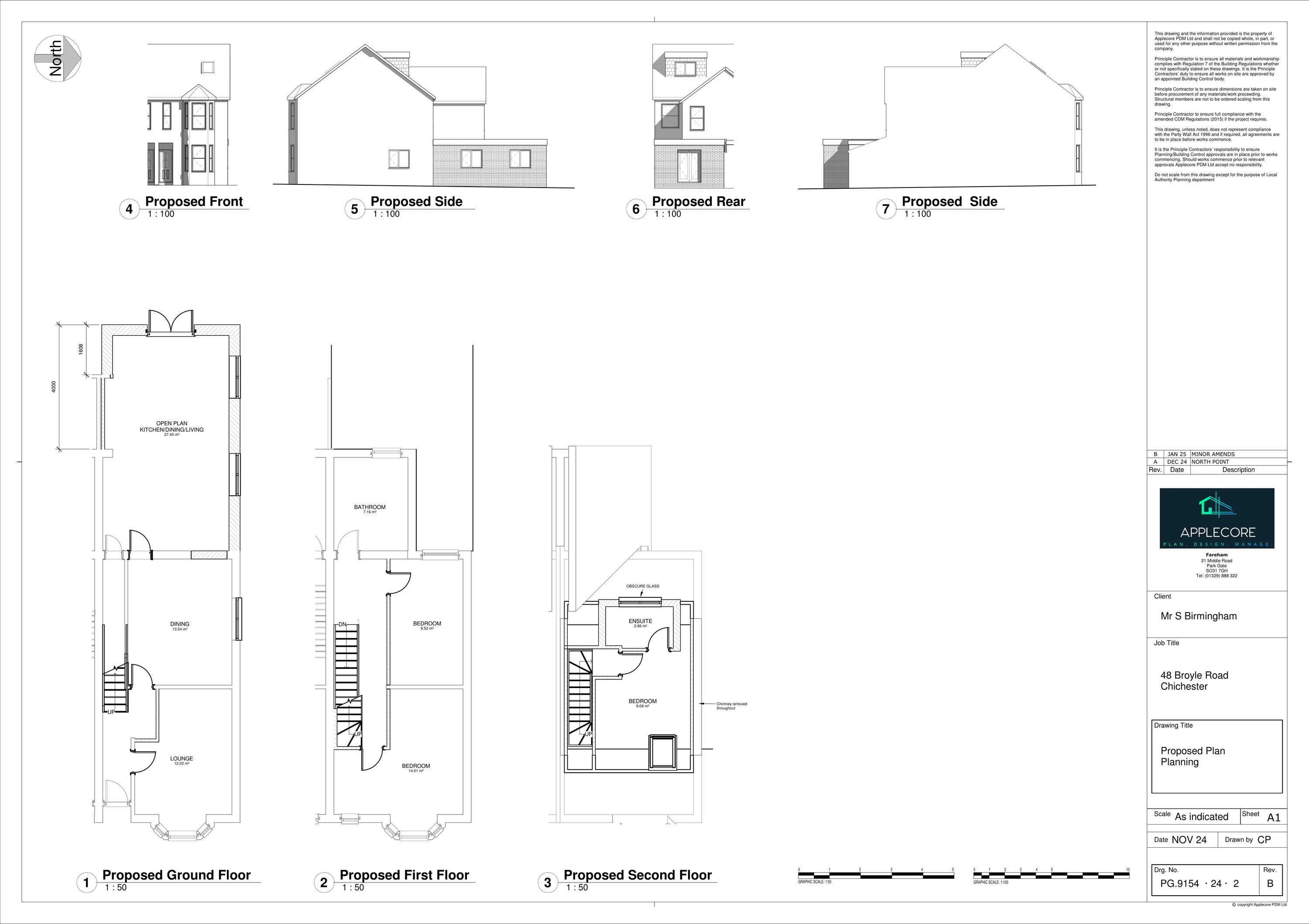
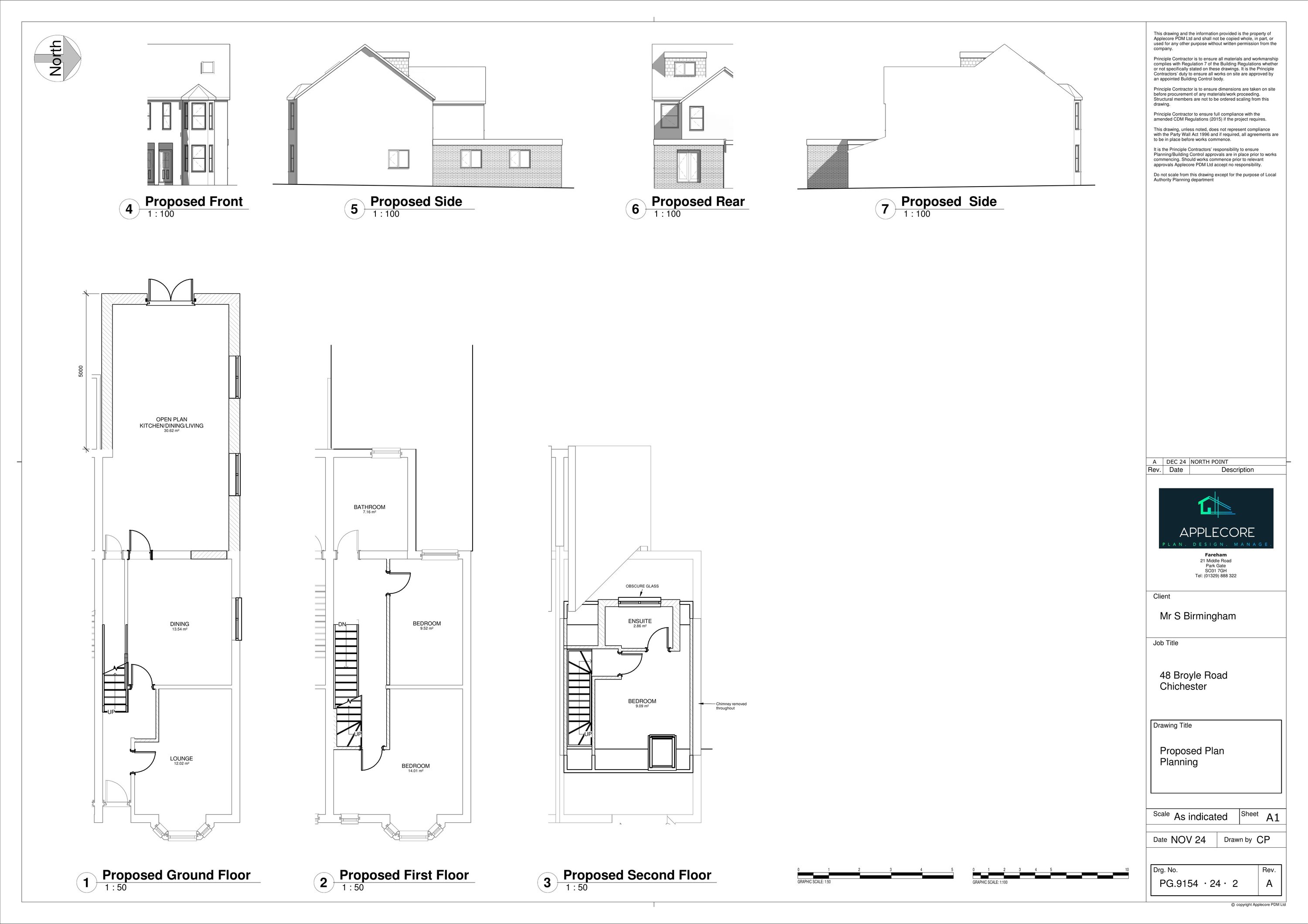
Permit House extension
Received
06 Dec 2024
New homes
0

Full proposal

Single storey rear extension, small dormer to rear roof slope and window to front roof slope.

Documents

Application Form
Archived · Original link
Consultee Comment
Archived · Original link
Consultee Comment
Archived · Original link
Consultee Comment
Archived · Original link
Correspondence
Correspondence
Not yet archived · Original link
Correspondence
Archived · Original link
Decision Notice
Decision Notice
Not yet archived · Original link
Delegated Report
Archived · Original link
Correspondence
Archived · Original link
Correspondence
Archived · Original link
Plan - Under Consideration
Archived · Original link
Application Documents
Archived · Original link
Application Documents
Archived · Original link
Plan - Superseded
Archived · Original link
Objection Comment
Archived · Original link
Plan - Decided
Archived · Original link
Plan - Decided
Archived · Original link

Have your say

Your comment matters. Councils must consider every representation that raises material planning considerations.

Write a comment