← Chichester District Council

Status

Permit House extension
Received
21 May 2025
New homes
0

Full proposal

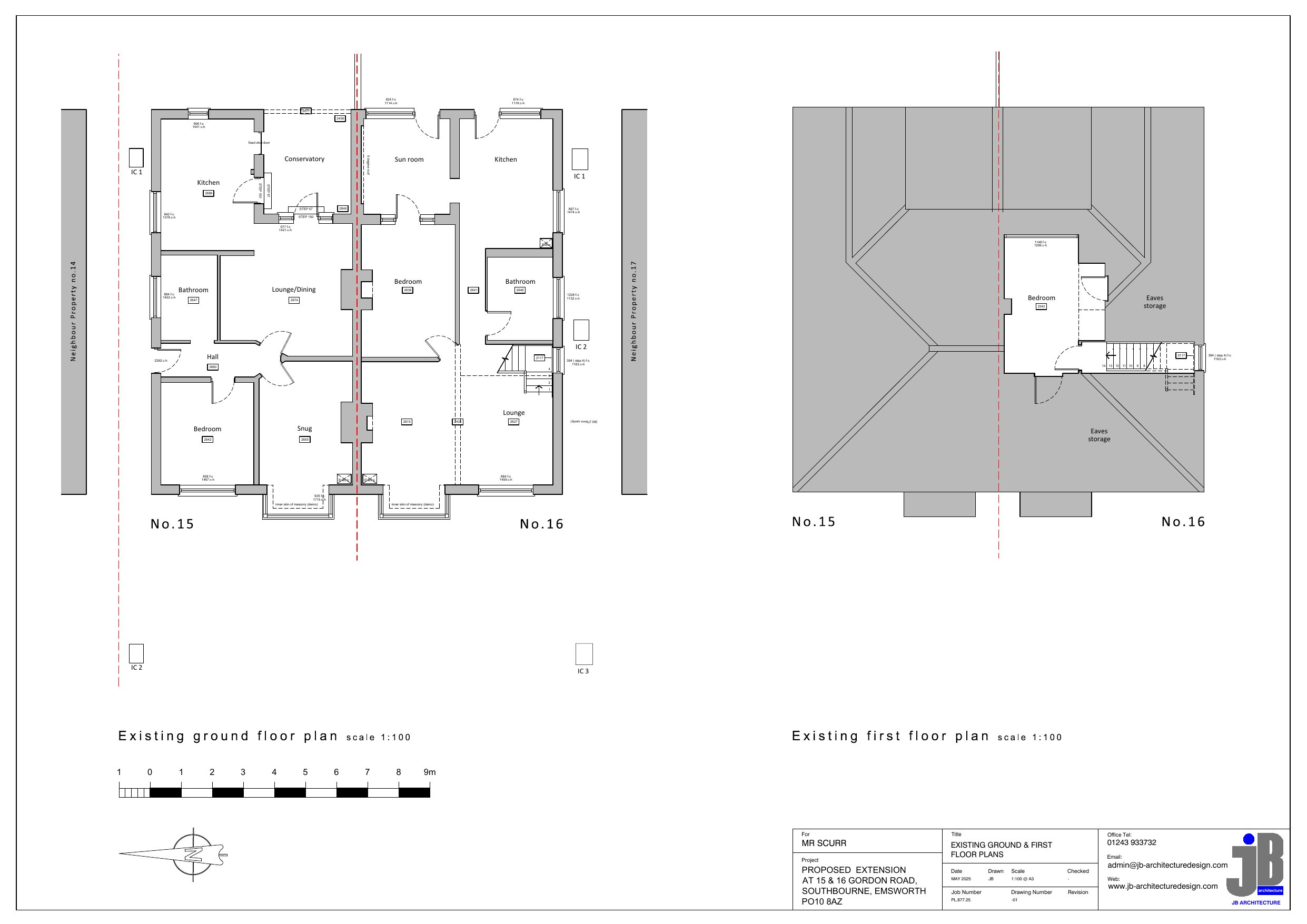
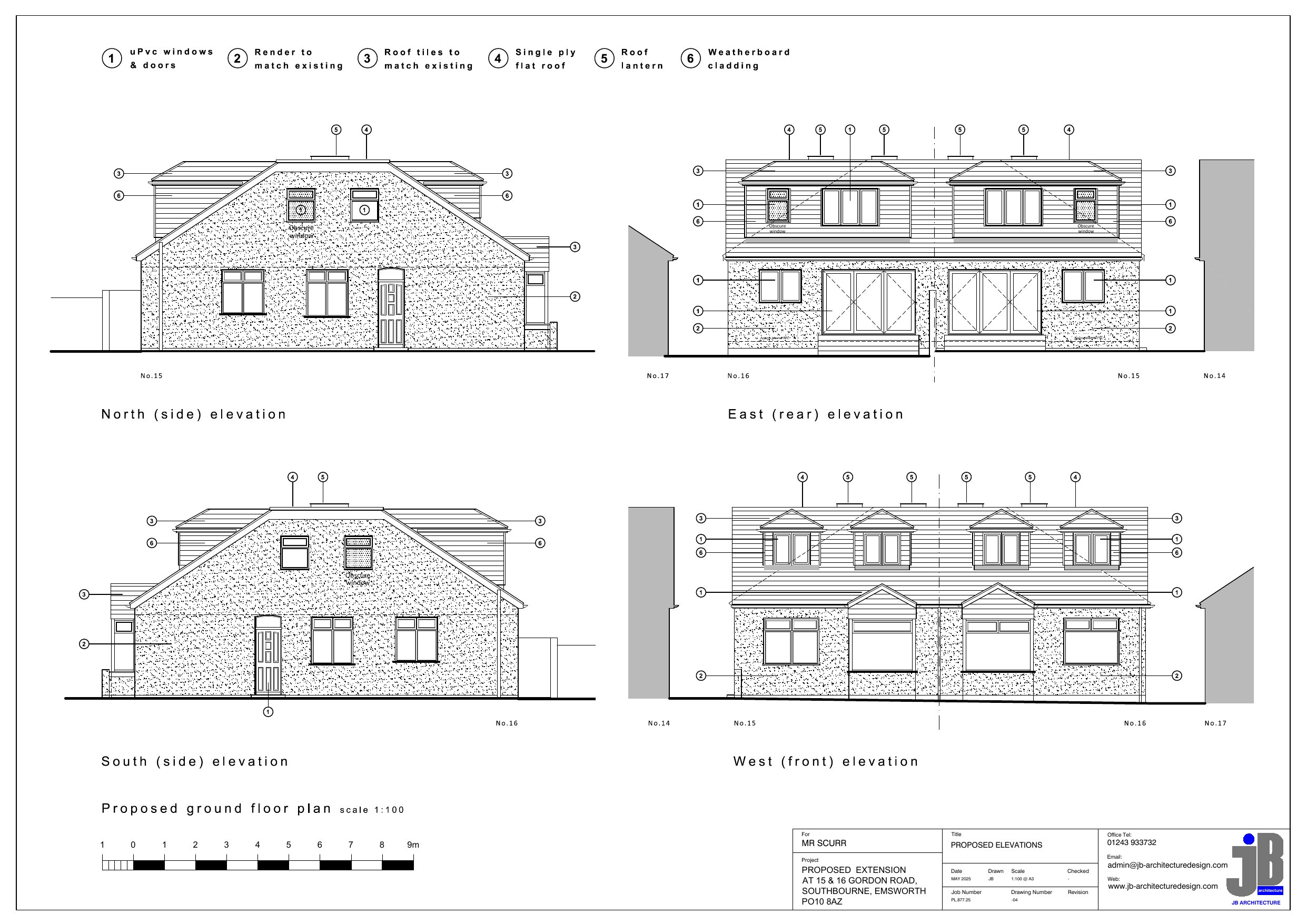
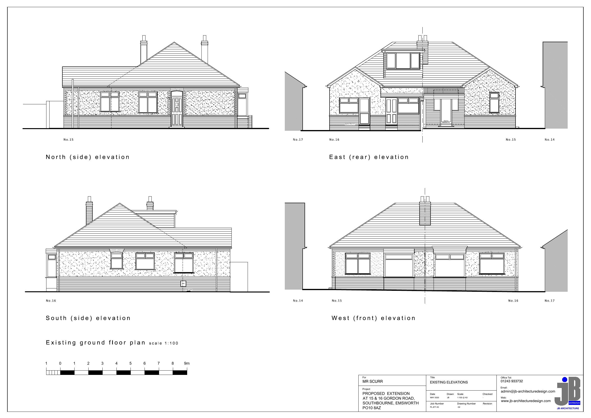
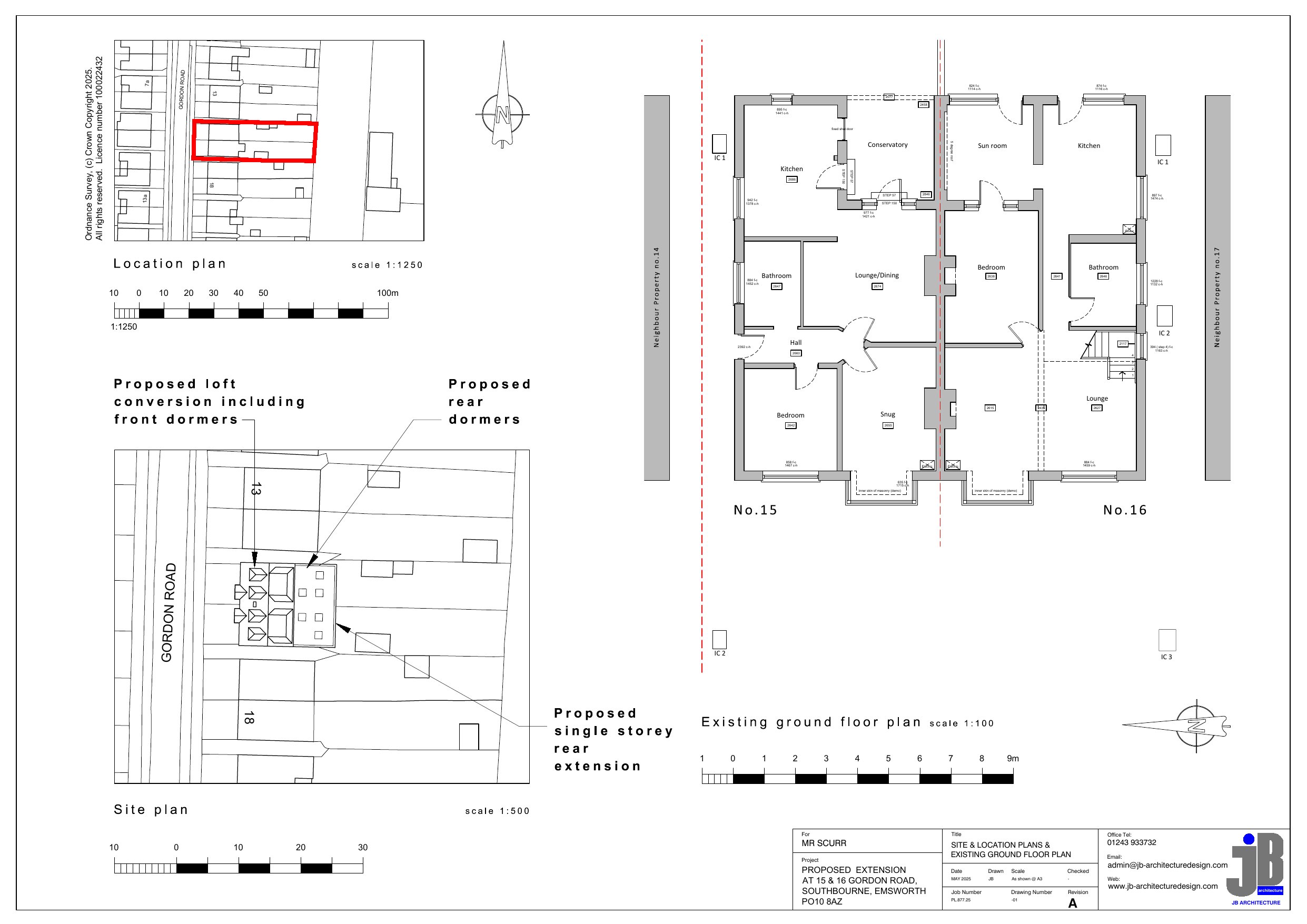
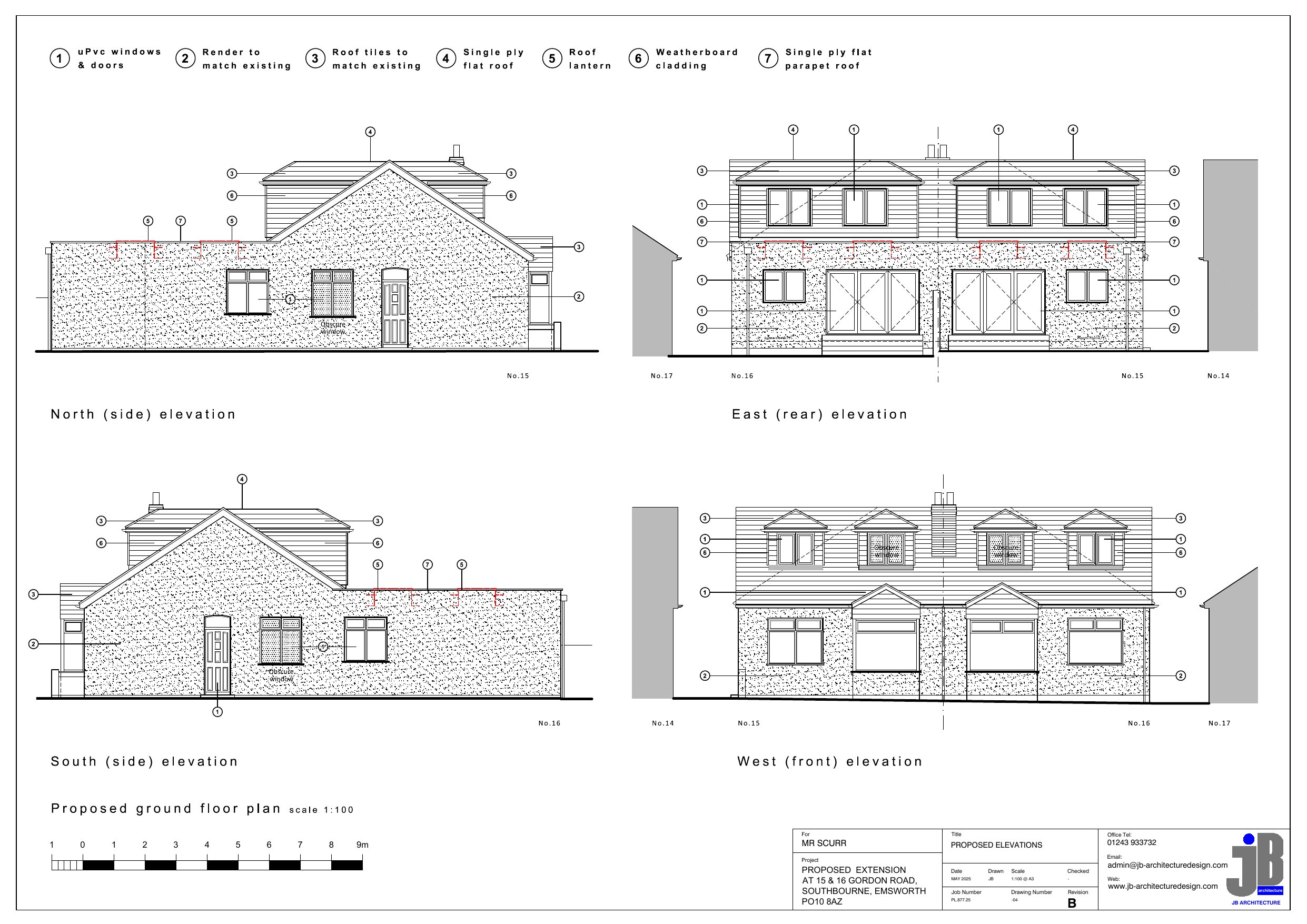
Roof extensions to include 4 no. front elevation dormers, 2 rear elevation dormers, raising of hip ends to gable. Gabled roofing over front bay windows. Fenestration alterations. Rear extension.

Documents

APPLICATION FORM
Application Form
Not yet archived · Original link
Consultee Comment
Archived · Original link
Consultee Comment
Archived · Original link
Correspondence
Archived · Original link
Decision Notice
Archived · Original link
Delegated Report
Archived · Original link
Application Documents
Archived · Original link
Plan - Under Consideration
Archived · Original link
Plan - Under Consideration
Archived · Original link
HRA
Application Documents
Archived · Original link
Application Documents
Archived · Original link
Application Documents
Archived · Original link
Plan - Superseded
Archived · Original link
Plan - Decided
Archived · Original link
Plan - Decided
Archived · Original link
Plan - Decided
Archived · Original link
Plan - Superseded
Archived · Original link
Parish Comments
Archived · Original link
Parish Comments
Archived · Original link

Have your say

Your comment matters. Councils must consider every representation that raises material planning considerations.

Write a comment