25/01256/DOM
Chichester District Council
Status
Permit
House extension
Received
22 May 2025
New homes
0
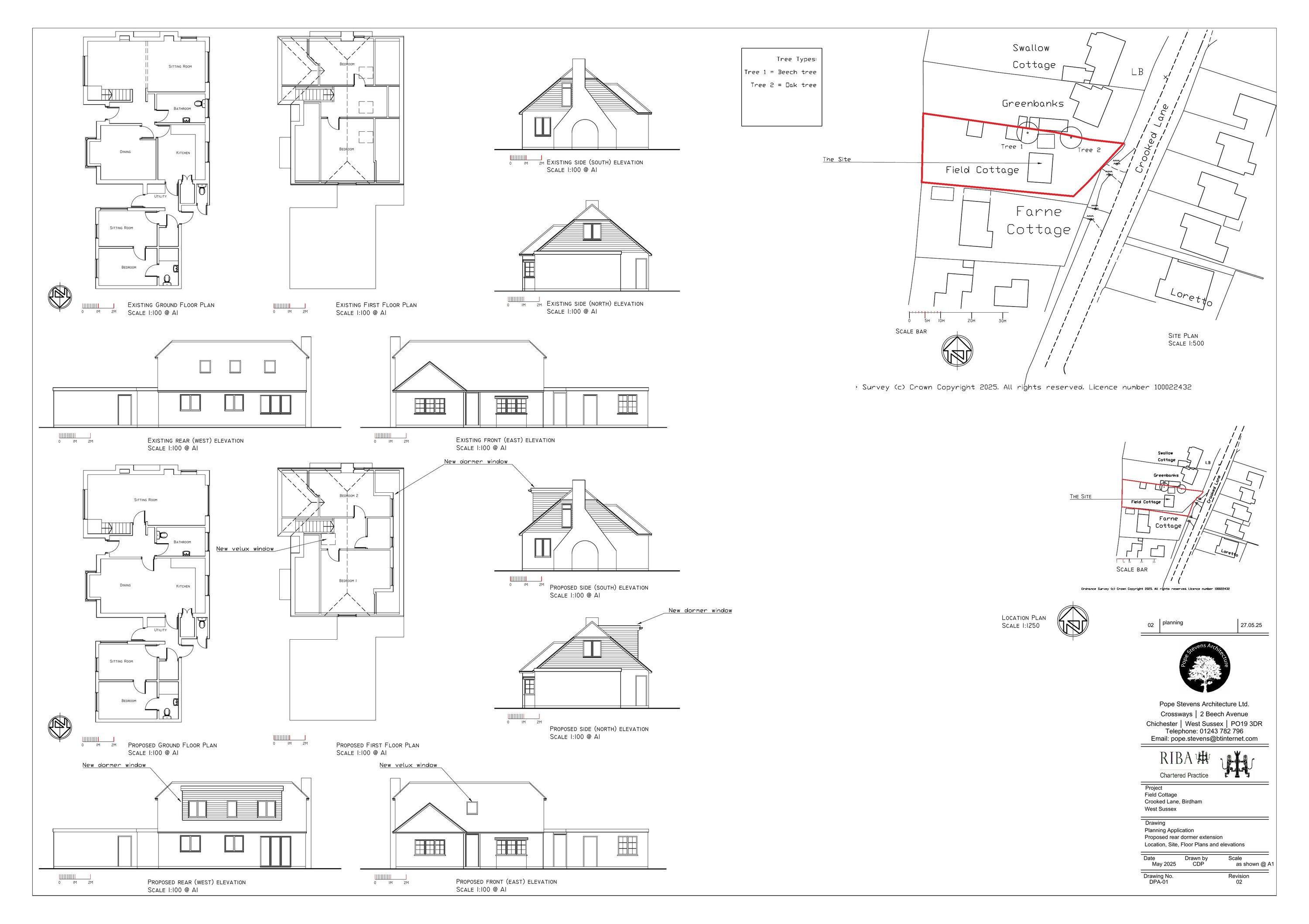
Full proposal
Dormer roof extension to the rear elevation and velux roof window to front elevation.
Documents
Have your say
Your comment matters. Councils must consider every representation that raises material planning considerations.