← Chichester District Council

Status

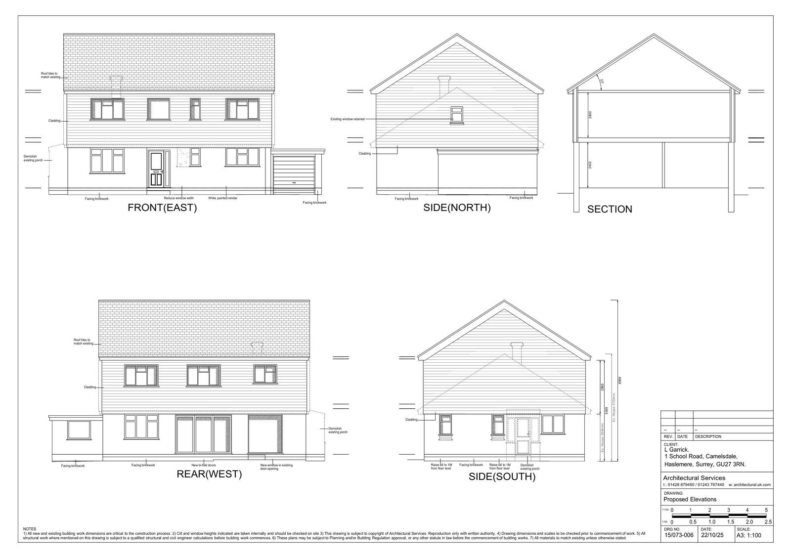
Unknown House extension
Received
20 Jan 2026
New homes
0

Full proposal

First floor extension to a bungalow.

Documents

Plan - Under Consideration
Archived · Original link

Have your say

Your comment matters. Councils must consider every representation that raises material planning considerations.

Write a comment