← Chichester District Council

Status

Pending Consideration House extension
Received
Last month
New homes
0

Full proposal

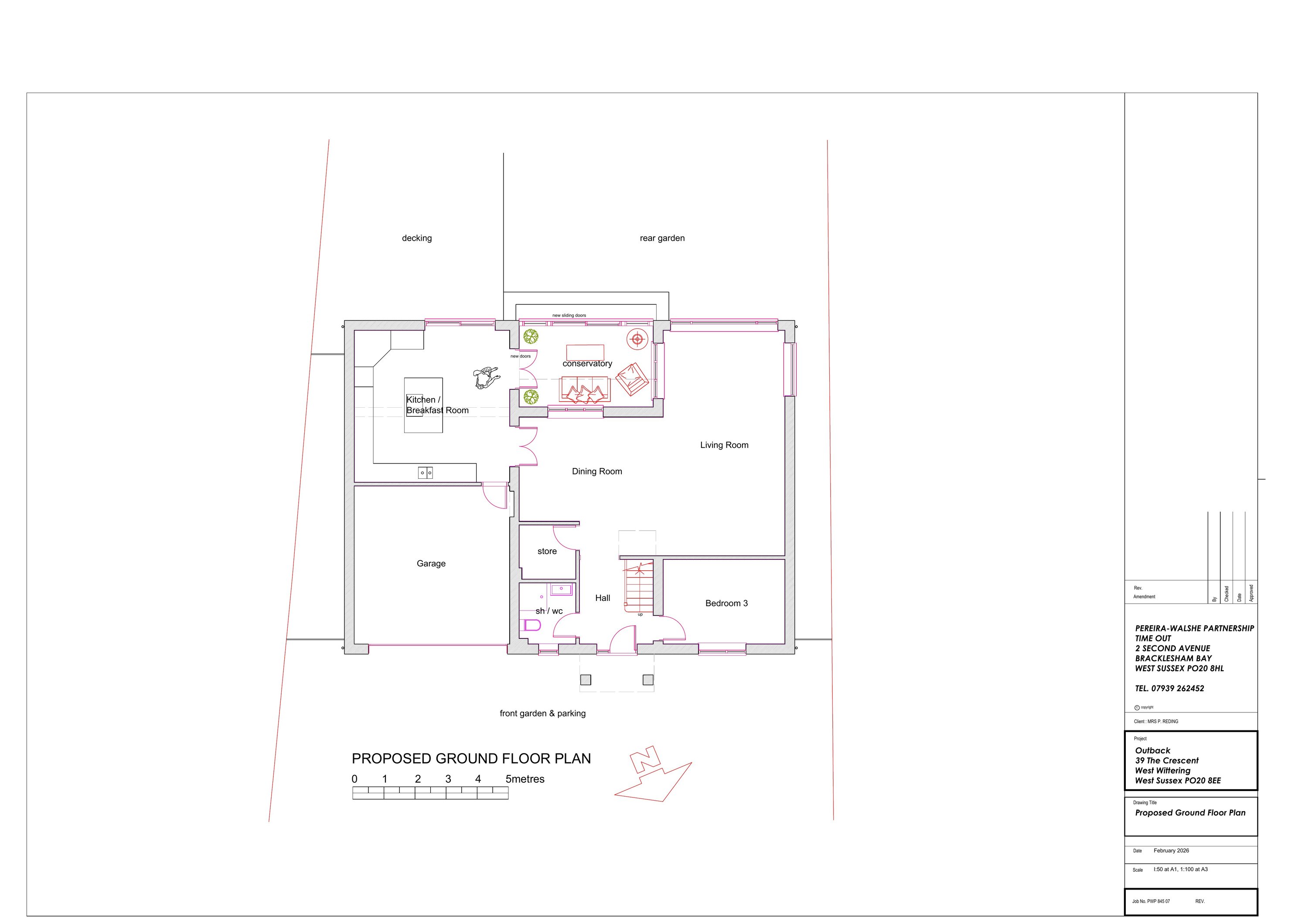
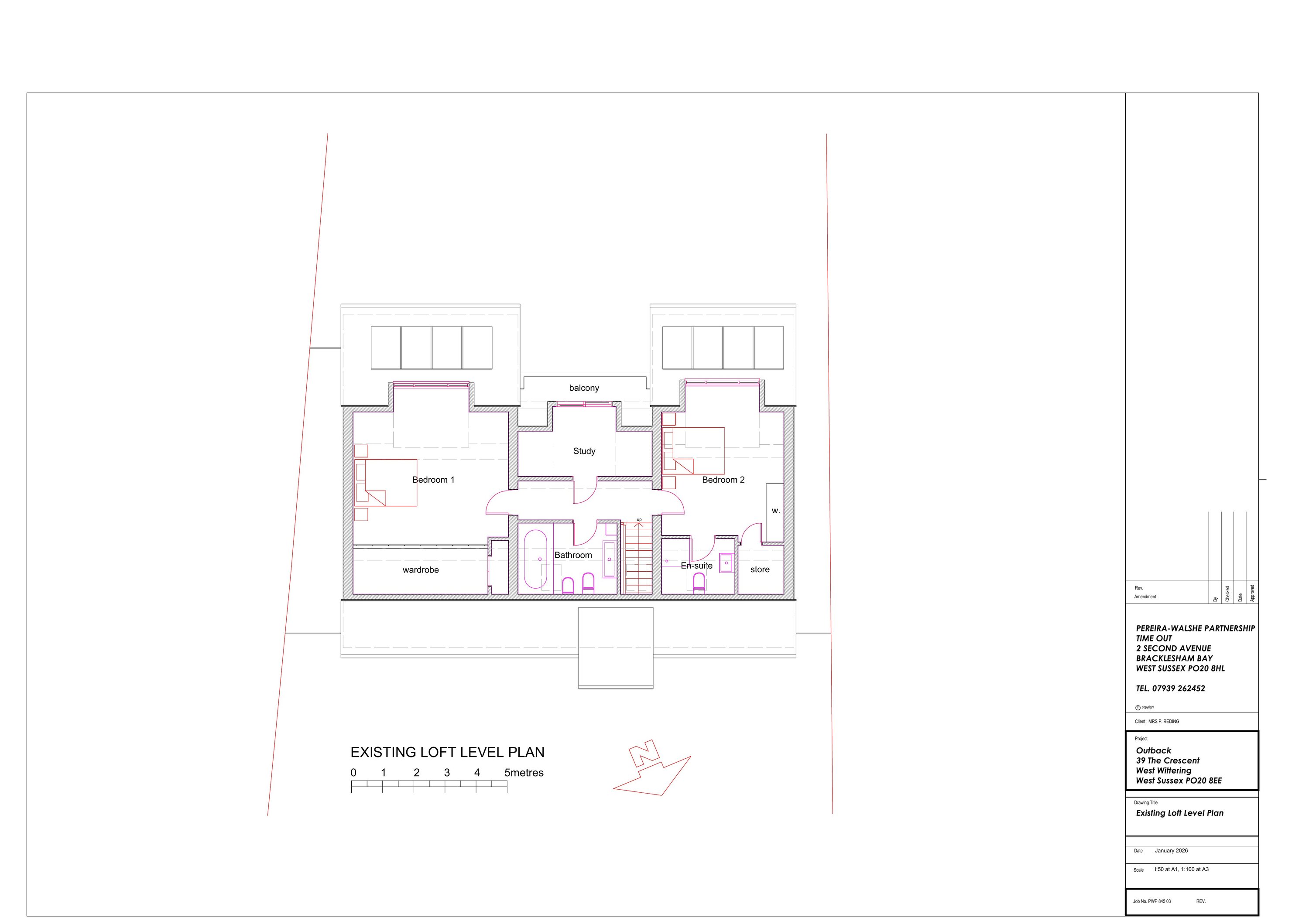
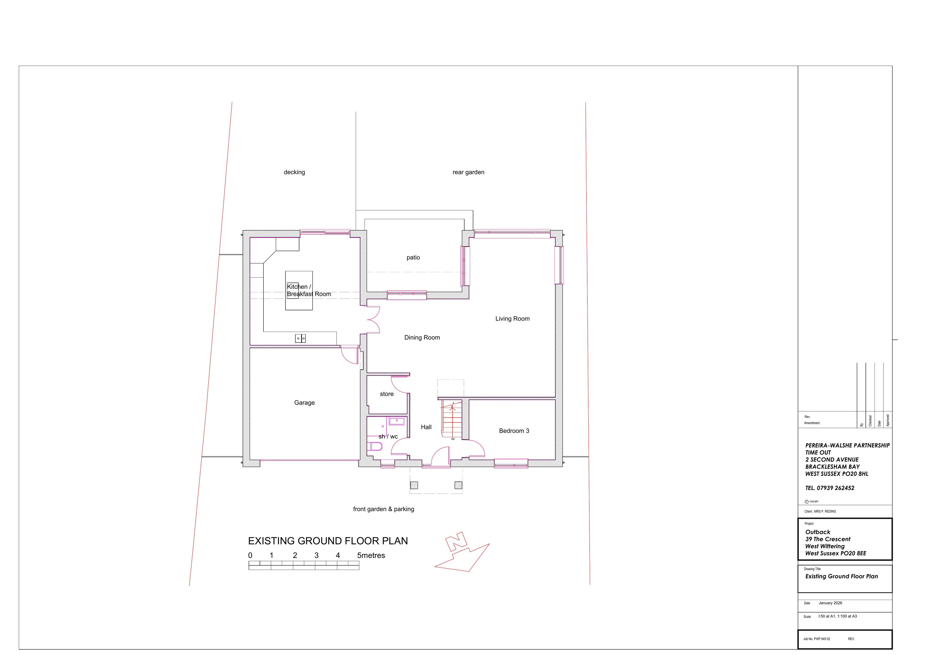
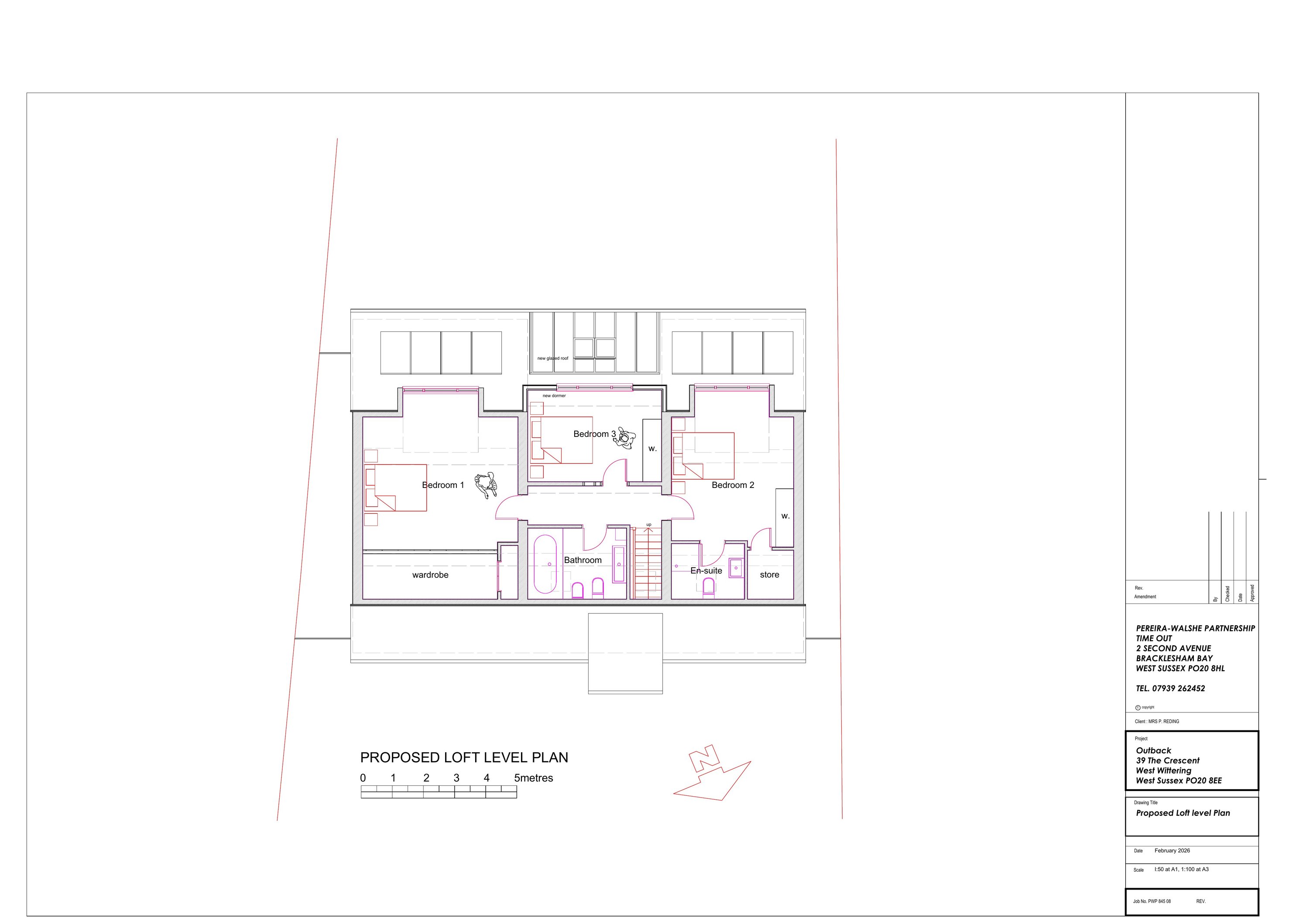
Proposed rear ground floor extension and loft level dormer extension.

Documents

Application Form
Archived · Original link
Correspondence
Archived · Original link
ENVIRONMENT AGENCY
Consultee Comment
Not yet archived · Original link
Plan - Under Consideration
Archived · Original link
Plan - Under Consideration
Archived · Original link
Plan - Under Consideration
Archived · Original link
Plan - Under Consideration
Archived · Original link
Application Documents
Archived · Original link
Application Documents
Archived · Original link
Plan - Under Consideration
Archived · Original link
PROPOSED FRONT AND REAR ELEVATION
Plan - Under Consideration
Not yet archived · Original link
Plan - Under Consideration
Archived · Original link
Plan - Under Consideration
Archived · Original link
Plan - Under Consideration
Archived · Original link
Plan - Under Consideration
Archived · Original link
Plan - Under Consideration
Archived · Original link
Plan - Under Consideration
Archived · Original link

Have your say

Your comment matters. Councils must consider every representation that raises material planning considerations.

Write a comment