← Chichester District Council

Status

Pending Consideration Change of use
Received
Last month
New homes
3

Full proposal

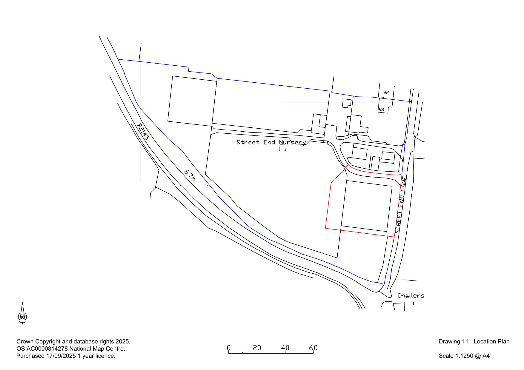
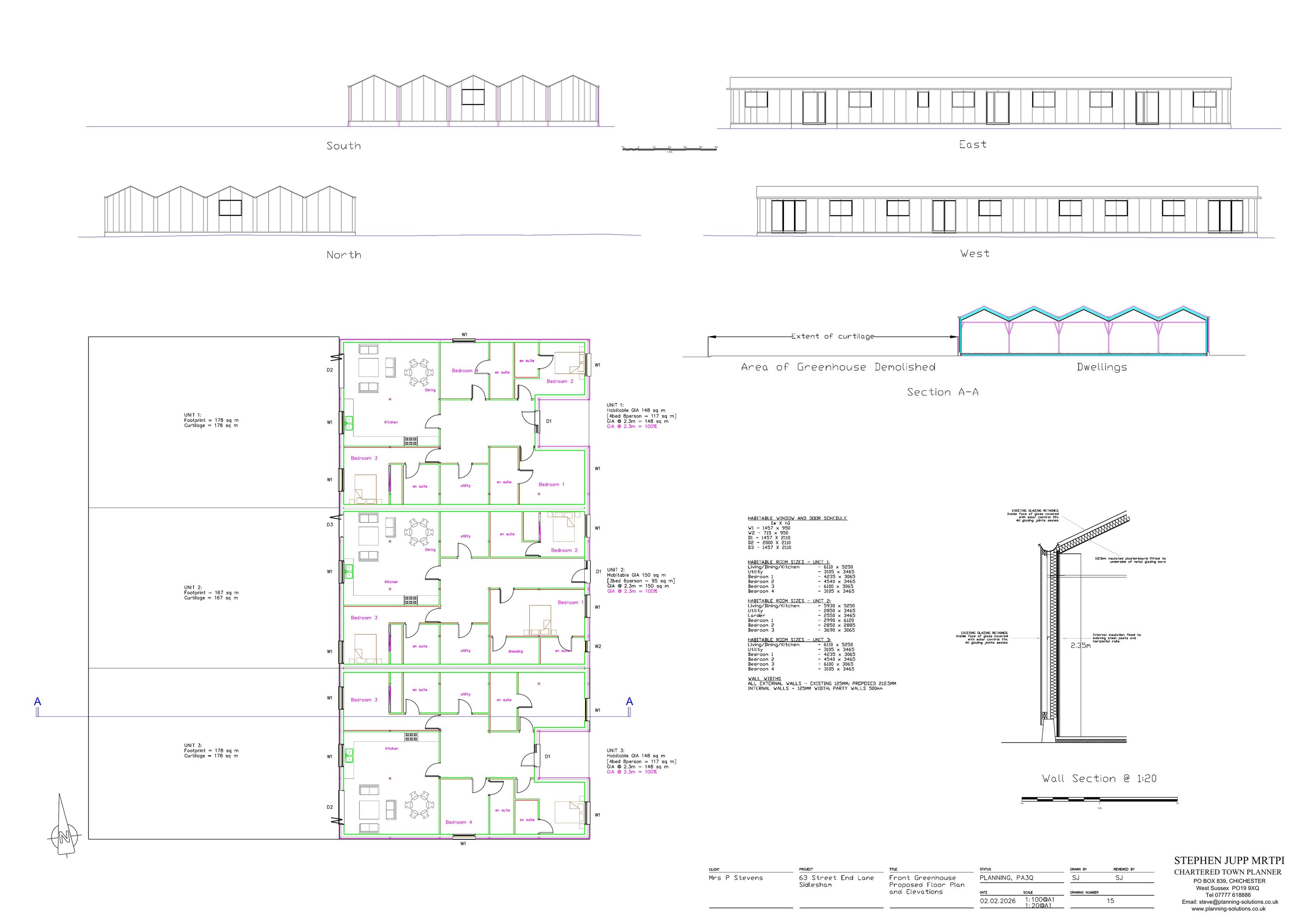
Prior Approval - Change of Use of Agricultural Building to 3no Dwellings (C3 Use Class).

Documents

Plan - Under Consideration
Archived · Original link
Plan - Under Consideration
Archived · Original link
Plan - Under Consideration
Archived · Original link
Application Documents
Archived · Original link
Plan - Under Consideration
Archived · Original link
Plan - Under Consideration
Archived · Original link
Application Documents
Archived · Original link
Parish Comments
Archived · Original link
Consultee Comment
Archived · Original link
Correspondence
Archived · Original link
Consultee Comment
Archived · Original link

Have your say

Your comment matters. Councils must consider every representation that raises material planning considerations.

Write a comment