← Back to Chorley Council

Status

Awaiting decision
Received Last month
New dwellings n/a

What you can do

Take Action

Make your voice heard. Authorities need to hear from people who support new homes.

Full Proposal

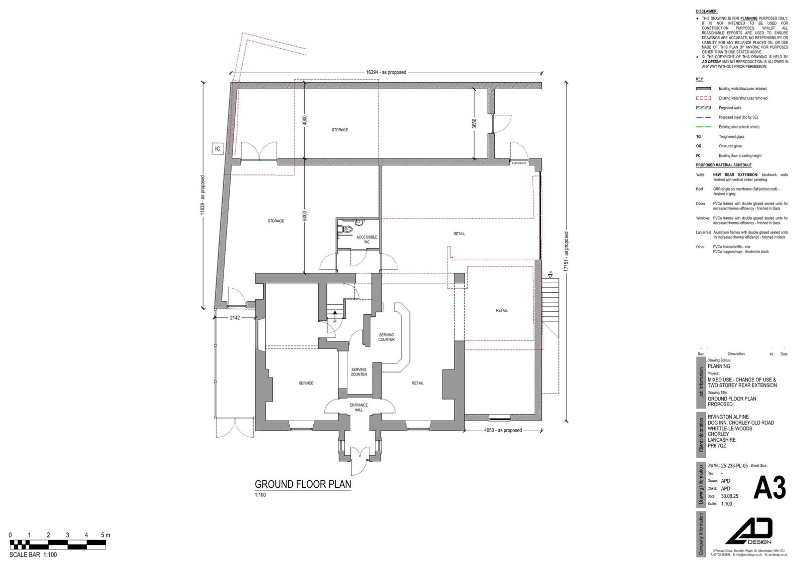
Change of use from a public house to a shop with residential accommodation above including erection of part two storey part single storey rear extension with terrace, single storey side extension with terrace and external access stairs, erection of fencing and erection of detached storage building (following demolition of existing single storey projections)

Detail pages

Documents

25-233-PS- PLANNING STATEMENT
Report
Not downloaded · Council link
ACKNOWLEDGEMENT LETTER
Correspondence
Not downloaded · Council link
APPLICATIONFORMREDACTED
Planning Application (inc initial correspondence)
Not downloaded · Council link
BNG BASELINE
Report
Not downloaded · Council link
BNG GAIN PLAN
Report
Not downloaded · Council link
CONSULTATION LETTER
Correspondence
Not downloaded · Council link
CONSULTATION LETTER
Correspondence
Not downloaded · Council link
CONSULTATION LETTER
Correspondence
Not downloaded · Council link
CONSULTATION LETTER
Correspondence
Not downloaded · Council link
CONSULTATION LETTER
Correspondence
Not downloaded · Council link
CONSULTATION LETTER
Correspondence
Not downloaded · Council link
CONSULTATION LETTER
Correspondence
Not downloaded · Council link
CONSULTATION LETTER
Correspondence
Not downloaded · Council link
CONSULTATION LETTER
Correspondence
Not downloaded · Council link
CONSULTATION LETTER
Correspondence
Not downloaded · Council link
EXISTING ELEVATIONS
Site Elevations, Building Plans etc.
Not downloaded · Council link
EXISTING ELEVATIONS
Site Elevations, Building Plans etc.
Not downloaded · Council link
EXISTING FLOORPLANS
Site Elevations, Building Plans etc.
Not downloaded · Council link
INVALID APPLICATION FOLLOW UP
Correspondence
Not downloaded · Council link
INVALID LETTER
Correspondence
Not downloaded · Council link
LOCATION PLAN & PROPOSED SITE PLAN
Site Location Plan
Archived copy · Council link
NEIGHBOUR LETTER - INITIAL CONSULTATION
Correspondence
Not downloaded · Council link
ONLINE COMMENT
Public Comment
Not downloaded · Council link
PROPOSED COMPOSITE FENCING
Site Elevations, Building Plans etc.
Not downloaded · Council link
PROPOSED ELEVATIONS
Site Elevations, Building Plans etc.
Not downloaded · Council link
PROPOSED ELEVATIONS
Site Elevations, Building Plans etc.
Not downloaded · Council link
PROPOSED FLOORPLANS
Site Elevations, Building Plans etc.
Not downloaded · Council link
PROPOSED FLOORPLANS
Site Elevations, Building Plans etc.
Not downloaded · Council link
PROPOSED OUTBUILDING
Site Elevations, Building Plans etc.
Not downloaded · Council link
SITE NOTICE - PLANNING APPLICATIONS
Correspondence
Not downloaded · Council link
THE LOCATION PLAN_INCLUDED_IN_BLOCK PLAN OF THE SITE
Site Location Plan
Not downloaded · Council link