← Chorley Council

Status

Awaiting decision House extension
Received
Last month
New homes
0

Full proposal

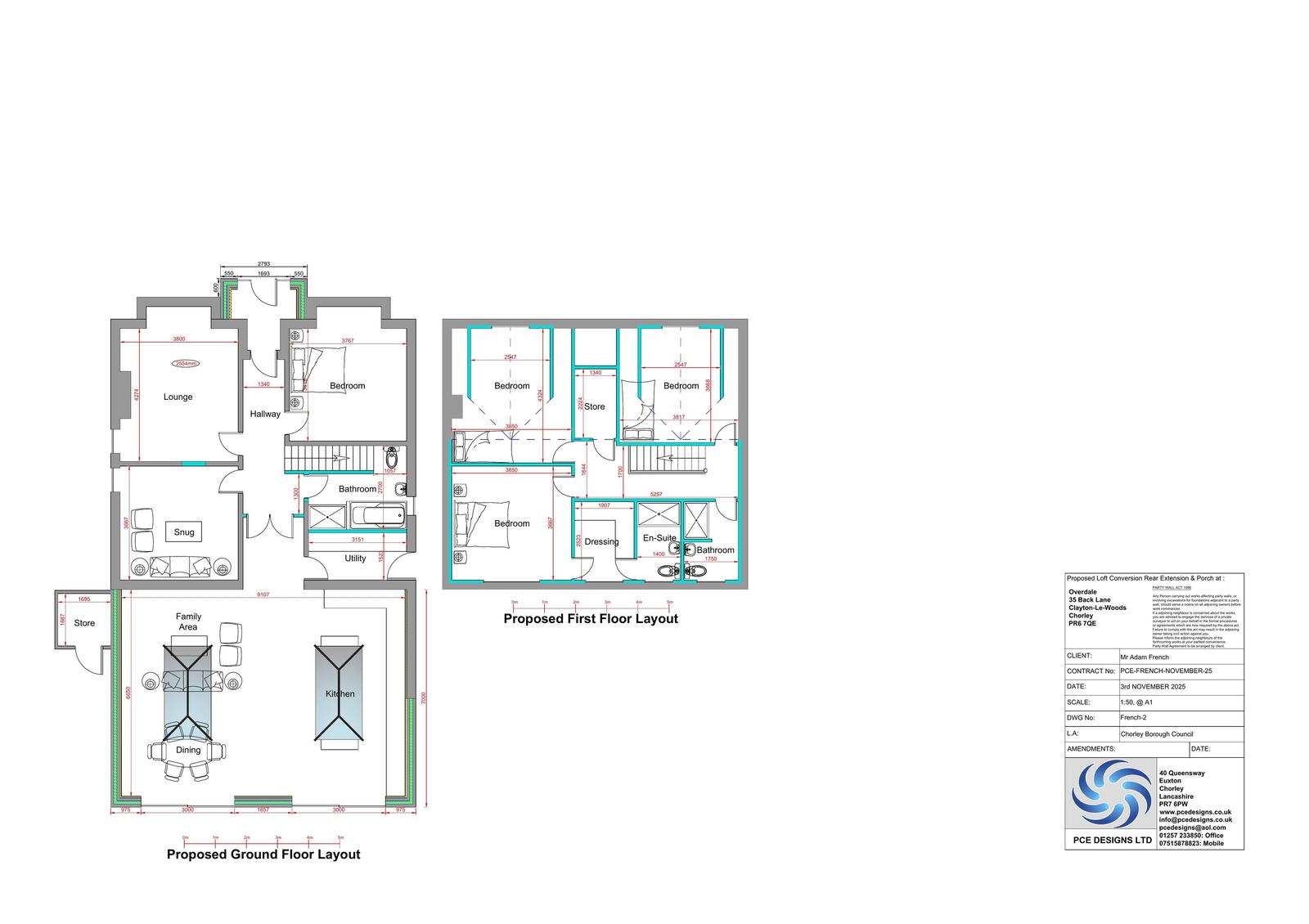
Single storey rear extension, 2no. dormers to front, 1no. dormer to rear, and, front porch

Documents

Correspondence
Archived · Original link
Planning Application (inc initial correspondence)
Archived · Original link
Consultee Response
Archived · Original link
Correspondence
Archived · Original link
Correspondence
Archived · Original link
Site Elevations, Building Plans etc.
Archived · Original link
Site Elevations, Building Plans etc.
Archived · Original link
Site Elevations, Building Plans etc.
Archived · Original link
Site Location Plan
Archived · Original link

Have your say

Your comment matters. Councils must consider every representation that raises material planning considerations.

Write a comment