← Back to City of Lincoln Council
Application
2026/0028/FUL
City of Lincoln Council · IDOX
Status
Pending Consideration
Received
29 days ago
New dwellings
n/a
What you can do
Take Action
Make your voice heard. Authorities need to hear from people who support new homes.
Full Proposal
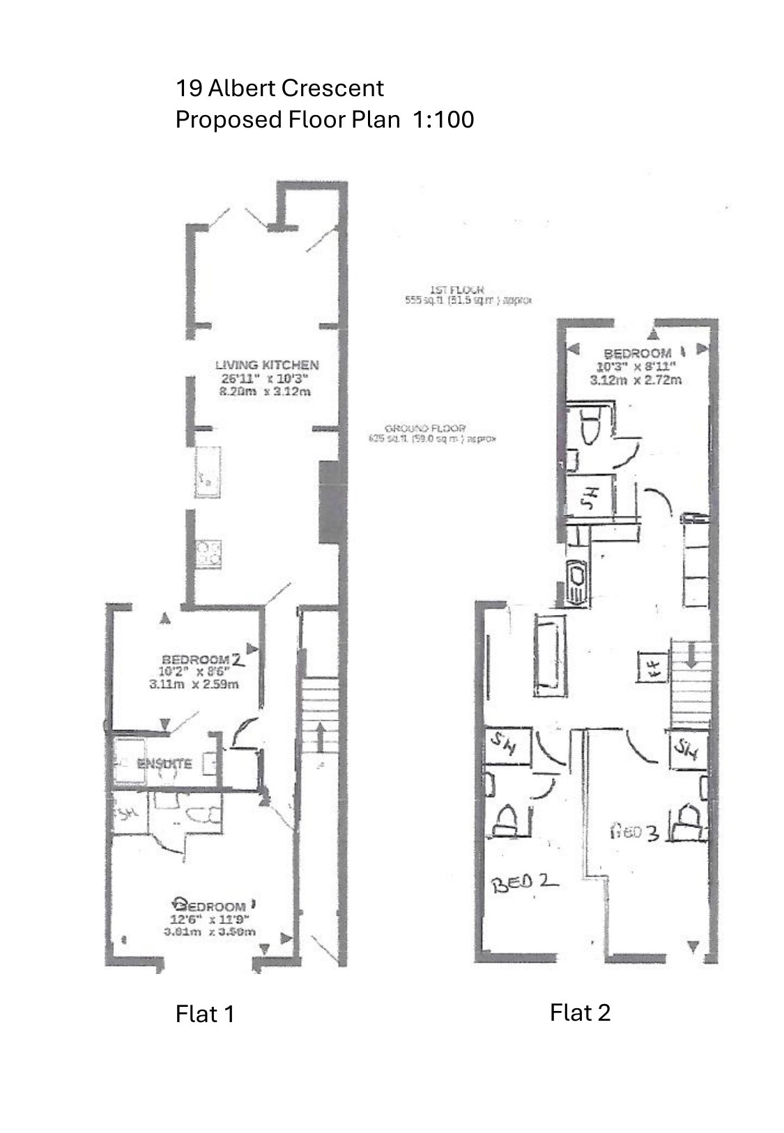
Conversion of existing 6 bed HMO (Use Class C4) into 2no. flats (Use Class C3)
Detail pages
- View live detail on council site
- No archived detail page available.
Documents
APPLICATION FORM
Application Form
Not downloaded
· Council link
EXISTING FLOOR PLAN
Plan
Not downloaded
· Council link
LOCATION PLAN
Plan
Not downloaded
· Council link
PLANNING STATEMENT
Supporting Document
Not downloaded
· Council link
PROPOSED FLOOR PLAN
Plan
Not downloaded
· Council link