← City of Lincoln Council

Status

Pending Consideration Change of use
Received
29 Jan 2026
New homes
0

Full proposal

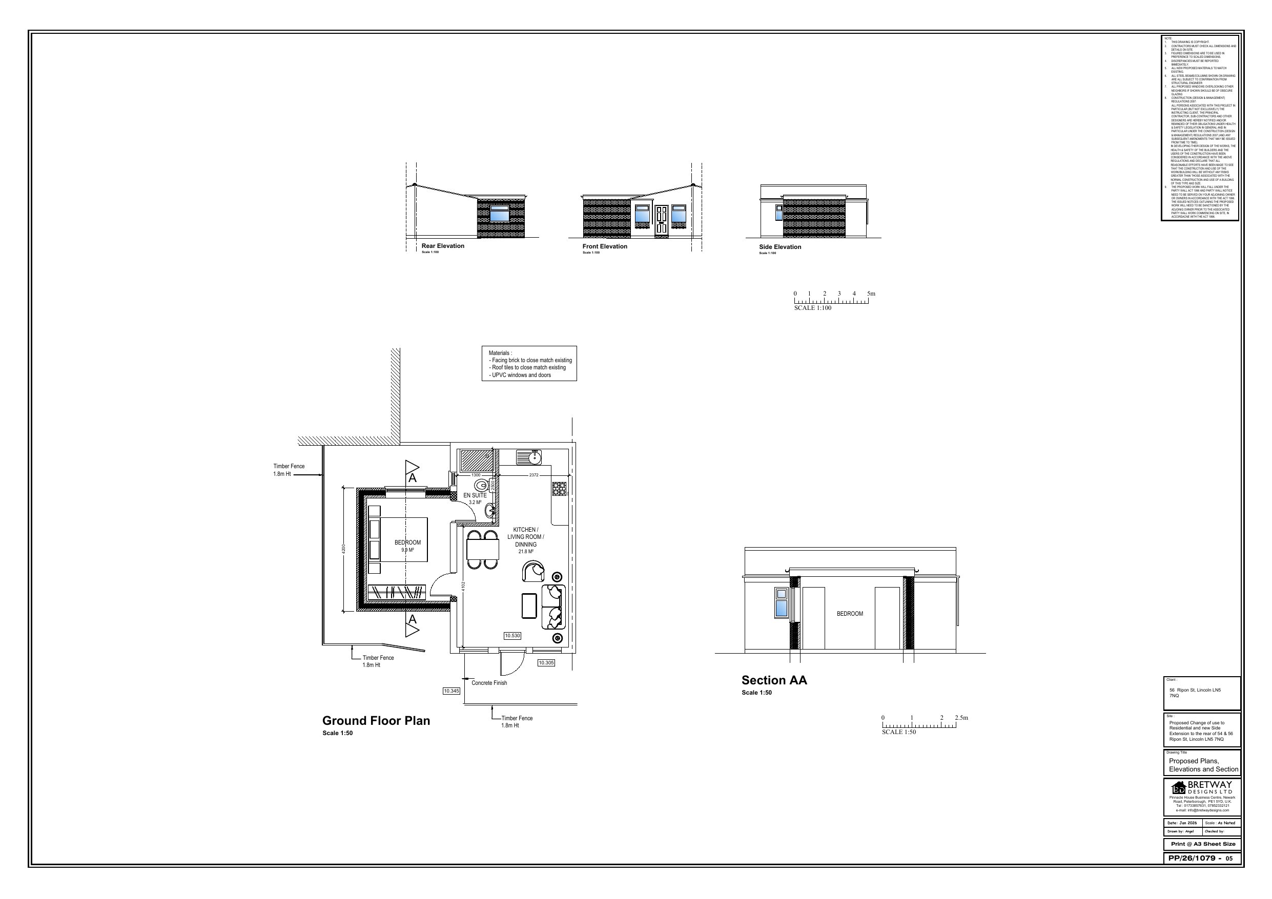
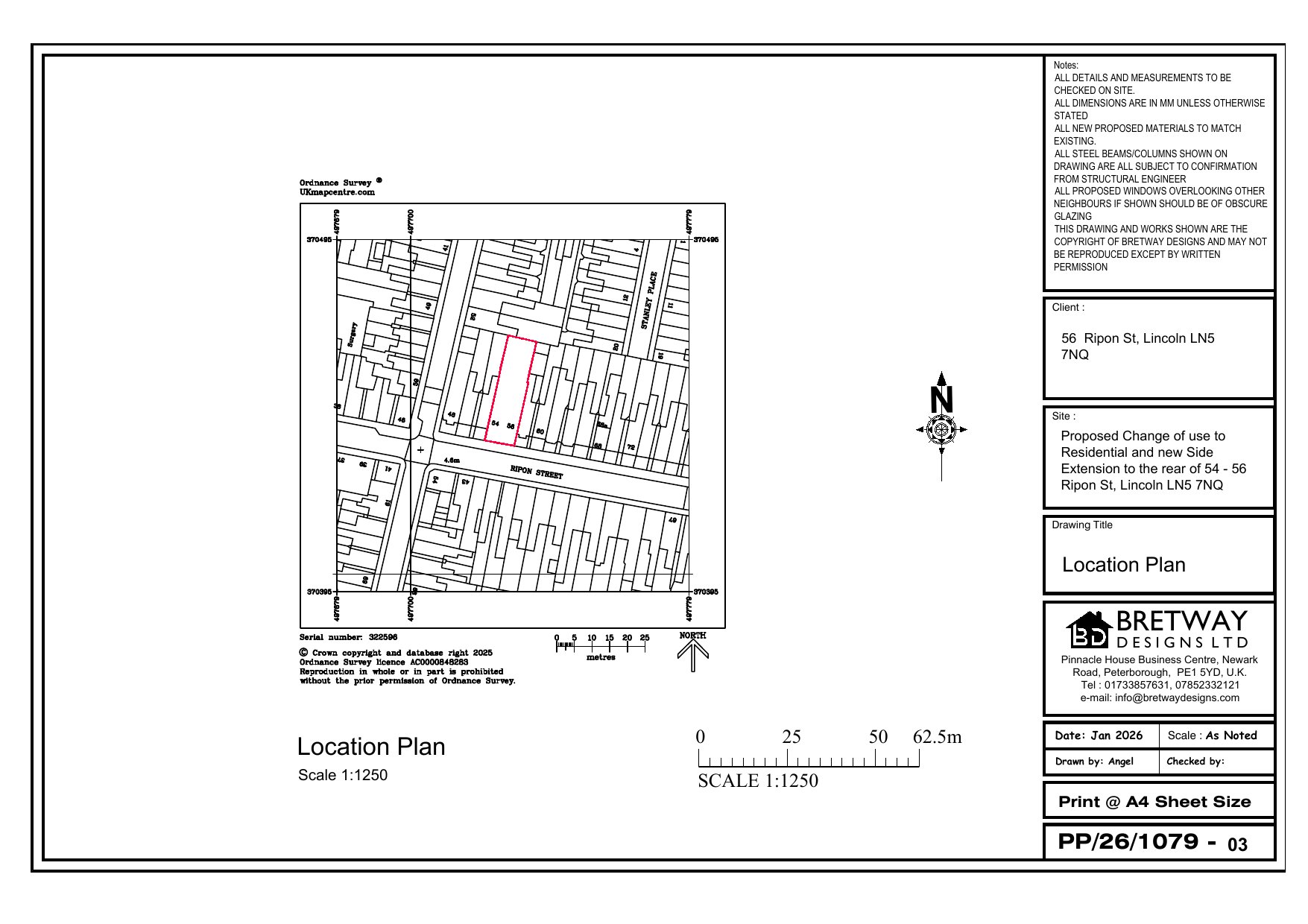
Change of use from storage (Use Class B2) to Residential (Use Class E) and erection of side extension to the rear of 54 & 56 Ripon Street.

Have your say

Your comment matters. Councils must consider every representation that raises material planning considerations.

Write a comment