← City of Lincoln Council

Status

Pending Consideration Change of use
Received
Last month
New homes
0

Full proposal

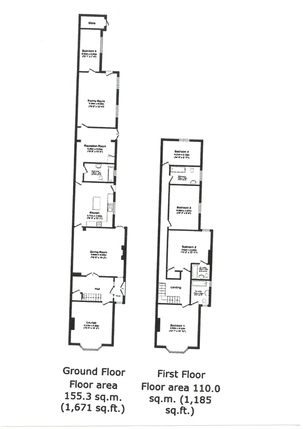
Change of use from Existing HMO (Class C4) to flexible use between HMO (Class C4) and Dwelling (Class C3).

Documents

Application Form
Archived · Original link
Plan
Archived · Original link
Plan
Archived · Original link
Supporting Document
Archived · Original link

Have your say

Your comment matters. Councils must consider every representation that raises material planning considerations.

Write a comment