← City of London

Status

Under Consideration House extension
Received
17 Apr 2025
New homes
0

Full proposal

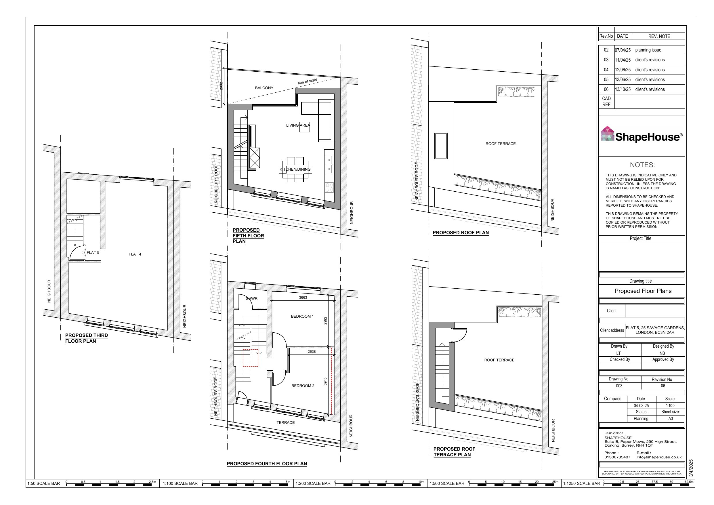
Extension of the existing residential building to provide an additional storey and roof terrace. [RECONSULTATION DUE TO REVISED PLANS].

Documents

APPLICATIONFORMREDACTED
Application Form
Not yet archived · Original link
COMMENTS - CAAC
Consultee Comment
Not yet archived · Original link
COMMENTS - CITY OF LONDON CONSERVATION AREA ADVISORY COMMITTEE
Consultee Comment
Not yet archived · Original link
COMMENTS - HEALTH & SAFETY EXECTIVE
Consultee Comment
Not yet archived · Original link
COMMENTS - HEALTH AND SAFETY EXECUTIVE
Consultee Comment
Not yet archived · Original link
DAYLIGHT & SUNLIGHT ASSESSMENT
Accompanying report
Not yet archived · Original link
DAYLIGHT TEST
Drawing
Not yet archived · Original link
DESIGN AND ACCESS STATEMENT
Report - Design & Access Statement/Report
Not yet archived · Original link
EXISTING ELEVATIONS
Drawing
Not yet archived · Original link
EXISTING PLANS
Drawing
Not yet archived · Original link
Site Plan
Archived · Original link
FIRE SAFETY STATEMENT
Other
Not yet archived · Original link
FLAT 5 25 SAVAGE GARDENS PRE APP RESPONSE
Other
Not yet archived · Original link
LOCATION PLAN
Site Plan
Not yet archived · Original link
OBJECTION COMMENT - NICHOLAS JEPSON
Objection Comment
Not yet archived · Original link
OBJECTION COMMENT - PAUL PAVLOU
Objection Comment
Not yet archived · Original link
PROPOSED EAST & WEST ELEVATION REV.05
Drawing
Not yet archived · Original link
PROPOSED NORTH & SOUTH ELEVATIONS REV.03
Drawing
Not yet archived · Original link
Drawing
Archived · Original link
Site Plan
Archived · Original link
REPRESENTATION - KAIVIN WONG
Public Comment
Not yet archived · Original link
REPRESENTATION-ABDUL HUSSAIN
Public Comment
Not yet archived · Original link
RESPONSE TO OBJECTIONS - JANUARY 2026
Accompanying letters
Not yet archived · Original link
REVISION DETAILS
Accompanying letters
Not yet archived · Original link

Have your say

Your comment matters. Councils must consider every representation that raises material planning considerations.

Write a comment