← Cotswold District Council

Status

Awaiting decision House extension
Received
10 Feb 2025
New homes
0

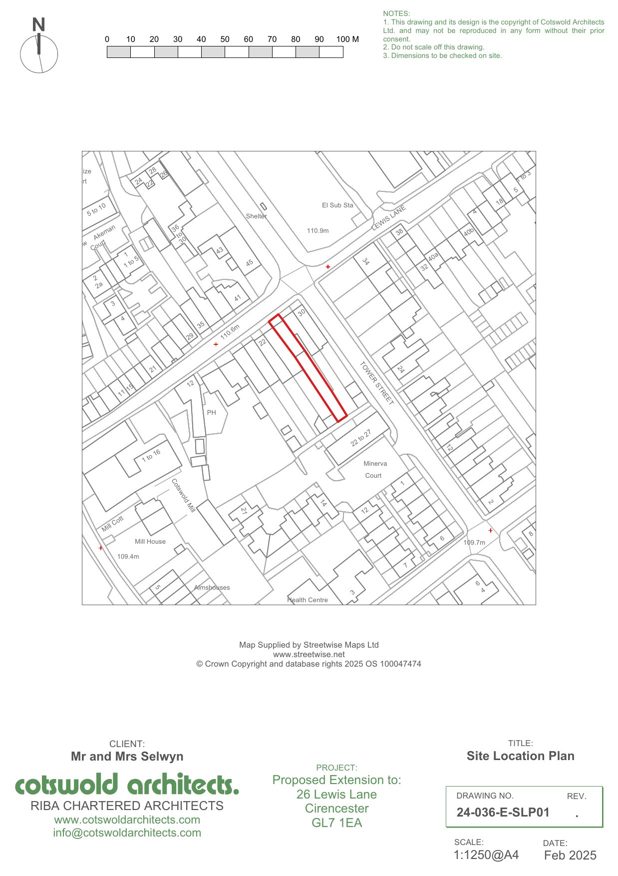
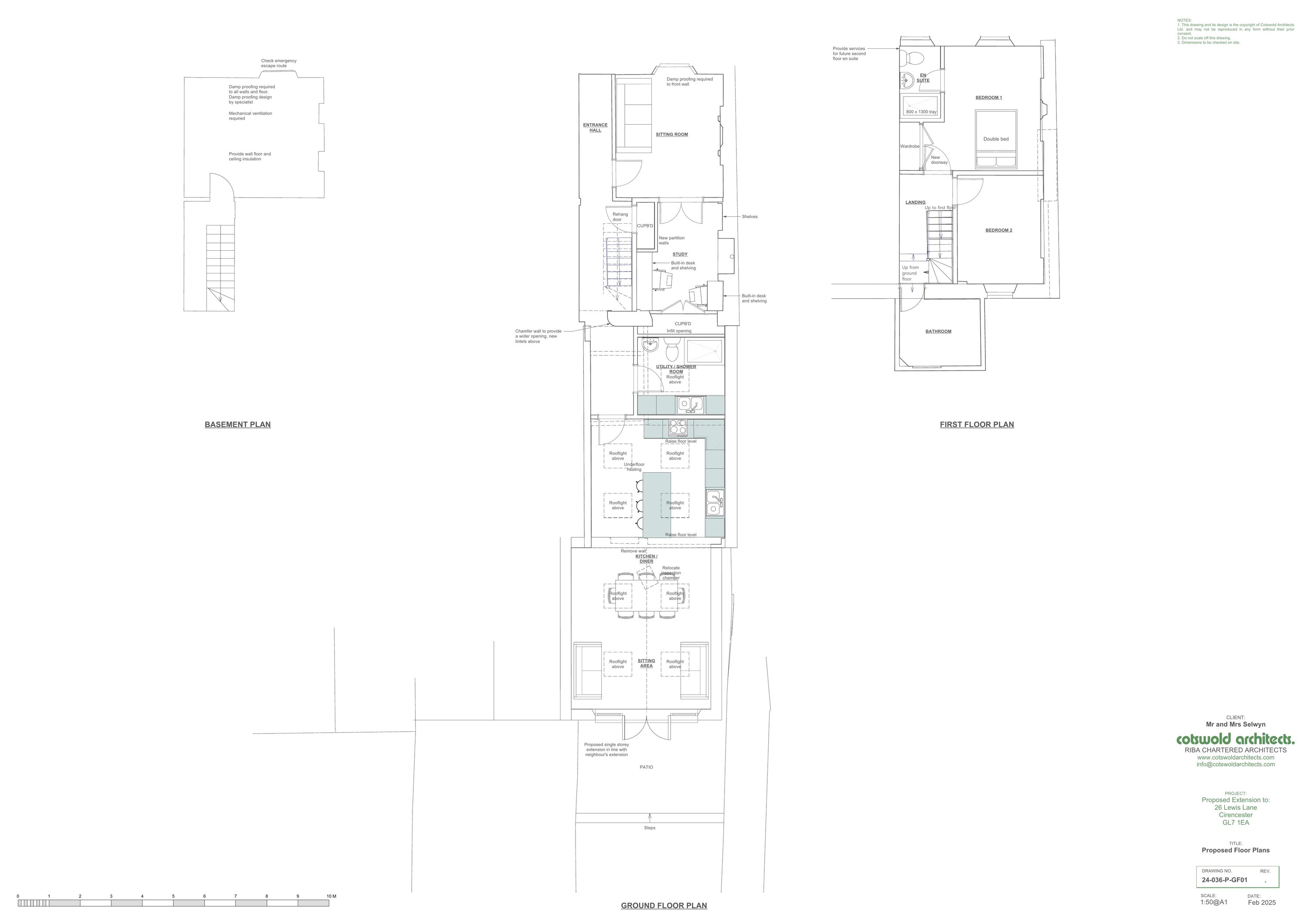
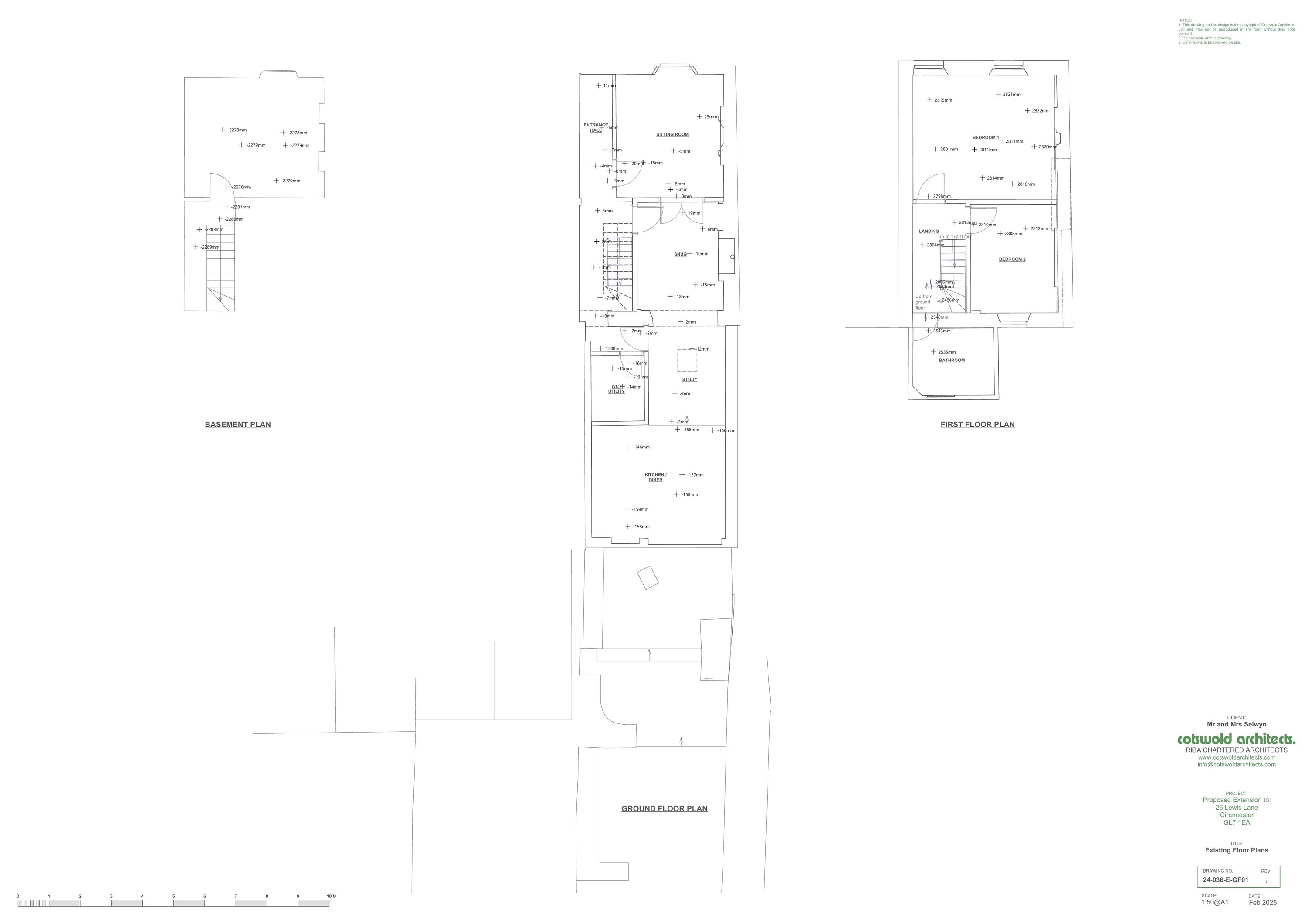
Full proposal

Demolition of single storey rear extension and erection of replacement single storey rear extension

Documents

Drawing
Archived · Original link
Drawing
Archived · Original link
Drawing
Archived · Original link
Application Form
Archived · Original link
Consultee Comment
Archived · Original link
Consultee Comment
Archived · Original link
Applicant/Agent Correspondence
Archived · Original link
Drawing
Archived · Original link
Drawing
Archived · Original link
Drawing
Archived · Original link
Report
Archived · Original link
Consultee Comment
Archived · Original link
Consultees Consulted
Archived · Original link
Photograph
Archived · Original link
Report
Archived · Original link
Drawing
Archived · Original link
Drawing
Archived · Original link
Drawing
Archived · Original link
Drawing
Archived · Original link
Requisite Notice
Archived · Original link
Photograph
Archived · Original link
Drawing
Archived · Original link

Have your say

Your comment matters. Councils must consider every representation that raises material planning considerations.

Write a comment