← Cotswold District Council

Status

Awaiting decision New housing
Received
27 Jun 2025
New homes
6

Full proposal

Erection of six dwellings comprising subdivision of derelict Grade II listed farmhouse to create 1 no. additional dwelling, conversion of Grade II listed threshing barn to 1 no. dwelling, erection of 4 no. single-storey dwellings on footprint of historic farmstead, creation of new access road from Newnton Road, associated landscaping and biodiversity enhancements including the erection of single-storey bat house

Documents

Application Form
Application Form
Not yet archived · Original link
BARN EXISTING PLANS & ELEVATIONS
Drawing
Not yet archived · Original link
BAT HIBERNATION SURVEYS
Report
Not yet archived · Original link
BAT HOUSE PROPOSED PLAN & ELEVATIONS
Drawing
Not yet archived · Original link
BAT SURVEYS
Report
Not yet archived · Original link
BIG ATCOST EXISTING PLANS & ELEVATIONS
Drawing
Not yet archived · Original link
BIODIVERSITY NET GAIN STATEMENT FORM
BNG Statement
Not yet archived · Original link
BIODIVERSITY NET GAIN STATUTORY METRIC
BNG Metric
Not yet archived · Original link
BIODIVERSITY OFFICER
Consultee Comment
Not yet archived · Original link
BIODIVERSITY STATEMENT & METRIC ASSESSMENT
BNG Report
Not yet archived · Original link
CIL FORM 1
Application Form
Not yet archived · Original link
COVERING LETTER
Applicant/Agent Correspondence
Not yet archived · Original link
Drawing
Archived · Original link
DESIGN AND ACCESS STATEMENT - 1
Report
Not yet archived · Original link
DESIGN AND ACCESS STATEMENT - 2
Report
Not yet archived · Original link
DESIGN AND ACCESS STATEMENT - 3
Report
Not yet archived · Original link
DESIGN AND ACCESS STATEMENT - 4
Report
Not yet archived · Original link
DESIGN AND ACCESS STATEMENT - 5
Report
Not yet archived · Original link
DESIGN AND ACCESS STATEMENT - 6
Report
Not yet archived · Original link
DESIGN AND ACCESS STATEMENT - 7
Report
Not yet archived · Original link
DRAINAGE & MAINTENANCE STRATEGY AND GROUND CONDITION REVIEW - 1
Report
Not yet archived · Original link
DRAINAGE & MAINTENANCE STRATEGY AND GROUND CONDITION REVIEW - 2
Report
Not yet archived · Original link
DRAWING ISSUE SHEET
Report
Not yet archived · Original link
ENVIROCHECK REPORT - 1
Report
Not yet archived · Original link
ENVIROCHECK REPORT - 2
Report
Not yet archived · Original link
ENVIRONMENT AGENCY
Consultee Comment
Not yet archived · Original link
Drawing
Archived · Original link
FARMHOUSE EXISTING ELEVATIONS
Drawing
Not yet archived · Original link
FARMHOUSE EXISTING PLANS (SHEET 01)
Drawing
Not yet archived · Original link
FARMHOUSE EXISTING PLANS (SHEET 02)
Drawing
Not yet archived · Original link
FARMHOUSE EXISTING SECTIONS
Drawing
Not yet archived · Original link
FLOOD RISK ASSESSMENT
Report
Not yet archived · Original link
FRAMEWORK ECOLOGICAL MITIGATION STRATEGY - 1
Report
Not yet archived · Original link
FRAMEWORK ECOLOGICAL MITIGATION STRATEGY - 2
Report
Not yet archived · Original link
GCC HIGHWAYS
Consultee Comment
Not yet archived · Original link
GLOUCESTERSHIRE WILDLIFE TRUST
Consultee Comment
Not yet archived · Original link
GOLOB
Objection Comment
Not yet archived · Original link
GREAT CRESTED NEWT HABITAT SUITABILITY INDEX ASSESSMENT & EDNA SURVEY
Report
Not yet archived · Original link
HERITAGE STATEMENT
Report
Not yet archived · Original link
HINDLE
Objection Comment
Not yet archived · Original link
HINDLE
Objection Comment
Not yet archived · Original link
LANDSCAPE AND VISUAL APPRAISAL
Report
Not yet archived · Original link
LANDSCAPE OFFICER
Consultee Comment
Not yet archived · Original link
LANDSCAPE OFFICER
Consultee Comment
Not yet archived · Original link
LEAD LOCAL FLOOD AUTHORITY
Consultee Comment
Not yet archived · Original link
LOCATION PLAN
Drawing
Not yet archived · Original link
OTTER AND WATER VOLE SURVEY
Report
Not yet archived · Original link
PLANNING STATEMENT
Report
Not yet archived · Original link
PRELIMINARY ECOLOGICAL APPRAISAL
Report
Not yet archived · Original link
PROPOSED BAT BARN EAST ELEVATION
Drawing
Not yet archived · Original link
PROPOSED BAT BARN INTERNAL FEATURES OVERVIEW
Drawing
Not yet archived · Original link
PROPOSED BAT BARN INTERNAL PORCH
Drawing
Not yet archived · Original link
PROPOSED BAT BARN INTERNAL ROOM ON SOUTHERN ELEVATION
Drawing
Not yet archived · Original link
PROPOSED BAT BARN NORTH ELEVATION
Drawing
Not yet archived · Original link
PROPOSED BAT BARN ROOF PLAN, SOUTH AND WEST ELEVATIONS
Drawing
Not yet archived · Original link
PROPOSED DRAINAGE STRATEGY LAYOUT
Drawing
Not yet archived · Original link
PROPOSED EXTERNAL LIGHTING PLAN
Drawing
Not yet archived · Original link
PROPOSED FLOOD EXTENT PLAN
Drawing
Not yet archived · Original link
PROPOSED LANDSCAPE PLAN
Drawing
Not yet archived · Original link
PROPOSED LANDSCAPE PLAN RESIDENTIAL CORE
Drawing
Not yet archived · Original link
PROPOSED LANDSCAPE PLAN SITE ENTRANCE
Drawing
Not yet archived · Original link
Drawing
Archived · Original link
REPTILE SURVEY
Report
Not yet archived · Original link
REQUISITE NOTICE
Requisite Notice
Not yet archived · Original link
SMALL ATCOST EXISTING PLANS & ELEVATIONS
Drawing
Not yet archived · Original link
THRESHING BARN EXISTING ELEVATIONS & SECTIONS
Drawing
Not yet archived · Original link
THRESHING BARN EXISTING PLANS
Drawing
Not yet archived · Original link
TRANSPORT STATEMENT
Report
Not yet archived · Original link
TREE OFFICER
Consultee Comment
Not yet archived · Original link
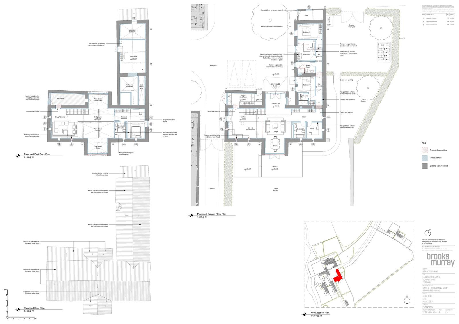
UNIT 3 - THRESHING BARN PROPOSED ELEVATIONS & SECTIONS
Drawing
Not yet archived · Original link
UNIT 3 - THRESHING BARN WINDOW SCHEDULE (SHEET 1)
Drawing
Not yet archived · Original link
UNIT 7 PROPOSED GARAGE PLANS & ELEVATIONS
Drawing
Not yet archived · Original link
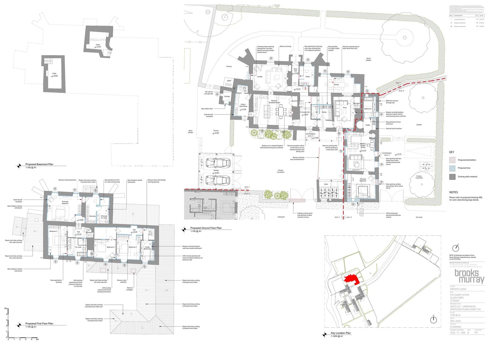
UNITS 1&2 - FARMHOUSE PROPOSED ELEVATIONS
Drawing
Not yet archived · Original link
UNITS 1&2 - FARMHOUSE TYPICAL WINDOW DETAILS (WF.04)
Drawing
Not yet archived · Original link
UNITS 1&2 - FARMHOUSE WINDOW SCHEDULE (SHEET 1)
Drawing
Not yet archived · Original link
UNITS 1&2 - FARMHOUSE WINDOW SCHEDULE (SHEET 2)
Drawing
Not yet archived · Original link
UNITS 1&2 - FARMHOUSE WINDOW SCHEDULE (SHEET 2)
Drawing
Not yet archived · Original link

Have your say

Your comment matters. Councils must consider every representation that raises material planning considerations.

Write a comment