← Cotswold District Council

Status

Awaiting decision New housing
Received
05 Dec 2025
New homes
5

Full proposal

Demolition of cycle stores, formation of five new dwellings, replanning and landscaping of car park and associated works

Documents

3D IMAGES
Drawing
Not yet archived · Original link
3D MODEL IMAGES
Drawing
Not yet archived · Original link
APPLICANT SUPPORTING LETTER
Support Comment
Not yet archived · Original link
Application Form
Application Form
Not yet archived · Original link
BIODIVERSITY OFFICER
Consultee Comment
Not yet archived · Original link
BIODIVERSITY SELF-ASSESSMENT FORM
Report
Not yet archived · Original link
CIL FORM 1
Application Form
Not yet archived · Original link
COLLISON (J)
Objection Comment
Not yet archived · Original link
COLLISON (P)
Objection Comment
Not yet archived · Original link
CONSERVATION OFFICER
Consultee Comment
Not yet archived · Original link
DESIGN ACCESS & HERITAGE STATEMENT
Report
Not yet archived · Original link
ENV HEALTH AIR QUALITY
Consultee Comment
Not yet archived · Original link
ENVIRONMENTAL HEALTH - NOISE
Consultee Comment
Not yet archived · Original link
EVANS
Objection Comment
Not yet archived · Original link
Drawing
Archived · Original link
FLOOD RISK OFFICER
Consultee Comment
Not yet archived · Original link
HIGHWAYS OFFICER
Consultee Comment
Not yet archived · Original link
HISTORIC ENGLAND
Consultee Comment
Not yet archived · Original link
ISHIGURO
Objection Comment
Not yet archived · Original link
JENKINSON
Objection Comment
Not yet archived · Original link
MORGAN
Objection Comment
Not yet archived · Original link
NICHOLLS
Objection Comment
Not yet archived · Original link
PROPOSALS ELEVATIONS
Drawing
Not yet archived · Original link
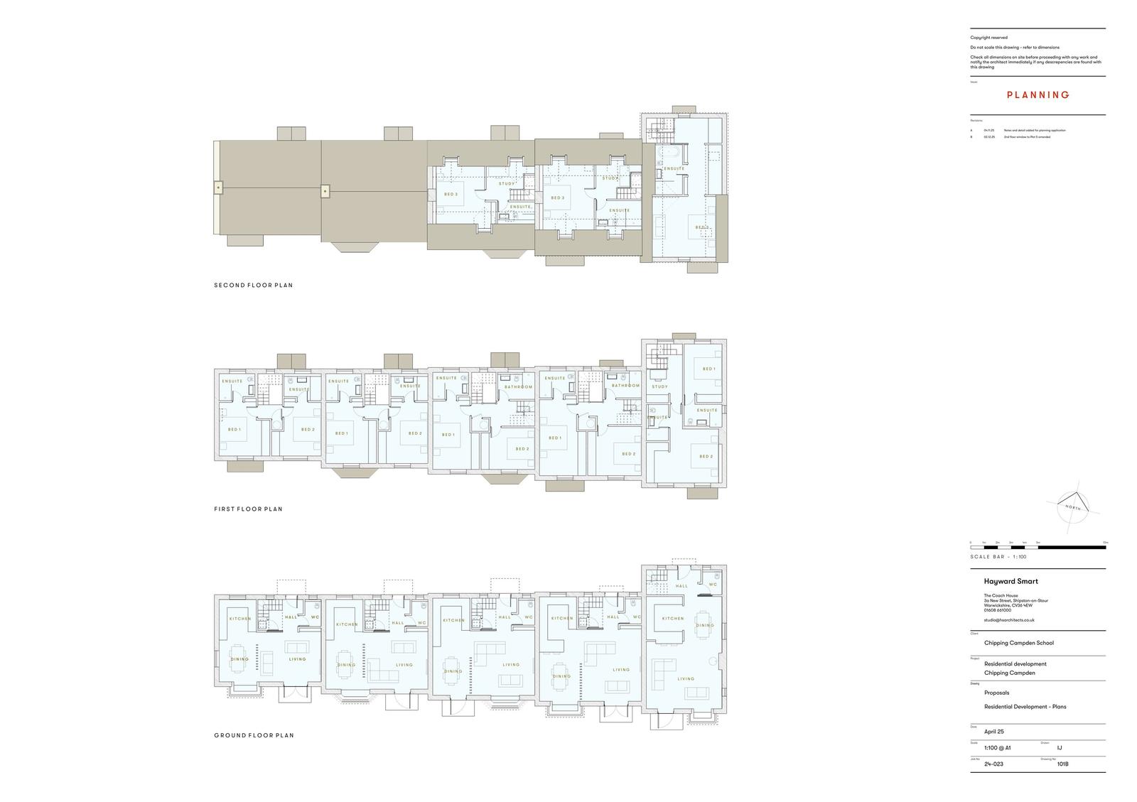
PROPOSALS PLANS AND ELEVATIONS
Drawing
Not yet archived · Original link
Drawing
Archived · Original link
PROPOSED ELEVATIONS
Drawing
Not yet archived · Original link
Drawing
Archived · Original link
Drawing
Archived · Original link
REQUISITE NOTICE
Requisite Notice
Not yet archived · Original link
RODRIGUEZ
Objection Comment
Not yet archived · Original link
SCREENING OPINION
Screening Opinion
Not yet archived · Original link
SHARKEY
Objection Comment
Not yet archived · Original link
Drawing
Archived · Original link
SUPERSEDED 3D MODEL IMAGES
Drawing
Not yet archived · Original link
SUPERSEDED LOCATION PLAN
Drawing
Not yet archived · Original link
SUPERSEDED PROPOSED ELEVATIONS
Drawing
Not yet archived · Original link
SUPPORTING LETTER
Applicant/Agent Correspondence
Not yet archived · Original link
THE CAMPDEN SOCIETY
General Comment
Not yet archived · Original link
THE CAMPDEN SOCIETY
General Comment
Not yet archived · Original link
TOWN COUNCIL
Consultee Comment
Not yet archived · Original link
TREE OFFICER
Consultee Comment
Not yet archived · Original link
TREE REPORT
Report
Not yet archived · Original link

Have your say

Your comment matters. Councils must consider every representation that raises material planning considerations.

Write a comment