25/04033/FUL
Cotswold District Council
Status
Awaiting decision
House extension
Received
19 Dec 2025
New homes
0
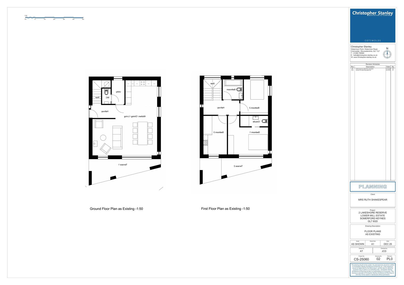
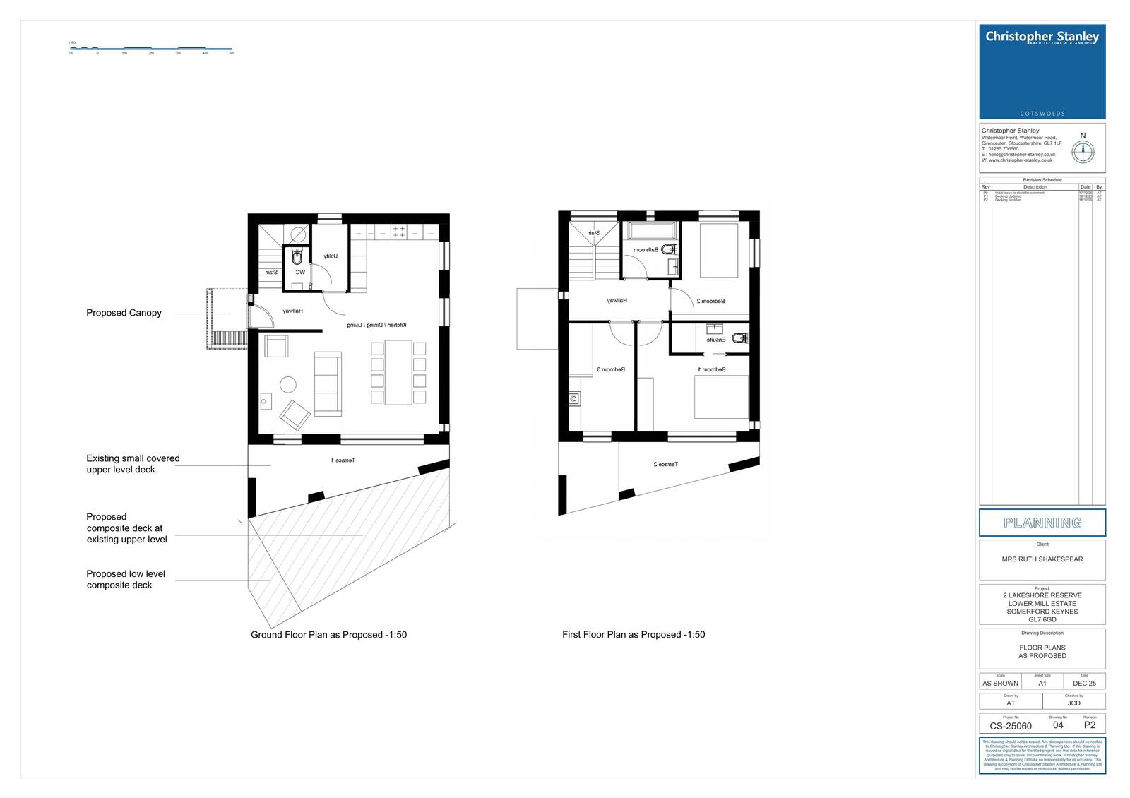
Full proposal
Erection of porch to front entrance and extension of decking to rear with associated works
Documents
Have your say
Your comment matters. Councils must consider every representation that raises material planning considerations.