← Cotswold District Council

Status

Awaiting decision New housing
Received
22 Dec 2025
New homes
150

Full proposal

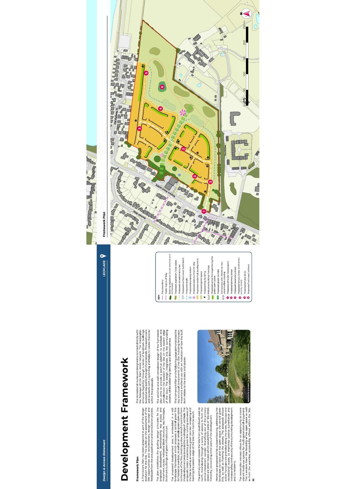
Outline planning application for up to 150 residential dwellings (Use Class C3); highways access from Station Road; demolition of Bungalow; and associated landscaping, earthworks, sustainable drainage features, parking, engineering works and infrastructure. All matters reserved except accessibility to the site, for vehicles in terms of the positioning and treatment of access to the site

Have your say

Your comment matters. Councils must consider every representation that raises material planning considerations.

Write a comment